Eladó téglalakás
Budapest, VI. kerület, földszint

+ 16 kép 1/19
46 000 000 Ft46 M Ft 2 000 000 Ft/m2
1 szoba
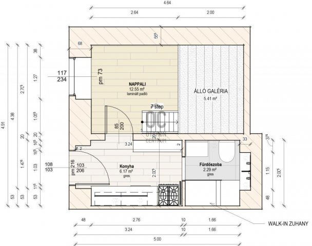
23 m2
földszint
építés éve:1960

Részletes adatok

Állapot: Felújított
Fűtés: Gázkonvektor
Energetikai besorolás: Nem adta meg a hirdető

Az OTP Bank lakáshitel ajánlataFizetett hirdetés

+36 70 465
dr. Székely Zsuzsanna
referens

Érdekel az OTP Bank kedvezményes lakáshitel ajánlata? *

* A kérdésre „Igen” válasz bejelölése esetén, az „Üzenet küldése” gombra kattintva kijelentem, hogy az OTP Bank Nyrt. Adatkezelési tájékoztatójának tartalmát megismertem és tudomásul vettem.

Eladó téglalakás leírása

A figyelmedbe ajánlok egy kivételes lehetőséget, amely tökéletes választás lehet befektetők számára! Budapest 06. kerületében, a belváros szívében található ez a használt, de kiváló állapotú lakás, amely nemcsak a város vibráló életéhez kínál közvetlen hozzáférést, hanem remek befektetési lehetőséget is biztosít. Az ingatlan alapterülete 23 nm, amely egy praktikus egy szobás elrendezést rejt magában, ideális választás lehet akár rövid távú bérbeadásra, akár saját célra. A lakásban található egy fürdőszoba, amely minden igényt kielégít, és a 3 nm-es terasz lehetőséget ad arra, hogy a városi élet forgatagában is élvezhesd a friss levegőt. A fűtés gázkonvektorral megoldott, ami nemcsak hatékony, de gazdaságos is. A lakás elhelyezkedése különösen előnyös, hiszen a környék csendes, ugyanakkor közel van a város legfőbb látnivalóihoz, éttermeihez és szórakozóhelyeihez. A közlekedési lehetőségek is kitűnőek: a közelben több busz- és villamosmegálló található, így könnyen eljuthatsz bárhová a fővárosban. Az ingatlan közvetlen közelében található boltok, kávézók és egyéb szolgáltatások, amelyek kényelmessé teszik a mindennapokat. A biztonságos környék pedig hozzájárul ahhoz, hogy a lakás nemcsak élhető, hanem valóban vonzó befektetési lehetőség is. Ez a lakás nem csupán egy új otthon, hanem egy remek lehetőség arra, hogy a budapesti ingatlanpiac előnyeit kihasználva, értékesítési potenciált rejtsen magában. Ha szeretnél többet megtudni erről az ingatlanról, vagy kérdéseid lennének a vásárlási folyamatról, ne habozz, keress bizalommal! Az ingatlanpiac dinamikus, és az ilyen lehetőségek gyorsan elkelnek, ezért érdemes mihamarabb lépni. A megfelelő döntések meghozatalához szívesen állok rendelkezésedre, hogy együtt megtaláljuk a legjobb megoldást számodra!

46000000 Ft
Várom hívását a hét minden napján. Keressen bizalommal!
dr. Székely Zsuzsanna (telefonszám: +36 (70) 454 5078, e-mail: szekely.zsuzsanna@oc.hu)

Referencia szám: H504470-ZE

Hirdetés feltöltve: 2025. 09. 17. Utoljára módosítva: 2025. 10. 08.

1 szobás téglalakások ára Budapesten

Ebből az összehasonlításból megtudhatod, hogyan viszonyul a lakás ára a környékbeli téglalakások átlagos árához. Ez nem azt jelenti, hogy ennyivel olcsóbb vagy drágább, mint amennyit a lakás ér, hanem hogy ennyivel tér el a környékbeli átlagtól.

Ennek a m² ára
VI. kerület m² ár
Budapest m² ár
2000 e Ft
1717 e Ft -17%
1702 e Ft -17%
Ennek az ára
VI. kerület átlagár
Budapest átlagár
46 M Ft m Ft
72.6 m Ft 37%
58.9 m Ft 22%

Az ingatlan elhelyezkedése

Cím: Budapest, VI. kerület, földszint

Eladó ingatlanok a környékről

Eladó téglalakás
Eladó téglalakás

VI. kerület

99.9 M Ft
2 szoba
75 m2
Eladó téglalakás
Eladó téglalakás

XX. kerület

59.9 M Ft
2 + 1 szoba
50 m2
Eladó téglalakás
Eladó téglalakás

XX. kerület

59.9 M Ft
2 + 1 szoba
50 m2
Eladó téglalakás
Eladó téglalakás

VI. kerület, Külső Terézváros, Rózsa

159.9 M Ft
6 szoba
116 m2
Eladó téglalakás
Eladó téglalakás

II. kerület

125 M Ft
2 + 1 szoba
53 m2
Eladó téglalakás
Eladó téglalakás

XV. kerület

41.9 M Ft
2 szoba
77 m2
Eladó téglalakás
Eladó téglalakás

VI. kerület

98 M Ft
1 + 1 szoba
65 m2
Eladó panellakás
Eladó panellakás

XX. kerület

64.9 M Ft
3 szoba
72 m2
Eladó sorház
Eladó sorház

IX. kerület

50.9 M Ft
1 + 2 szoba
50 m2
Eladó panellakás
Eladó panellakás

IV. kerület

75.5 M Ft
3 szoba
59 m2
Eladó téglalakás
Eladó téglalakás

XX. kerület

59.9 M Ft
2 + 1 szoba
50 m2
Eladó téglalakás
Eladó téglalakás

VII. kerület

38 M Ft
1 szoba
24 m2
Eladó téglalakás
Eladó téglalakás

VI. kerület, Külső Terézváros, Podmaniczky utca

260 M Ft
3 szoba
117 m2
Eladó üzlethelyiség
Eladó üzlethelyiség

VII. kerület

65 M Ft
94 m2
Eladó téglalakás
Eladó téglalakás

VI. kerület, Belső Terézváros, Bajcsy-Zsilinszky út

149 M Ft
3 szoba
98 m2
Eladó téglalakás
Eladó téglalakás

VI. kerület, Belső Terézváros, Andrássy út

214.9 M Ft
3 szoba
94 m2
Eladó téglalakás
Eladó téglalakás

VI. kerület, Szondi utca

130 M Ft
2 + 1 szoba
99 m2
Eladó téglalakás
Eladó téglalakás

VI. kerület

139 M Ft
6 szoba
130 m2
Eladó téglalakás
Eladó téglalakás

VII. kerület

38 M Ft
1 szoba
24 m2
Eladó téglalakás
Eladó téglalakás

VI. kerület

366.8 M Ft
132 m²
132 m2
Eladó téglalakás
Eladó téglalakás

VI. kerület, Külső Terézváros, Eötvös utca

154.9 M Ft
4 szoba
128 m2
Eladó téglalakás
Eladó téglalakás

VI. kerület, Belső Terézváros, Andrássy út

329.9 M Ft
146 m2
Eladó téglalakás
Eladó téglalakás

XX. kerület

59.9 M Ft
2 + 1 szoba
50 m2
Eladó családi ház
Eladó családi ház

XXII. kerület

500.7 M Ft
5 szoba
250 m2

Falusi CSOK ingatlanok

Eladó családi ház
Eladó családi ház

Galgahévíz

49 M Ft
3 + 1 szoba
108 m2
Eladó családi ház
Eladó családi ház

Orci

39.9 M Ft
3 szoba
80 m2
Eladó ikerház
Eladó ikerház

Besnyő

89.5 M Ft
1 + 3 szoba
93 m2
Eladó ikerház
Eladó ikerház

Seregélyes

94.9 M Ft
4 szoba
107 m2
Eladó családi ház
Eladó családi ház

Fülöpjakab

57 M Ft
6 szoba
219 m2
Eladó családi ház
Eladó családi ház

Orgovány

68.5 M Ft
4 szoba
169 m2
Eladó családi ház
Eladó családi ház

Fonyód, Liszt Ferenc utca

69 M Ft
4 szoba
95 m2
Eladó családi ház
Eladó családi ház

Újszilvás

34.9 M Ft
3 szoba
66 m2