Astora Art House

Eladó téglalakás
Budapest, V. kerület, 3. emelet

+ 1 kép 1/4
286 000 000 Ft286 M Ft 1 894 040 Ft/m2
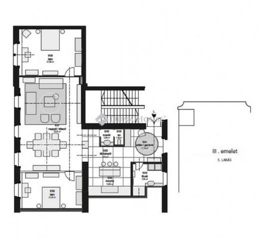
3 szoba
151 m2
3. emelet
építés éve:1890

Részletes adatok

Állapot: Felújítandó
Fűtés: Gázkazán
Extrák: Lift
Energetikai besorolás: Nem adta meg a hirdető

Az OTP Bank lakáshitel ajánlataFizetett hirdetés

+36 1 444
Erdei Anna Erika
Duna House Béke tér

Érdekel az OTP Bank kedvezményes lakáshitel ajánlata? *

* A kérdésre „Igen” válasz bejelölése esetén, az „Üzenet küldése” gombra kattintva kijelentem, hogy az OTP Bank Nyrt. Adatkezelési tájékoztatójának tartalmát megismertem és tudomásul vettem.

Eladó téglalakás leírása

Ritka befektetési lehetőség a Belváros szívében!Eladó a Hold utcában, a Batthyány-örökmécses közelében egy 151 nm-es, felújítandó nagypolgári lakás, egy liftes, 3 emeletes ház legfelső szintjén.A lakás két helyrajzi számon szerepel, így akár két különálló lakás is kialakítható ideális rövid vagy hosszú távú kiadásra, prémium bérlői környezetben.Igény esetén a közvetlenül mellette lévő, 169 nm-es lakás is megvásárolható, így több mint 320 nm-es ingatlanportfólió hozható létre egyedülálló lokációban.Miért befektetés?Ritkaságnak számít ekkora alapterület a belváros patinás részénKét külön lakás kialakítható, magas hozamlehetőséggelKiemelten keresett lokáció: Parlament, Szabadság tér, üzleti negyed pár perc sétáraJelentős értéknövekedési potenciál felújítást követőenEz az ingatlan azoknak szól, akik biztos, prémium lokációban keresnek értéknövelő befektetést.

Hirdetés feltöltve: 2025. 11. 27.

3 szobás téglalakások ára Budapesten

Ebből az összehasonlításból megtudhatod, hogyan viszonyul a lakás ára a környékbeli téglalakások átlagos árához. Ez nem azt jelenti, hogy ennyivel olcsóbb vagy drágább, mint amennyit a lakás ér, hanem hogy ennyivel tér el a környékbeli átlagtól.

Ennek a m² ára
V. kerület m² ár
Budapest m² ár
1894 e Ft
2383 e Ft 21%
1692 e Ft -12%
Ennek az ára
V. kerület átlagár
Budapest átlagár
286 M Ft m Ft
212.7 m Ft -34%
131.9 m Ft -117%

Az ingatlan elhelyezkedése

Cím: Budapest, V. kerület, 3. emelet

Eladó ingatlanok a környékről

Eladó téglalakás
Eladó téglalakás

V. kerület, Lipótváros

420 M Ft
4 szoba
147 m2
Eladó téglalakás
Eladó téglalakás

V. kerület, Lipótváros, 1051. OKTÓBER 6. utca

319.99 M Ft
3 szoba
100 m2
Eladó téglalakás
Eladó téglalakás

XVIII. kerület, Szent Imre kertváros

69.9 M Ft
3 szoba
67 m2
Eladó téglalakás
Eladó téglalakás

V. kerület, Lipótváros, TETŐTERASZOS, PANORÁMÁS LAKÁS

310.4 M Ft
3 szoba
81 m2
Eladó téglalakás
Eladó téglalakás

V. kerület, Belváros, Váci utca

329.9 M Ft
4 szoba
112 m2
Eladó családi ház
Eladó családi ház

XVIII. kerület

185 M Ft
4 szoba
109 m2
Eladó téglalakás
Eladó téglalakás

XIII. kerület

69.9 M Ft
1 szoba
39 m2
Eladó téglalakás
Eladó téglalakás

XVIII. kerület, Szent Imre kertváros

69.9 M Ft
3 szoba
67 m2
Eladó családi ház
Eladó családi ház

X. kerület

169.9 M Ft
4 szoba
122 m2
Eladó ikerház
Eladó ikerház

XVIII. kerület

165 M Ft
4 szoba
109 m2
Eladó családi ház
Eladó családi ház

XVIII. kerület

99.9 M Ft
2 + 1 szoba
122 m2
Eladó téglalakás
Eladó téglalakás

V. kerület

319 M Ft
3 szoba
107 m2
Eladó téglalakás
Eladó téglalakás

V. kerület

130 M Ft
2 szoba
55 m2
Eladó téglalakás
Eladó téglalakás

V. kerület, Lipótváros, Bazilikára panorámás lakás

335.62 M Ft
3 szoba
177 m2
Eladó családi ház
Eladó családi ház

XVI. kerület

158 M Ft
5 szoba
137 m2
Eladó téglalakás
Eladó téglalakás

V. kerület

169 M Ft
10 szoba
100 m2
Eladó téglalakás
Eladó téglalakás

V. kerület, Lipótváros, Október 6. utca

319 M Ft
3 szoba
108 m2
Eladó családi ház
Eladó családi ház

XVI. kerület

158 M Ft
5 szoba
137 m2
Eladó téglalakás
Eladó téglalakás

V. kerület, Belváros

260 M Ft
3 szoba
98 m2
Eladó családi ház
Eladó családi ház

XVIII. kerület

185 M Ft
4 szoba
109 m2
Eladó téglalakás
Eladó téglalakás

V. kerület, Lipótváros, Szent István körút

175 M Ft
3 szoba
90 m2
Eladó téglalakás
Eladó téglalakás

XIII. kerület

68.9 M Ft
1 szoba
35 m2
Eladó téglalakás
Eladó téglalakás

V. kerület

339.9 M Ft
4 szoba
121 m2
Eladó téglalakás
Eladó téglalakás

V. kerület, Lipótváros, Báthory utca

169.556 M Ft
2 + 1 szoba
78 m2

Falusi CSOK ingatlanok

Eladó családi ház
Eladó családi ház

Hercegszántó

33 M Ft
4 szoba
144 m2
Eladó családi ház
Eladó családi ház

Vaskút

64 M Ft
5 szoba
180 m2
Eladó családi ház
Eladó családi ház

Badacsonytördemic

182.36 M Ft
4 szoba
160 m2
Eladó családi ház
Eladó családi ház

Hegyfalu

14.9 M Ft
2 szoba
70 m2
Eladó családi ház
Eladó családi ház

Kesztölc

129.9 M Ft
8 szoba
210 m2
Eladó családi ház
Eladó családi ház

Nagybörzsöny

36 M Ft
2 + 1 szoba
74 m2
Eladó családi ház
Eladó családi ház

Ónod, Kossuth út 10

27.499 M Ft
3 + 2 szoba
120 m2
Eladó téglalakás
Eladó téglalakás

Táborfalva

26.8 M Ft
2 szoba
54 m2