Astora Olive Club House

Eladó téglalakás
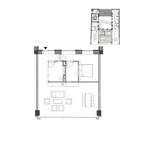
Budapest, V. kerület, Penthouse

+ 12 kép 1/15
647 000 000 Ft647 M Ft 2 630 081 Ft/m2
6 + 1 szoba
246 m2
Penthouse
építés éve:2018

Részletes adatok

Fűtés: Egyéb
Emelet: 6. emelet
Extrák: Lift
Energetikai besorolás: Nem adta meg a hirdető

Az OTP Bank lakáshitel ajánlataFizetett hirdetés

+36 30 711
Abonyi Lilla
referens

Érdekel az OTP Bank kedvezményes lakáshitel ajánlata? *

* A kérdésre „Igen” válasz bejelölése esetén, az „Üzenet küldése” gombra kattintva kijelentem, hogy az OTP Bank Nyrt. Adatkezelési tájékoztatójának tartalmát megismertem és tudomásul vettem.

Eladó téglalakás leírása

Budapest belváros, V. kerület, 6. emeleti, teljes szintet elfoglaló 246 m2-es lakás eladó. A lakás jelenleg 3 egységre tagolt, de könnyedén összenyitható. Az épület jó állapotú, 2018-ban különleges építészeti megoldásokkal teljesen új belsőt kapott, a tervezők 31 egyedi stílusú loft lakást alakítottak ki.
Tökéletes lokáció, tágas, világos terek és nagy belmagasságok, industrial stílus jellemzi a lakásokat. Az ingatlan a Múzeum körútra, a belső udvarra, a terasz pedig a Gellért-hegyre néz. A liftes ház belső udvarában acél hidak helyettesítik a korábbi körfolyosókat. Minden lakásban fan-coil rendszer biztosítja a fűtést és hűtést, padlófűtéssel kiegészítve.
Az épület Budapest központjában az Astoria metró megállónál található. Közeli bkk járatok: 47, 49-es villamos, a 7, 107,110, 112-es, busz. Séta távolságra van a Deák Ferenc tér a város legnagyobb tömegközlekedési csomópontja, három metróvonallal (M1, M2, M3). Gyorsan birtokba vehető.

Referencia szám: M314710

Hirdetés feltöltve: 2025. 10. 09. Utoljára módosítva: 2026. 01. 27.

Az ingatlan elhelyezkedése

Cím: Budapest, V. kerület, Penthouse

Eladó ingatlanok a környékről

Eladó téglalakás
Eladó téglalakás

XI. kerület, Gellérthegy, Gyula utca

130 M Ft
2 szoba
56 m2
Eladó téglalakás
Eladó téglalakás

V. kerület, Lipótváros, Nádor utca

76.072 M Ft
3 szoba
44 m2
Eladó téglalakás
Eladó téglalakás

V. kerület, Lipótváros, Október 6. utca

319 M Ft
3 szoba
108 m2
Eladó téglalakás
Eladó téglalakás

V. kerület, Belváros

229.362 M Ft
1 szoba
44 m2
Eladó téglalakás
Eladó téglalakás

V. kerület, Báthory utca

168.245 M Ft
2 + 1 szoba
78 m2
Eladó téglalakás
Eladó téglalakás

III. kerület, Óbudaisziget, Folyamőr utca

69.9 M Ft
1 szoba
25 m2
Eladó családi ház
Eladó családi ház

XXII. kerület, Budafok, Baross utca

222 M Ft
6 + 1 szoba
200 m2
Eladó téglalakás
Eladó téglalakás

IV. kerület, Újpest, Kassai utca

84.9 M Ft
2 + 1 szoba
71 m2
Eladó téglalakás
Eladó téglalakás

VII. kerület, Belső Erzsébetváros, Rózsa utca

170 M Ft
5 szoba
124 m2
Eladó téglalakás
Eladó téglalakás

V. kerület, Lipótváros, 1051. OKTÓBER 6. utca

339.99 M Ft
3 szoba
100 m2
Eladó téglalakás
Eladó téglalakás

V. kerület

319 M Ft
3 szoba
107 m2
Eladó téglalakás
Eladó téglalakás

V. kerület

319 M Ft
3 szoba
107 m2
Eladó téglalakás
Eladó téglalakás

V. kerület, Belváros, Vörösmarty tér

500.5 M Ft
3 + 1 szoba
135 m2
Eladó téglalakás
Eladó téglalakás

V. kerület, Belváros

260 M Ft
3 szoba
98 m2
Eladó téglalakás
Eladó téglalakás

V. kerület, Lipótváros

420 M Ft
4 szoba
147 m2
Eladó téglalakás
Eladó téglalakás

I. kerület, Krisztinaváros, Széna tér

189 M Ft
4 szoba
90 m2
Eladó téglalakás
Eladó téglalakás

X. kerület, Óhegy, Sörgyár utca 21

69.9 M Ft
2 szoba
56 m2
Eladó iroda
Eladó iroda

I. kerület, Víziváros, Széna tér

189 M Ft
4 szoba
90 m2
Eladó téglalakás
Eladó téglalakás

V. kerület, Lipótváros, TETŐTERASZOS, PANORÁMÁS LAKÁS

308 M Ft
3 szoba
81 m2
Eladó téglalakás
Eladó téglalakás

V. kerület

130 M Ft
2 szoba
55 m2
Eladó téglalakás
Eladó téglalakás

XXI. kerület, Gyártelep, Orion utca

39.5 M Ft
1 szoba
40 m2
Eladó téglalakás
Eladó téglalakás

V. kerület, Lipótváros, Luxus minőségű lakás

116 M Ft
51 m2
Eladó téglalakás
Eladó téglalakás

I. kerület, Krisztinaváros

169 M Ft
3 szoba
76 m2
Eladó téglalakás
Eladó téglalakás

V. kerület, Belváros, Váci utca

329.9 M Ft
4 szoba
112 m2

Falusi CSOK ingatlanok

Eladó családi ház
Eladó családi ház

Táborfalva

49 M Ft
3 szoba
77 m2
Eladó családi ház
Eladó családi ház

Kaposmérő

68 M Ft
2 + 2 szoba
150 m2
Eladó családi ház
Eladó családi ház

Zengővárkony

28 M Ft
3 szoba
87 m2
Eladó családi ház
Eladó családi ház

Egerág, Pozsonyi utca

26.9 M Ft
3 szoba
96 m2
Eladó családi ház
Eladó családi ház

Verseg

54 M Ft
2 szoba
92 m2
Eladó családi ház
Eladó családi ház

Úri, Fő utca

99 M Ft
6 szoba
150 m2
Eladó családi ház
Eladó családi ház

Fülöpszállás

299 M Ft
14 + 5 szoba
680 m2
Eladó családi ház
Eladó családi ház

Kaposgyarmat

695 M Ft
6 szoba
610 m2