Eladó téglalakás
Budapest, IX. kerület, Ferencváros, földszint 
Részletes adatok
Az OTP Bank lakáshitel ajánlataFizetett hirdetés
Induló törlesztőrészlet
101 262 Ft /hóTörlesztőrészlet a 13. hónaptól
129 106 Ft /hóInduló törlesztőrészlet
135 016 Ft /hóTörlesztőrészlet a 13. hónaptól
172 142 Ft /hóA tájékoztatás nem teljes körű és nem minősül ajánlattételnek. Az OTP Évnyerő Lakáshitelei 1 éves türelmi idős kölcsönök, amellyel az első 12 hónapban alacsonyabb a havi törlesztőrészlet. A tőke törlesztését a 13. hónaptól kell megkezdeni.
Eladó téglalakás leírása
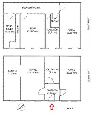
Belső kétszintes, csendes, 4 szobás, tágas lakás a Klinikák metróállomás közelében eladó ! 
Egy különleges hangulatú, belső kétszintes, 4 szobás, dupla komfortos lakás az 1900-as évek elején épült, szépen karbantartott társasház tágas belső udvarára néz, nyugodt életteret biztosítva új tulajdonosának.
A lakás a tulajdoni lapon 55 négyzetméterként szerepel, azonban a kialakításnak köszönhetően bruttó 103 négyzetméteres (használatbavételi engedéllyel). A lakáshoz tartozik egy 12 m²-es önálló pincehelyiség is. 
Főbb jellemzők:
-Belmagasság: 5,2 m, tágas, levegős térérzet - alsó szint: 2,55 m, felső szint: 2,18 m.
-Fűtés: cirkó gáz + konvektor - 2018-ban került korszerűsítésre.
-Meleg víz: korszerű hibrid bojler (fűtésről és elektromosan is működik) 
-Elektromos hálózat felújítva: 2016–2017
-Nyílászárók: műanyag
-Közös költség: 22.880 Ft, vízórával
-Extra lehetőség: az emeleti WC melletti tárolóban további fürdőszoba alakítható ki
A társasház homlokzata a lakás előtti részen 2024-ben esett át felújításon, így rendezett és esztétikus környezet várja az új tulajdonost.
Közlekedés:
A lokáció kiváló: az M3-as metró Klinikák megállója mindössze 2 perc sétára, de pár percen belül elérhető a 4-6-os villamos, valamint a 24-es és 51-es villamos is. Parkolás az utcán, fizetős övezetben lehetséges.
Környék:
A lakás közvetlenül a Ludovika tér és az Orczy-kert szomszédságában található, így zöldterület, pihenési lehetőség is adott. A környék számos étterem, kávézó, bolt kínálatával szolgálja a mindennapi kényelmet. A közelben található a Semmelweis Egyetem, a Nemzeti Közszolgálati Egyetem, valamint több más felsőoktatási intézmény is 15-20 perc alatt tömegközlekedéssel megközelíthető.
Amennyiben felkeltette érdeklődését az ingatlan és kérdése van vagy személyesen is szeretné megtekinteni, várom hívását egyeztetés céljából.
(PM) ...TOVÁBBI, TÖBBEZRES INGATLAN KÍNÁLAT: www.gdn-ingatlan.hu - GDN azonosító: 386980
Hirdetés feltöltve: 2025. 09. 08. Utoljára módosítva: 2025. 10. 23.
4 szobás téglalakások ára Budapesten
Ebből az összehasonlításból megtudhatod, hogyan viszonyul a lakás ára a környékbeli téglalakások átlagos árához. Ez nem azt jelenti, hogy ennyivel olcsóbb vagy drágább, mint amennyit a lakás ér, hanem hogy ennyivel tér el a környékbeli átlagtól.
Az ingatlan elhelyezkedése
Cím: Budapest, IX. kerület, Ferencváros, földszint
 
 
 
 
 
 
 
 
 
 
 
 
 
 
 
 
 
 
 
 
 
 
 
 
 
 
 
 
 
 
 
 
 
 
