City Pearl

Eladó téglalakás
Budapest, I. kerület, 2. emelet

+ 17 kép 1/20
185 000 000 Ft185 M Ft 1 947 368 Ft/m2
3 szoba
95 m2
2. emelet
építés éve:1918

Részletes adatok

Fűtés: Gázkazán
Extrák: Lift
Energetikai besorolás: Nem adta meg a hirdető

Az OTP Bank lakáshitel ajánlataFizetett hirdetés

+36 70 465
Sulok Bence
referens

Érdekel az OTP Bank kedvezményes lakáshitel ajánlata? *

* A kérdésre „Igen” válasz bejelölése esetén, az „Üzenet küldése” gombra kattintva kijelentem, hogy az OTP Bank Nyrt. Adatkezelési tájékoztatójának tartalmát megismertem és tudomásul vettem.

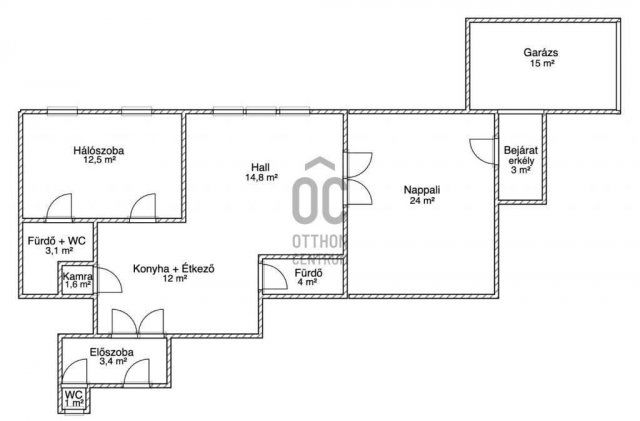
Eladó téglalakás leírása

Kuriózum lakás a Budai Vár tövében

Saját garázzsal, privát bejárattal, panorámával és elképesztő hangulattal!

Ez nem csak egy lakás – ez egy életstílus.
A Budai Vár alatt, az August-udvar exkluzív épületében kínáljuk ezt a 95 m²-es gyöngyszemet, ami egyszerre városi és meghitt, modern és történelmi, stílusos és praktikus.

Összesen 95 m²
– Lakás: 77 m²
– Saját garázs: 15 m² + 20 M Ft
– Erkély: 3 m²
– Saját pince-tároló: 6 m²
Mi teszi igazán különlegessé:

Privát bejárat közvetlenül a garázsból – szomszédok nélkül, teljes intimitásban.
3 méteres belmagasság, tágas terek, három szoba, dupla fürdőszoba (az egyik közvetlenül a hálóból).
Erkély a Várra és a Várkertre néző panorámával.
Világos, mégis kellemesen hűvös nyáron, meleg télen.
Teljes körű felújítás 2020-ba– új vezetékek, tölgyfa parketta, hő- és hangszigetelt nyílászárók, modern fűtésrendszer.

Belépések két irányból:

1. A társasház főbejáratán keresztül, lifttel, az Attila útról.
2. Közvetlenül a saját garázsból, ahonnan egyenesen a nappaliba léphetsz
Felszereltség:
Az ingatlan ízlésesen, teljesen berendezve eladó.
A bútorok és berendezések kérésre az ár részét képezhetik.
Azonnal költözhető vagy kiadható – eddig 1400 €/hó + rezsi áron bérbe adták.
Környezet:

Csendes, zöld, mégis a város szívében.
2 perc séta a Ybl Miklós tér és a Várkert Bazár, miközben a környék a Budai Vár felújítási programjával folyamatosan értékelődik.
A házban kisbolt, étterem és közösségi kávézó is található – minden kéznél.
Parkolás:

Saját, 15 m²-es garázs + 20 000 000Ft
A garázs előtti részen további autó is parkolhat
Kinek ajánljuk:

Diplomatáknak, felsővezetőknek, pároknak, vagy bárkinek, aki a privát luxust, a történelmi környezetet és a letisztult eleganciát** keresi – akár saját otthonnak, akár befektetésnek.

Ez az a lakás, ahol a Vár alatti történelem találkozik a mai élet kényelmével.
Budai hangulat, pesti ritkaság – egyetlen kulccsal.

Hirdetés feltöltve: 2025. 11. 15. Utoljára módosítva: 2025. 12. 09.

3 szobás téglalakások ára Budapesten

Ebből az összehasonlításból megtudhatod, hogyan viszonyul a lakás ára a környékbeli téglalakások átlagos árához. Ez nem azt jelenti, hogy ennyivel olcsóbb vagy drágább, mint amennyit a lakás ér, hanem hogy ennyivel tér el a környékbeli átlagtól.

Ennek a m² ára
I. kerület m² ár
Budapest m² ár
1947 e Ft
2242 e Ft 13%
1693 e Ft -15%
Ennek az ára
I. kerület átlagár
Budapest átlagár
185 M Ft m Ft
184.7 m Ft 0%
130.9 m Ft -41%

Az ingatlan elhelyezkedése

Cím: Budapest, I. kerület, 2. emelet

Eladó ingatlanok a környékről

Eladó téglalakás
Eladó téglalakás

I. kerület

204 M Ft
1 szoba
70 m2
Eladó téglalakás
Eladó téglalakás

V. kerület, Belváros, Petőfi Sándor utca

134 M Ft
2 szoba
59 m2
Eladó téglalakás
Eladó téglalakás

III. kerület, Óbuda, Szomolnok utca

89.9 M Ft
2 + 2 szoba
96 m2
Eladó téglalakás
Eladó téglalakás

I. kerület, Gellérthegy utca

249.9 M Ft
2 szoba
66 m2
Eladó téglalakás
Eladó téglalakás

I. kerület

114.9 M Ft
2 szoba
67 m2
Eladó téglalakás
Eladó téglalakás

I. kerület, Víziváros, Hunfalvy utca

58 M Ft
1 szoba
29 m2
Eladó téglalakás
Eladó téglalakás

VII. kerület, Belső Erzsébetváros, Rózsa utca

170 M Ft
5 szoba
124 m2
Eladó téglalakás
Eladó téglalakás

I. kerület

78 M Ft
1 szoba
32 m2
Eladó téglalakás
Eladó téglalakás

XI. kerület, Gellérthegy, Gombócz Zoltán utca

142 M Ft
2 + 1 szoba
71 m2
Eladó téglalakás
Eladó téglalakás

I. kerület

114.9 M Ft
2 szoba
67 m2
Eladó téglalakás
Eladó téglalakás

XIII. kerület, Angyalföld, Fiastyúk utca

39.9 M Ft
1 + 1 szoba
34 m2
Eladó téglalakás
Eladó téglalakás

I. kerület

114.9 M Ft
2 szoba
67 m2
Eladó téglalakás
Eladó téglalakás

XVIII. kerület

101 M Ft
3 szoba
67 m2
Eladó téglalakás
Eladó téglalakás

IV. kerület, Újpest, Kassai utca

84.9 M Ft
2 + 1 szoba
71 m2
Eladó téglalakás
Eladó téglalakás

VII. kerület, Belső Erzsébetváros, Erzsébet körút

89.9 M Ft
1 + 1 szoba
71 m2
Eladó téglalakás
Eladó téglalakás

I. kerület, Krisztinaváros, Feszty Árpád utca

78.99 M Ft
1 szoba
28 m2
Eladó téglalakás
Eladó téglalakás

III. kerület, Rómaifürdő, Királyok útja

139 M Ft
3 szoba
65 m2
Eladó téglalakás
Eladó téglalakás

XIV. kerület, Kiszugló, Kövér Lajos utca

168 M Ft
3 + 1 szoba
84 m2
Eladó téglalakás
Eladó téglalakás

I. kerület

99 M Ft
2 + 2 szoba
89 m2
Eladó téglalakás
Eladó téglalakás

I. kerület

305 M Ft
4 szoba
133 m2
Eladó üzlethelyiség
Eladó üzlethelyiség

II. kerület, Országút, Margit körút

6.999 M Ft
5 m2
Eladó téglalakás
Eladó téglalakás

I. kerület, Krisztinaváros, 1.kerület, Márvány utca

120 M Ft
3 szoba
41 m2
Eladó téglalakás
Eladó téglalakás

I. kerület

305 M Ft
4 szoba
133 m2
Eladó téglalakás
Eladó téglalakás

I. kerület, Krisztinaváros, 1.kerület, Márvány utca

210 M Ft
3 szoba
77 m2

Falusi CSOK ingatlanok

Eladó családi ház
Eladó családi ház

Kemeneshőgyész

8 M Ft
2 szoba
60 m2
Eladó családi ház
Eladó családi ház

Gáborján

5.5 M Ft
2 szoba
68 m2
Eladó családi ház
Eladó családi ház

Porva

74.6 M Ft
3 szoba
115 m2
Eladó téglalakás
Eladó téglalakás

Balatonszemes

91.5 M Ft
2 szoba
60 m2
Eladó családi ház
Eladó családi ház

Aszaló

16.49 M Ft
3 szoba
112 m2
Eladó téglalakás
Eladó téglalakás

Balatonszemes

123.3 M Ft
2 szoba
70 m2
Eladó családi ház
Eladó családi ház

Enese

78.9 M Ft
4 szoba
90 m2
Eladó családi ház
Eladó családi ház

Törtel

13.5 M Ft
5 szoba
74 m2