Avico Greentop

Eladó téglalakás
Budapest, I. kerület, Tetőtér

+ 17 kép 1/20
439 975 000 Ft439.975 M Ft 3 142 679 Ft/m2
5 szoba
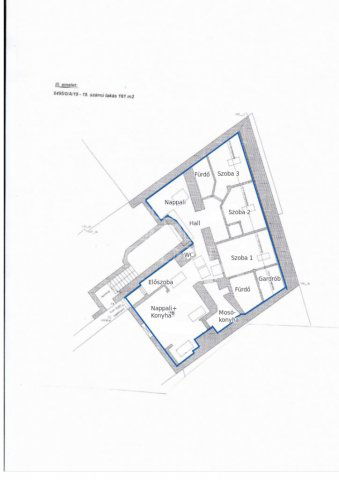
140 m²
Tetőtér
építés éve:2024

Részletes adatok

Fűtés: Gázkazán
Energetikai besorolás: Nem adta meg a hirdető

Az OTP Bank lakáshitel ajánlataFizetett hirdetés

+36 20 998
dr. Ivanics István
referens

Érdekel az OTP Bank kedvezményes lakáshitel ajánlata? *

* A kérdésre „Igen” válasz bejelölése esetén, az „Üzenet küldése” gombra kattintva kijelentem, hogy az OTP Bank Nyrt. Adatkezelési tájékoztatójának tartalmát megismertem és tudomásul vettem.

Eladó téglalakás leírása

Budapest egyik legpatinásabb és legexkluzívabb városrészében, a Budai Várban kínálunk megvételre egy egyedülálló, új építésű, magántulajdonban lévő, harmadik emeleti tetőtéri lakást, amely nemcsak kivételes elhelyezkedésével, hanem belső tereivel is ritkaságszámba megy.

Az ingatlan elrendezése: három külön nyíló szoba, amerikai konyhás nappali, egy belső, galériázatlan lakótér 5,5 méteres belmagassággal, két önálló fürdőszoba, vendégmosdó, valamint mosókonyha/gépészeti helyiség. Az öt szobából három közvetlenül az utcára néz, ahonnan panorámás kilátás nyílik a Dunára, ugyanakkor a lakás teljesen mentes az utcai zajtól.

A lakás minden fala szigetelt, a fűtést kondenzációs okoskazán, a hűtést pedig légcsatornázott, zajmentes klímarendszer biztosítja – ezek együttesen garantálják a kiváló hőkomfortot télen és nyáron egyaránt, teljes csendben.

Exceptional Top-Floor Apartment for Sale in the Prestigious Buda Castle District

In one of Budapest’s most exclusive and historically rich neighborhoods—the Buda Castle District—we offer for sale a truly unique, newly built, privately owned top-floor apartment. This exceptional property is remarkable not only for its prime location but also for its distinctive interior spaces.

The apartment features three separate bedrooms, an open-plan living room with kitchen, an internal living space with a ceiling height of 5.5 meters and no gallery, two fully equipped bathrooms, a guest toilet, and a laundry/mechanical room. Out of the five rooms, three face the street with panoramic views of the Danube, while the entire apartment remains completely insulated from street noise.

All walls are fully insulated, and the property is equipped with a condensing smart boiler and a ducted, silent air conditioning system. Together, these systems ensure superior thermal comfort and a peaceful atmosphere throughout the year, both in summer and winter. ...TOVÁBBI, TÖBBEZRES INGATLAN KÍNÁLAT: www.gdn-ingatlan.hu - GDN azonosító: 388623

Hirdetés feltöltve: 2025. 10. 17. Utoljára módosítva: 2026. 04. 01.

5 szobás téglalakások ára Budapesten

Ebből az összehasonlításból megtudhatod, hogyan viszonyul a lakás ára a környékbeli téglalakások átlagos árához. Ez nem azt jelenti, hogy ennyivel olcsóbb vagy drágább, mint amennyit a lakás ér, hanem hogy ennyivel tér el a környékbeli átlagtól.

Ennek a m² ára
I. kerület m² ár
Budapest m² ár
3143 e Ft
1828 e Ft -72%
1630 e Ft -93%
Ennek az ára
I. kerület átlagár
Budapest átlagár
439.975 M Ft m Ft
293.9 m Ft -50%
243.5 m Ft -81%

Az ingatlan elhelyezkedése

Cím: Budapest, I. kerület, Tetőtér

Eladó ingatlanok a környékről

I. kerület
Eladó téglalakás

Budapest, I. kerület

199.5 M Ft
3 szoba
94 m²
XIV. kerület
Eladó téglalakás

Budapest, XIV. kerület

72 M Ft
2 szoba
51 m²
VII. kerület, Belső Erzsébetváros, Síp utca
Eladó téglalakás

Budapest, VII. kerület

169 M Ft
3 szoba
90 m²
VII. kerület, Külső Erzsébetváros, Erzsébet körút
Eladó téglalakás

Budapest, VII. kerület

69.99 M Ft
2 szoba
50 m²
III. kerület
Eladó téglalakás

Budapest, III. kerület

240 M Ft
4 szoba
127 m²
XV. kerület, Rákospalota, Beller Imre
Eladó téglalakás

Budapest, XV. kerület

38.5 M Ft
2 szoba
32 m²
I. kerület, Krisztinaváros, 1.kerület, Márvány utca
Eladó téglalakás

Budapest, I. kerület

120 M Ft
3 szoba
41 m²
I. kerület
Eladó téglalakás

Budapest, I. kerület

239.9 M Ft
3 szoba
80 m²
XI. kerület, Kelenföld, Etele út
Eladó panellakás

Budapest, XI. kerület

69.9 M Ft
2 szoba
50 m²
I. kerület
Eladó téglalakás

Budapest, I. kerület

305 M Ft
4 szoba
133 m²
VIII. kerület, Józsefváros, Baross utca
Eladó téglalakás

Budapest, VIII. kerület

49.5 M Ft
1 szoba
33 m²
II. kerület
Eladó téglalakás

Budapest, II. kerület

190000000 M Ft
3 szoba
156 m²
IX. kerület
Eladó téglalakás

Budapest, IX. kerület

119.9 M Ft
2 + 1 szoba
80 m²
I. kerület, Víziváros, Hunyadi János út
Eladó téglalakás

Budapest, I. kerület

114.9 M Ft
2 szoba
67 m²
I. kerület, Krisztinaváros, Alagút utca
Eladó téglalakás

Budapest, I. kerület

99 M Ft
2 + 2 szoba
89 m²
I. kerület
Eladó téglalakás

Budapest, I. kerület

240 M Ft
3 szoba
80 m²
III. kerület
Eladó panellakás

Budapest, III. kerület

68.5 M Ft
2 szoba
57 m²
XIII. kerület, Vizafogó, Meder utca 2-4
Eladó téglalakás

Budapest, XIII. kerület

89 M Ft
2 szoba
47 m²
I. kerület
Eladó téglalakás

Budapest, I. kerület

114.9 M Ft
2 szoba
67 m²
I. kerület, Krisztinaváros, Attila út
Eladó téglalakás

Budapest, I. kerület

85.9 M Ft
1 szoba
46 m²
I. kerület, Víziváros, Bem rakpart
Eladó téglalakás

Budapest, I. kerület

250 M Ft
2 szoba
81 m²
I. kerület, Víziváros, Bem rakpart
Eladó téglalakás

Budapest, I. kerület

154 M Ft
3 szoba
78 m²
XIII. kerület
Eladó téglalakás

Budapest, XIII. kerület

104 M Ft
2 szoba
54 m²
VIII. kerület
Eladó panellakás

Budapest, VIII. kerület

64.9 M Ft
1 + 3 szoba
59 m²

Falusi CSOK ingatlanok

Balatonszepezd
Eladó családi ház

Balatonszepezd

299 M Ft
5 szoba
220 m²
Vokány
Eladó családi ház

Vokány

30 M Ft
4 szoba
100 m²
Röszke
Eladó családi ház

Röszke

69.99 M Ft
4 szoba
99 m²
Vid
Eladó családi ház

Vid

27 M Ft
4 szoba
100 m²
Szentmártonkáta
Eladó családi ház

Szentmártonkáta

51.9 M Ft
5 szoba
150 m²
Ceglédbercel
Eladó családi ház

Ceglédbercel

65.9 M Ft
3 szoba
97 m²
Ábrahámhegy
Eladó családi ház

Ábrahámhegy

139 M Ft
4 szoba
106 m²
Fülöpszállás
Eladó családi ház

Fülöpszállás

69.9 M Ft
4 szoba
190 m²