BAM Living

Eladó téglalakás
Budapest, I. kerület, 2. emelet

+ 13 kép 1/16
99 900 000 Ft99.9 M Ft 1 816 364 Ft/m2
3 szoba
55 m2
2. emelet
építés éve:1920

Részletes adatok

Állapot: Felújított
Fűtés: Gázkazán
Extrák: Lift
Energetikai besorolás: Nem adta meg a hirdető

Az OTP Bank lakáshitel ajánlataFizetett hirdetés

+36 30 871
Farkasné Hernádi Ágnes
OTPIP I. kerület Zsolt utcai iroda

Érdekel az OTP Bank kedvezményes lakáshitel ajánlata? *

* A kérdésre „Igen” válasz bejelölése esetén, az „Üzenet küldése” gombra kattintva kijelentem, hogy az OTP Bank Nyrt. Adatkezelési tájékoztatójának tartalmát megismertem és tudomásul vettem.

Eladó téglalakás leírása

Ha a Duna parton szeretne esténként sétálni vagy kocogni, ez a lakás ideális választás lehet. Csodás helyen, prémium lokációval, klasszikus lakás a Fő utcán.

A z ingatlant teljes mértékben felújította a tulajdonosa. Bejárati ajtó, összes nyílászáró, strangok, és a cirkó is ki lett cserélve. A meleget praktikusan padlófűtés szolgáltatja. Klíma és riasztó kiállások előkészítve. Konyhabútor és a minőségi gépek is teljesen újak.
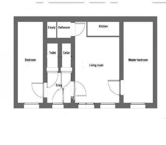
A külön bejáratú szobák mérete és elhelyezkedése is ideális, a mellékelt alaprajzon megtekinthető.
Közös költség 15.000.-Ft, ami tartalmazza a vízdíjat is. A társasháznak van megtakarítása, az épületben mindössze 24 lakás van.

Azonnal költözhető ez a gyönyörű lakás.

Az OTP Bank kedvezményes lakáshitelével segítjük a vásárlását, egyedi kamatfeltételekkel és díjmentes ügyintézéssel. Amennyiben a lakás felkeltette érdeklődését és szívesen megnézné, akkor hívjon bizalommal, akár hétvégén is! M309813

Referencia szám: M309813

Hirdetés feltöltve: 2025. 10. 03. Utoljára módosítva: 2025. 11. 02.

3 szobás téglalakások ára Budapesten

Ebből az összehasonlításból megtudhatod, hogyan viszonyul a lakás ára a környékbeli téglalakások átlagos árához. Ez nem azt jelenti, hogy ennyivel olcsóbb vagy drágább, mint amennyit a lakás ér, hanem hogy ennyivel tér el a környékbeli átlagtól.

Ennek a m² ára
I. kerület m² ár
Budapest m² ár
1816 e Ft
2177 e Ft 17%
1685 e Ft -8%
Ennek az ára
I. kerület átlagár
Budapest átlagár
99.9 M Ft m Ft
181.5 m Ft 45%
131.9 m Ft 24%

Az ingatlan elhelyezkedése

Cím: Budapest, I. kerület, 2. emelet

Eladó ingatlanok a környékről

Eladó téglalakás
Eladó téglalakás

XIV. kerület

64.9 M Ft
2 szoba
38 m2
Eladó családi ház
Eladó családi ház

XXI. kerület, Királyerdő

78.9 M Ft
3 szoba
68 m2
Eladó téglalakás
Eladó téglalakás

I. kerület

204 M Ft
1 szoba
70 m2
Eladó téglalakás
Eladó téglalakás

VII. kerület

49.6 M Ft
2 szoba
31 m2
Eladó téglalakás
Eladó téglalakás

I. kerület, Víziváros, Attila

119.5 M Ft
2 szoba
76 m2
Eladó téglalakás
Eladó téglalakás

X. kerület

22.7 M Ft
1 szoba
25 m2
Eladó téglalakás
Eladó téglalakás

I. kerület

114.9 M Ft
2 szoba
67 m2
Eladó téglalakás
Eladó téglalakás

I. kerület, Krisztinaváros, Alagút utca

99 M Ft
2 + 2 szoba
89 m2
Eladó családi ház
Eladó családi ház

XXI. kerület, Királyerdő

78.9 M Ft
3 szoba
68 m2
Eladó téglalakás
Eladó téglalakás

XVI. kerület

59.9 M Ft
2 szoba
48 m2
Eladó téglalakás
Eladó téglalakás

I. kerület, Krisztinaváros, 1.kerület, Márvány utca

210 M Ft
3 szoba
77 m2
Eladó téglalakás
Eladó téglalakás

XIII. kerület, Angyalföld

68.9 M Ft
1 szoba
38 m2
Eladó téglalakás
Eladó téglalakás

I. kerület, Gellérthegy utca

249.9 M Ft
2 szoba
66 m2
Eladó téglalakás
Eladó téglalakás

XII. kerület, Németvölgy

129 M Ft
3 szoba
64 m2
Eladó téglalakás
Eladó téglalakás

I. kerület, Krisztinaváros, 1.kerület, Márvány utca

120 M Ft
3 szoba
41 m2
Eladó családi ház
Eladó családi ház

XIX. kerület

98.9 M Ft
3 szoba
68 m2
Eladó családi ház
Eladó családi ház

XVII. kerület

106 M Ft
8 szoba
334 m2
Eladó téglalakás
Eladó téglalakás

I. kerület, Víziváros, Bem rakpart

240.078 M Ft
3 szoba
96 m2
Eladó téglalakás
Eladó téglalakás

VI. kerület

94 M Ft
2 szoba
53 m2
Eladó téglalakás
Eladó téglalakás

I. kerület, Víziváros, Bem rakpart

155.2 M Ft
3 szoba
78 m2
Eladó téglalakás
Eladó téglalakás

I. kerület, Víziváros

148 M Ft
3 szoba
88 m2
Eladó téglalakás
Eladó téglalakás

I. kerület

114.9 M Ft
2 szoba
67 m2
Eladó családi ház
Eladó családi ház

XVIII. kerület

162 M Ft
5 szoba
195 m2
Eladó ikerház
Eladó ikerház

XXI. kerület

179.9 M Ft
4 szoba
171 m2

Falusi CSOK ingatlanok

Eladó családi ház
Eladó családi ház

Katymár

6.7 M Ft
4 szoba
136 m2
Eladó családi ház
Eladó családi ház

Magyarszék

48.5 M Ft
3 + 1 szoba
86 m2
Eladó családi ház
Eladó családi ház

Bezenye

84.9 M Ft
4 + 1 szoba
145 m2
Eladó családi ház
Eladó családi ház

Berzence

69.9 M Ft
6 szoba
257 m2
Eladó családi ház
Eladó családi ház

Görbeháza

54 M Ft
5 szoba
158 m2
Eladó családi ház
Eladó családi ház

Nagyberki, Újváros u

20.9 M Ft
3 szoba
88 m2
Eladó családi ház
Eladó családi ház

Erdősmecske

32 M Ft
3 szoba
115 m2
Eladó családi ház
Eladó családi ház

Csemő

79.8 M Ft
2 szoba
88 m2