Astora Márvány8

Eladó téglalakás
Balatonfüred, 2. emelet

+ 1 kép 1/4
279 611 708 Ft279.612 M Ft 2 389 844 Ft/m2
4 szoba
117 m²
2. emelet
építés éve:2025

Részletes adatok

Fűtés: Egyéb
Emelet: 2. emelet
Extrák: Lift
Energetikai besorolás: Nem adta meg a hirdető

Az OTP Bank lakáshitel ajánlataFizetett hirdetés

+36 30 345
Maczucza Márton
OTP Ingatlanpont Veszprém

Érdekel az OTP Bank kedvezményes lakáshitel ajánlata? *

* A kérdésre „Igen” válasz bejelölése esetén, az „Üzenet küldése” gombra kattintva kijelentem, hogy az OTP Bank Nyrt. Adatkezelési tájékoztatójának tartalmát megismertem és tudomásul vettem.

Eladó téglalakás leírása

*** ÚJÉPÍTÉSŰ LAKÁSOK BALATONFÜREDEN, A BALATON KÖZELSÉGÉBEN! ***

Balatonfüreden, a tó partjától néhány lépésre kínálunk új építésű, lakásokat, melyek kulcsrakész állapotban kerülnek átadásra. Az ingatlanok modern építészeti megoldásokkal, magas minőségű anyagokkal és kifinomult műszaki tartalommal készülnek, kiváló infrastrukturális ellátottságú környezetben, parkosított területen.

Lakásméretek széles választékban:

Az 58 m²-es praktikus otthonoktól egészen a 130 m²-es panorámás penthouse lakásokig mindenki megtalálhatja az életstílusához legjobban illőt.

Minden karnyújtásnyira:

A központ, a Balaton-part, a móló, a strand és a bevásárlási lehetőségek gyalogosan is könnyen elérhetők.

Akadálymentes kialakítás:

A lakások lifttel, a mélygarázstól a legfelső emeletig akadálymentesen megközelíthetők.

Modern szerkezet és gépészet:

- Vasbeton épületszerkezet
- Fan-coil rendszer fűtéshez és hűtéshez
- A fürdőszobákban és a mellékhelyiségekben elektromos padlófűtés

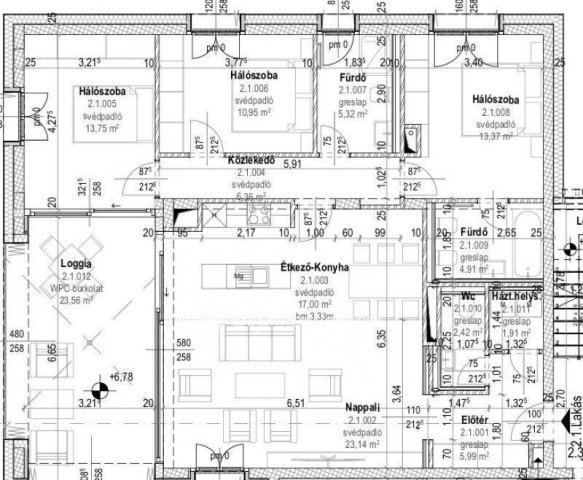
A kínált ingatlan:

- 118 m²-es lakás
- Tágas nappali amerikai konyhával és étkezővel
- 3 hálószoba
- 2 fürdőszoba
- nagy nyílászárók, természetes fény és panoráma
- saját fedett loggia

Kényelmes parkolás:

Mélygarázs, felszíni és mozgáskorlátozott parkolóhelyek is megvásárolhatók.

Személyre szabhatóság:

A belső burkolatok egyedileg választhatók, így az otthon teljes mértékben igazodhat az Ön ízléséhez.

Keressen bizalommal!

Kérje részletes prezentációnkat – biztosak vagyunk benne, hogy megtaláljuk az Ön számára tökéletes lakást Balatonfüreden!

Amennyiben hirdetésem felkeltette az érdeklődését, keressen bizalommal, az ingatlan időpont-egyeztetést követően rugalmasan megtekinthető! Nálunk minden megtekintés DÍJMENTES!

Az OTP Ingatlanpont teljes körű ügyintézéssel áll az eladók és a vevők rendelkezésére. A kínálatunkból választott ingatlan finanszírozásához kedvezményes hitelkonstrukciót kínálunk. Az adásvételi szerződés megkötéséhez igény szerint megbízható ügyvédi közreműködést biztosítunk, és segítséget nyújtunk az adásvételhez kapcsolódó ügyek intézéséhez is!

Hirdetés feltöltve: 2026. 04. 23. Utoljára módosítva: 2026. 04. 23.

4 szobás téglalakások ára Balatonfüreden

Ebből az összehasonlításból megtudhatod, hogyan viszonyul a lakás ára a környékbeli téglalakások átlagos árához. Ez nem azt jelenti, hogy ennyivel olcsóbb vagy drágább, mint amennyit a lakás ér, hanem hogy ennyivel tér el a környékbeli átlagtól.

Ennek a m² ára
Balatonfüred m² ár
2390 e Ft
2040 e Ft -17%
Ennek az ára
Balatonfüred átlagár
279.612 M Ft m Ft
244.1 m Ft -15%

Az ingatlan elhelyezkedése

Cím: Balatonfüred, 2. emelet

Eladó téglalakások a környékről

Balatonfüred
Eladó téglalakás

Balatonfüred

178.84 M Ft
5 szoba
184 m²
Balatonakarattya
Eladó téglalakás

Balatonakarattya

176.581 M Ft
2 szoba
67 m²
Balatonfüred, Külterület
Eladó téglalakás

Balatonfüred

202.249 M Ft
4 szoba
88 m²
Balatonfüred
Eladó téglalakás

Balatonfüred

74.9 M Ft
2 szoba
52 m²
Balatonfüred
Eladó téglalakás

Balatonfüred

435.728 M Ft
3 szoba
148 m²
Balatonfüred
Eladó téglalakás

Balatonfüred

166.576 M Ft
2 szoba
60 m²
Balatonfüred
Eladó téglalakás

Balatonfüred

95 M Ft
3 + 3 szoba
144 m²
Balatonfüred
Eladó téglalakás

Balatonfüred

205.64 M Ft
3 szoba
78 m²
Balatonfüred
Eladó téglalakás

Balatonfüred

217 M Ft
4 szoba
168 m²
Balatonfüred
Eladó téglalakás

Balatonfüred

165.06 M Ft
2 szoba
60 m²
Balatonfüred
Eladó téglalakás

Balatonfüred

399 M Ft
3 szoba
120 m²
Balatonfüred, Külterület
Eladó téglalakás

Balatonfüred

436.916 M Ft
4 szoba
216 m²
Balatonakarattya
Eladó téglalakás

Balatonakarattya

205.384 M Ft
3 szoba
78 m²
Balatonakarattya
Eladó téglalakás

Balatonakarattya

239.192 M Ft
3 szoba
92 m²
Balatonfüred
Eladó téglalakás

Balatonfüred

166 M Ft
4 szoba
103 m²
Tapolca
Eladó téglalakás

Tapolca

29.5 M Ft
2 szoba
54 m²
Balatonalmádi
Eladó téglalakás

Balatonalmádi

103 M Ft
2 szoba
47 m²
Balatonakarattya
Eladó téglalakás

Balatonakarattya

184.95 M Ft
2 szoba
70 m²
Balatonfüred
Eladó téglalakás

Balatonfüred

184 M Ft
4 szoba
119 m²
Balatonfüred
Eladó téglalakás

Balatonfüred

217 M Ft
4 szoba
168 m²
Balatonakarattya
Eladó téglalakás

Balatonakarattya

142.469 M Ft
2 szoba
54 m²
Balatonfüred
Eladó téglalakás

Balatonfüred

184 M Ft
4 szoba
119 m²
Balatonakarattya
Eladó téglalakás

Balatonakarattya

160.147 M Ft
2 szoba
61 m²
Balatonakarattya
Eladó téglalakás

Balatonakarattya

170.637 M Ft
2 szoba
65 m²

Falusi CSOK ingatlanok

Gutorfölde
Eladó családi ház

Gutorfölde

15 M Ft
4 szoba
119 m²
Ganna
Eladó családi ház

Ganna

29.9 M Ft
2 szoba
93 m²
Mád
Eladó családi ház

Mád

48 M Ft
3 szoba
181 m²
Villány
Eladó családi ház

Villány

65 M Ft
3 szoba
95 m²
Dombrád, Rákóczi út 22
Eladó családi ház

Dombrád

12.74 M Ft
1 + 1 szoba
125 m²
Bag
Eladó családi ház

Bag

110 M Ft
5 szoba
320 m²
Drávaszabolcs
Eladó családi ház

Drávaszabolcs

29 M Ft
4 szoba
90 m²
Kondoros
Eladó családi ház

Kondoros

25 M Ft
4 szoba
150 m²