Metrodom

Eladó téglalakás
Balatonfüred, földszint

180 341 712 Ft180.342 M Ft 2 691 667 Ft/m2
2 szoba
67 m²
földszint
építés éve:2025

Részletes adatok

Fűtés: Egyéb
Emelet: földszint
Extrák: Lift
Energetikai besorolás: Nem adta meg a hirdető

Az OTP Bank lakáshitel ajánlataFizetett hirdetés

+36 30 345
Maczucza Márton
OTP Ingatlanpont Veszprém

Érdekel az OTP Bank kedvezményes lakáshitel ajánlata? *

* A kérdésre „Igen” válasz bejelölése esetén, az „Üzenet küldése” gombra kattintva kijelentem, hogy az OTP Bank Nyrt. Adatkezelési tájékoztatójának tartalmát megismertem és tudomásul vettem.

Eladó téglalakás leírása

*** ÚJÉPÍTÉSŰ LAKÁSOK BALATONFÜREDEN, A BALATON KÖZELSÉGÉBEN! ***

Képzelje el, hogy néhány perc sétára a Balaton partjától egy vadonatúj, kulcsrakész otthon várja Önt! Balatonfüred egyik legkedveltebb részén kínálunk modern lakásokat, melyek a legújabb építészeti megoldásokkal, minőségi anyagokkal és igényes műszaki tartalommal készülnek, parkosított, barátságos környezetben.

Lakásválaszték minden életstílushoz:

A praktikus, 58 m²-es lakásoktól egészen a tágas, 130 m²-es panorámás penthouse lakásokig széles a kínálat – mindenki megtalálhatja az álomotthont.

Minden kényelmesen elérhető:

A belváros, a strand, a bevásárlási lehetőségek és a móló egy kellemes sétával is könnyen megközelíthetők.

Akadálymentes kényelem:

A lifteknek köszönhetően a mélygarázstól a legfelső emeletig bárhonnan egyszerűen és kényelmesen közlekedhet.

Modern technológia:

- Stabil vasbeton szerkezet
- Fan-coil hűtés-fűtés rendszer
- Elektromos padlófűtés a fürdőszobákban

A kínált ingatlan jellemzői:

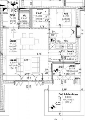
- 59 m2 nettó alapterület, melyhez kapcsolódik egy 7 m2-es fedett loggia és egy 11 m2-es fedetlen terasz
- Kizárólagos használatú kert
- Tágas és világos amerikai konyhás nappali
- Egy hálószoba és fürdőszoba
- Nagy nyílászárók, természetes fény és gyönyörű panoráma

Parkolás gond nélkül:

Mélygarázs, felszíni és mozgáskorlátozott parkolóhelyek is rendelkezésre állnak.

Személyre szabott otthon:

A burkolatokat Ön választhatja ki, így otthona tökéletesen tükrözheti az ízlését.

Ne hagyja ki ezt a lehetőséget – kérje részletes prezentációnkat, és találja meg Balatonfüreden az Önnek leginkább megfelelő új otthont!

Amennyiben hirdetésem felkeltette az érdeklődését, keressen bizalommal, az ingatlan időpont-egyeztetést követően rugalmasan megtekinthető! Nálunk minden megtekintés DÍJMENTES!

Az OTP Ingatlanpont teljes körű ügyintézéssel áll az eladók és a vevők rendelkezésére. A kínálatunkból választott ingatlan finanszírozásához kedvezményes hitelkonstrukciót kínálunk. Az adásvételi szerződés megkötéséhez igény szerint megbízható ügyvédi közreműködést biztosítunk, és segítséget nyújtunk az adásvételhez kapcsolódó ügyek intézéséhez is!

Hirdetés feltöltve: 2026. 04. 09. Utoljára módosítva: 2026. 04. 09.

2 szobás téglalakások ára Balatonfüreden

Ebből az összehasonlításból megtudhatod, hogyan viszonyul a lakás ára a környékbeli téglalakások átlagos árához. Ez nem azt jelenti, hogy ennyivel olcsóbb vagy drágább, mint amennyit a lakás ér, hanem hogy ennyivel tér el a környékbeli átlagtól.

Ennek a m² ára
Balatonfüred m² ár
2692 e Ft
1121 e Ft -140%
Ennek az ára
Balatonfüred átlagár
180.342 M Ft m Ft
225.5 m Ft 20%

Az ingatlan elhelyezkedése

Cím: Balatonfüred, földszint

Eladó téglalakások a környékről

Balatonfüred
Eladó téglalakás

Balatonfüred

435.728 M Ft
3 szoba
148 m²
Pápa
Eladó téglalakás

Pápa

37.445 M Ft
1 + 1 szoba
41 m²
Balatonakarattya
Eladó téglalakás

Balatonakarattya

205.384 M Ft
3 szoba
78 m²
Balatonfüred
Eladó téglalakás

Balatonfüred

205.64 M Ft
3 szoba
78 m²
Tapolca
Eladó téglalakás

Tapolca

29.5 M Ft
2 szoba
54 m²
Balatonfüred
Eladó téglalakás

Balatonfüred

74.9 M Ft
2 szoba
52 m²
Balatonfüred
Eladó téglalakás

Balatonfüred

74.9 M Ft
2 szoba
55 m²
Balatonfüred
Eladó téglalakás

Balatonfüred

166 M Ft
4 szoba
103 m²
Balatonakarattya
Eladó téglalakás

Balatonakarattya

160.147 M Ft
2 szoba
61 m²
Balatonfüred
Eladó téglalakás

Balatonfüred

399 M Ft
3 szoba
120 m²
Balatonfüred
Eladó téglalakás

Balatonfüred

143 M Ft
3 szoba
83 m²
Balatonakarattya
Eladó téglalakás

Balatonakarattya

170.637 M Ft
2 szoba
65 m²
Balatonfüred
Eladó téglalakás

Balatonfüred

74.9 M Ft
2 szoba
55 m²
Balatonfüred, Külterület
Eladó téglalakás

Balatonfüred

301.109 M Ft
4 szoba
133 m²
Balatonfüred, Külterület
Eladó téglalakás

Balatonfüred

202.249 M Ft
4 szoba
88 m²
Balatonfüred, Külterület
Eladó téglalakás

Balatonfüred

435.728 M Ft
4 szoba
214 m²
Balatonfüred
Eladó téglalakás

Balatonfüred

143 M Ft
3 szoba
83 m²
Balatonfüred
Eladó téglalakás

Balatonfüred

166.58 M Ft
3 szoba
60 m²
Balatonfüred
Eladó téglalakás

Balatonfüred

399 M Ft
3 szoba
120 m²
Balatonfüred
Eladó téglalakás

Balatonfüred

436.916 M Ft
3 szoba
142 m²
Balatonakarattya
Eladó téglalakás

Balatonakarattya

176.581 M Ft
2 szoba
67 m²
Balatonfüred
Eladó téglalakás

Balatonfüred

217 M Ft
4 szoba
168 m²
Balatonfüred
Eladó téglalakás

Balatonfüred

262.676 M Ft
5 szoba
194 m²
Balatonfüred
Eladó téglalakás

Balatonfüred

166.576 M Ft
2 szoba
60 m²

Falusi CSOK ingatlanok

Vokány
Eladó családi ház

Vokány

30 M Ft
4 szoba
100 m²
Mikebuda
Eladó családi ház

Mikebuda

55 M Ft
3 + 1 szoba
97 m²
Újlengyel
Eladó családi ház

Újlengyel

110 M Ft
4 szoba
121 m²
Tápiógyörgye
Eladó családi ház

Tápiógyörgye

34.9 M Ft
3 szoba
74 m²
Röszke
Eladó családi ház

Röszke

140 M Ft
4 szoba
162 m²
Balatonberény
Eladó családi ház

Balatonberény

290 M Ft
12 szoba
214 m²
Bag
Eladó családi ház

Bag

16.9 M Ft
6 szoba
160 m²
Ásványráró
Eladó családi ház

Ásványráró

42.5 M Ft
703 m²
69 m²