Eladó téglalakás
Albertirsa, földszint

+ 5 kép 1/8
86 000 000 Ft86 M Ft 716 667 Ft/m2
4 szoba
120 m2
földszint
építés éve:2025

Részletes adatok

Fűtés: Egyéb
Energetikai besorolás: Nem adta meg a hirdető

Az OTP Bank lakáshitel ajánlataFizetett hirdetés

+36 70 358
Jancsovics-Andó Bernadett
referens

Érdekel az OTP Bank kedvezményes lakáshitel ajánlata? *

* A kérdésre „Igen” válasz bejelölése esetén, az „Üzenet küldése” gombra kattintva kijelentem, hogy az OTP Bank Nyrt. Adatkezelési tájékoztatójának tartalmát megismertem és tudomásul vettem.

Eladó téglalakás leírása

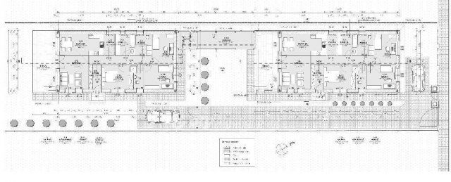
Pest vármegye, Albertirsa kertvárosi részén 2025. év végén átadásra kerülő kétlakásos lakóépület 120 m2 nagyságú lakása 1058 m2-es osztatlan közös tulajdonú telken eladó. A kétlakásos összkomfortos ingatlan hátsó, 2-es számú lakása A energetikai besorolással, 30 cm-es Porotherm téglából, 15 cm-es homlokzati szigeteléssel, 25 cm kőzetgyapottal szigetelt fa szerkezetű, gipszkarton álmennyezetű födémmel, fa tetőszerkezeten beton héjazattal és körben csatornával készül. A ház egy nappalival, három szobával, egy konyha-étkezővel, egy kamrával, egy kisebb méretű tárolóval, két fürdőszoba-WC helyiséggel, egy közlekedővel, egy előszobával és egy 24 m2 nagyságú nyitott terasszal kerül megépítésre. Az összközműves ingatlanban a közművek közül a háromfázisú (3x20 Amper), valamint az egyfázisú H-tarifás villany-, a vezetékes víz-ellátás, a csatorna, és a gáz a telken belül megtalálható. A külső műanyag ablakok 3 rétegű üvegezéssel, redőnnyel, valamint ablakonként egy szúnyoghálóval kerülnek beépítésre, a bejárat biztonsági ajtóval lesz kivitelezve. A belső terek elválasztására jó minőségű dekor ajtók kerülnek beépítésre. Az otthon melegét és a melegvíz ellátását hőszivattyú biztosítja padlófűtéses hőleadással, alternatív megoldásként inverteres hűtő-fűtő klíma kerül beépítésre. A szobák laminált padló-, a többi helyiség járólap burkolatot kapnak, a fürdőszoba és a WC-helyiségekbe Mofém szaniterek kerülnek beépítésre. Az ingatlan vételára tartalmazza a több rétegben készre dolgozott fehér festést és a villanykapcsolókat. A terasz járólappal lesz burkolva.
A lakóház körben bekerítésre kerül, gépjárművek számára az utcáról használati megosztással a nagyobb udvarrészre kapubejáró biztosított lesz. Az udvar tereprendezéssel kerül átadásra. Az ár a bútorzatot nem tartalmazza.
Az ingatlan elhelyezkedése kiváló, újépítésű ingatlanok szomszédságában épül. A közelben minden megtalálható: többféle bevásárlási lehetőség, iskola, óvoda, élelmiszerbolt, egészségügyi rendelő, benzinkút, Polgármesteri Hivatal 1-2 km-en belül megközelíthető, a településen a tömegközlekedés megoldott.
A hirdetés tájékoztató jellegű, az ingatlanról pontos adatokat a megtekintést követően a tulajdonos által elmondottak alapján tudunk garantálni!
A vásárlás finanszírozásában az OTP kedvezőbb kamatozású hitelkonstrukcióival tudunk segíteni díjmentesen, sorban állás nélkül! Az adásvételi szerződés lebonyolításához korrekt ügyvédi közreműködést tudunk ajánlani. Amennyiben felkeltettem érdeklődését, hívjon bizalommal! Eladó ingatlanokat keresünk meglévő és új ügyfeleink részére!

Referencia szám: M300667-ZE

Hirdetés feltöltve: 2025. 09. 01. Utoljára módosítva: 2025. 10. 19.

Az ingatlan elhelyezkedése

Cím: Albertirsa, földszint

Eladó téglalakások a környékről

Eladó téglalakás
Eladó téglalakás

Albertirsa

86 M Ft
4 szoba
120 m2
Eladó téglalakás
Eladó téglalakás

Albertirsa

52.8 M Ft
3 szoba
56 m2
Eladó téglalakás
Eladó téglalakás

Göd

32.5 M Ft
2 szoba
44 m2
Eladó téglalakás
Eladó téglalakás

Albertirsa

48.5 M Ft
2 szoba
56 m2
Eladó téglalakás
Eladó téglalakás

Albertirsa

48.5 M Ft
2 szoba
56 m2
Eladó téglalakás
Eladó téglalakás

Göd

28.9 M Ft
2 szoba
46 m2
Eladó téglalakás
Eladó téglalakás

Albertirsa

64 M Ft
4 szoba
67 m2
Eladó téglalakás
Eladó téglalakás

Albertirsa

18.5 M Ft
1 szoba
38 m2
Eladó téglalakás
Eladó téglalakás

Göd

44.5 M Ft
3 szoba
70 m2
Eladó téglalakás
Eladó téglalakás

Albertirsa

60 M Ft
3 szoba
67 m2
Eladó téglalakás
Eladó téglalakás

Göd

29.5 M Ft
2 szoba
44 m2
Eladó téglalakás
Eladó téglalakás

Albertirsa

60.8 M Ft
3 szoba
51 m2
Eladó téglalakás
Eladó téglalakás

Göd

32.9 M Ft
2 szoba
44 m2
Eladó téglalakás
Eladó téglalakás

Göd

29.5 M Ft
2 szoba
47 m2
Eladó téglalakás
Eladó téglalakás

Göd, Oázis utca

27.9 M Ft
2 szoba
44 m2
Eladó téglalakás
Eladó téglalakás

Göd

44.5 M Ft
3 szoba
69 m2
Eladó téglalakás
Eladó téglalakás

Göd

28.9 M Ft
2 szoba
46 m2
Eladó téglalakás
Eladó téglalakás

Albertirsa

43.5 M Ft
3 szoba
52 m2
Eladó téglalakás
Eladó téglalakás

Albertirsa

54.8 M Ft
2 szoba
55 m2
Eladó téglalakás
Eladó téglalakás

Göd

44.5 M Ft
3 szoba
73 m2
Eladó téglalakás
Eladó téglalakás

Göd

28.9 M Ft
2 szoba
44 m2
Eladó téglalakás
Eladó téglalakás

Albertirsa

65 M Ft
2 szoba
70 m2
Eladó téglalakás
Eladó téglalakás

Göd

44.9 M Ft
3 szoba
58 m2
Eladó téglalakás
Eladó téglalakás

Albertirsa

48 M Ft
2 szoba
56 m2

Falusi CSOK ingatlanok

Eladó családi ház
Eladó családi ház

Nagyrécse

19 M Ft
2 szoba
52 m2
Eladó családi ház
Eladó családi ház

Dunaegyháza

13.5 M Ft
2 szoba
120 m2
Eladó családi ház
Eladó családi ház

Bácsborsód

39.9 M Ft
5 szoba
170 m2
Eladó ikerház
Eladó ikerház

Seregélyes

94.9 M Ft
4 szoba
107 m2
Eladó családi ház
Eladó családi ház

Bárdudvarnok

28.7 M Ft
6 szoba
286 m2
Eladó családi ház
Eladó családi ház

Nagyhegyes

47.9 M Ft
2 szoba
72 m2
Eladó családi ház
Eladó családi ház

Szilvágy

49.99 M Ft
3 szoba
90 m2
Eladó családi ház
Eladó családi ház

Pusztaföldvár, Dózsa utca 2

3.76 M Ft
1 + 1 szoba
87 m2