Astora Art House

Eladó téglalakás
Ács, földszint

59 949 400 Ft59.949 M Ft 856 420 Ft/m2
3 szoba
70 m²
földszint
építés éve:2025

Részletes adatok

Fűtés: Egyéb
Emelet: földszint
Energetikai besorolás: Nem adta meg a hirdető

Az OTP Bank lakáshitel ajánlataFizetett hirdetés

+36 70 372
Dobos András
referens

Érdekel az OTP Bank kedvezményes lakáshitel ajánlata? *

* A kérdésre „Igen” válasz bejelölése esetén, az „Üzenet küldése” gombra kattintva kijelentem, hogy az OTP Bank Nyrt. Adatkezelési tájékoztatójának tartalmát megismertem és tudomásul vettem.

Eladó téglalakás leírása

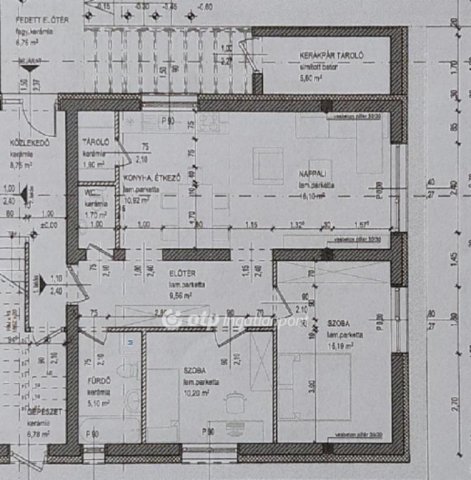
Komárom-Esztergom vármegyében, Ácson modern, 4 lakásos társasházakban új építésű lakások vásárolhatók kiváló műszaki tartalommal és minőségi beépített anyagokkal. 2026. II. negyedévi átadással emeltszintű fűtés- szerkezetkész állapotban leköthetők, igény szerint kulcsrakész átadást is vállal a kivitelező. Az épületek monolit vasbeton vázszerkezettel készülnek, falazatuk 30 cm vastag Leier Plan tégla, míg a válaszfalak 10 cm-es hanggátló téglából épülnek. A homlokzati hőszigetelés 15 cm vastagságú. Beépített nyílászárók kiváló minőséget képviselnek, 5 légkamrás, 3 rétegű üveggel, motoros redőnnyel, szúnyoghálóval ellátott ablakok, kívül dió, belül fehér színben.
A földszinti lakások kizárólagos használatú kerttel rendelkeznek, míg az emeleti lakásokhoz tágas erkély tartozik. A fűtésről és melegvízellátásról lakásonként saját hőszivattyú gondoskodik, padlófűtéssel fürdőben törölközőszárítóval. A meghirdetett ár szerkezetkész állapotra vonatkozik, MAGÁBAN FOGLALJA A TELEKHÁNYADOT, VALAMINT AJÁNDÉK KOCSIBEÁLLÓT. Ez egy földszinti lakás, 70,67nm +163nm saját használatú kertkapcsolat.
A projekt nyugodt, zöld környezetben valósul meg, napfényes és tágas lakásokkal, praktikus alaprajzokkal és modern megoldásokkal. Több éves tapasztalattal rendelkező kivitelező garantálja a minőséget, nyugodt,élhető, környezetben.
Amennyiben további kérdése van, forduljon hozzánk bizalommal elérhetőségeinken.

59949400 Ft
Tekintse meg személyesen, várom hívását!
Dobos András +36703724717

Referencia szám: M311378

Hirdetés feltöltve: 2026. 04. 12. Utoljára módosítva: 2026. 05. 06.

3 szobás téglalakások ára Ácson

Ebből az összehasonlításból megtudhatod, hogyan viszonyul a lakás ára a környékbeli téglalakások átlagos árához. Ez nem azt jelenti, hogy ennyivel olcsóbb vagy drágább, mint amennyit a lakás ér, hanem hogy ennyivel tér el a környékbeli átlagtól.

Ennek a m² ára
Ács m² ár
856 e Ft
526 e Ft -63%
Ennek az ára
Ács átlagár
59.949 M Ft m Ft
31.5 m Ft -90%

Az ingatlan elhelyezkedése

Cím: Ács, földszint

Eladó ingatlanok a környékről

Nyergesújfalu, Kossuth Lajos utca
Eladó téglalakás

Nyergesújfalu

82.9 M Ft
3 szoba
80 m²
Ács
Eladó téglalakás

Ács

38 M Ft
3 szoba
99 m²
Ács, Cukorgyár lakótelep
Eladó téglalakás

Ács

35.5 M Ft
2 szoba
81 m²
Lábatlan, Rákóczi Ferenc út
Eladó iroda

Lábatlan

130 M Ft
485 m²
Tatabánya
Eladó téglalakás

Tatabánya

35.8 M Ft
2 szoba
43 m²
Tatabánya
Eladó téglalakás

Tatabánya

48.6 M Ft
3 szoba
56 m²
Dorog
Eladó téglalakás

Dorog

59.9 M Ft
1 + 1 szoba
47 m²
Komárom
Eladó téglalakás

Komárom

35 M Ft
1 szoba
50 m²
Héreg
Eladó családi ház

Héreg

67.99 M Ft
6 szoba
303 m²
Komárom
Eladó téglalakás

Komárom

22.4 M Ft
1 szoba
32 m²
Pilismarót, Rákóczi utca 4
Eladó ipari ingatlan

Pilismarót

400 M Ft
4800 m²
2300 m²
Komárom
Eladó téglalakás

Komárom

84.9 M Ft
3 szoba
73 m²
Epöl
Eladó családi ház

Epöl

35.9 M Ft
3 szoba
72 m²
Tardos, Szent Flórián utca
Eladó családi ház

Tardos

14.9 M Ft
2 szoba
60 m²
Tata
Eladó téglalakás

Tata

64.9 M Ft
3 szoba
74 m²
Ács
Eladó téglalakás

Ács

71.095 M Ft
4 szoba
95 m²
Ács
Eladó téglalakás

Ács

55.212 M Ft
2 szoba
74 m²
Komárom
Eladó panellakás

Komárom

52.99 M Ft
2 + 1 szoba
55 m²
Komárom, Mártírok útja
Eladó téglalakás

Komárom

45.484 M Ft
2 szoba
43 m²
Komárom, Mártírok útja
Eladó téglalakás

Komárom

43.477 M Ft
2 szoba
50 m²
Oroszlány
Eladó téglalakás

Oroszlány

28.499 M Ft
3 szoba
51 m²
Ács
Eladó téglalakás

Ács

59.949 M Ft
3 szoba
70 m²
Dorog
Eladó téglalakás

Dorog

55 M Ft
2 szoba
48 m²
Komárom, Mártírok útja
Eladó téglalakás

Komárom

42.672 M Ft
2 szoba
53 m²

Falusi CSOK ingatlanok

Márianosztra
Eladó családi ház

Márianosztra

38 M Ft
4 szoba
75 m²
Pécsvárad
Eladó családi ház

Pécsvárad

189 M Ft
7 szoba
618 m²
Bácsbokod
Eladó családi ház

Bácsbokod

55 M Ft
6 szoba
250 m²
Hegyeshalom, Margaréta utca 12
Eladó téglalakás

Hegyeshalom

46.91 M Ft
2 szoba
43 m²
Kiszombor, Óbébai utca
Eladó családi ház

Kiszombor

32.9 M Ft
4 szoba
140 m²
Zalaszabar
Eladó családi ház

Zalaszabar

17 M Ft
1 szoba
60 m²
Jánosháza
Eladó családi ház

Jánosháza

23.5 M Ft
3 szoba
90 m²
Balatonszárszó
Eladó családi ház

Balatonszárszó

178 M Ft
6 szoba
260 m²