Seven Pearl

Eladó sorház
Miskolc

+ 17 kép 1/20
73 000 000 Ft73 M Ft 486 667 Ft/m2
5 szoba
150 m2
építés éve:1986

Részletes adatok

Állapot: Átlagos
Telekméret: 94 m2
Fűtés: Héra
Energetikai besorolás: Nem adta meg a hirdető

Az OTP Bank lakáshitel ajánlataFizetett hirdetés

+36 30 120
Antal-Dusza Hajnalka
OTP IP Miskolc Corvin 1-3

Érdekel az OTP Bank kedvezményes lakáshitel ajánlata? *

* A kérdésre „Igen” válasz bejelölése esetén, az „Üzenet küldése” gombra kattintva kijelentem, hogy az OTP Bank Nyrt. Adatkezelési tájékoztatójának tartalmát megismertem és tudomásul vettem.

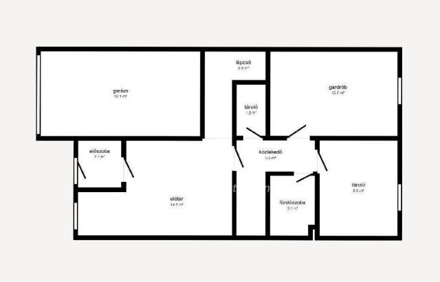
Eladó sorház leírása

Kivételes lehetőség Miskolc Vologda városrészén!
Eladó háromszintes, erkélyes sorházi lakás garázzsal, azonnal költözhető állapotban!

Eladásra kínálunk Miskolc kedvelt, csendes városrészén, a Vologda lakóövezetben, egy ritkán elérhető, háromszintes sorházi lakást garázzsal, erkélyekkel, teljes komforttal.

Főbb jellemzők:

Három szinten elhelyezkedő, tágas lakótér, jól szeparált, mégis praktikus elrendezés

Összkomfortos kialakítás, minden adott a kényelmes mindennapokhoz

Saját erkélyek ? pihenéshez, kávézáshoz ideális

Saját garázs, közvetlen kapcsolat a lakással

Klímaberendezéssel felszerelt, kellemes hőérzet nyáron is

Gázkazános központi fűtés, gazdaságos, megbízható rendszer

Azonnal költözhető, de igény szerint felújítható, remek alap egy modern otthon kialakításához

Lokáció:

A Vologda városrész családias hangulatú, jól ellátott környezet, kiváló közlekedéssel, iskola, óvoda, üzletek és buszmegállók közelében. Ideális választás akár nagycsaládosoknak, akár befektetőknek is.

Ne hagyja ki ezt a kivételes lehetőséget, hasonló ingatlan ritkán kerül piacra ezen a környéken!

További információért, megtekintésért keressen bizalommal!

Csapjon le rá még ma, mielőtt más megteszi! OTP Banki hátterünknek köszönhetően finanszírozási igényekben (pl. Otthon Start Hitelprogram , Babaváró, Falusi CSOK, CSOK Plusz, Lakáshitel, Személyi kölcsön stb.), illetve biztosítások tekintetében is díjmentesen, soron kívüli ügyintézéssel segítem ügyfeleim!
Hívjon bizalommal, és hivatkozzon az M312645 referenciaszámra.

Referencia szám: M312645

Hirdetés feltöltve: 2025. 11. 06. Utoljára módosítva: 2025. 11. 27.

5 szobás sorházak ára Miskolcon

Ebből az összehasonlításból megtudhatod, hogyan viszonyul a lakás ára a környékbeli sorházak átlagos árához. Ez nem azt jelenti, hogy ennyivel olcsóbb vagy drágább, mint amennyit a lakás ér, hanem hogy ennyivel tér el a környékbeli átlagtól.

Ennek a m² ára
Miskolc m² ár
487 e Ft
425 e Ft -15%
Ennek az ára
Miskolc átlagár
73 M Ft m Ft
87.4 m Ft 16%

Az ingatlan elhelyezkedése

Cím: Miskolc

Eladó sorházak a környékről

Eladó sorház
Eladó sorház

Miskolc

139 M Ft
4 szoba
144 m2
Eladó sorház
Eladó sorház

Miskolc

84.99 M Ft
4 + 2 szoba
255 m2
Eladó sorház
Eladó sorház

Miskolc

84.99 M Ft
4 + 2 szoba
255 m2
Eladó sorház
Eladó sorház

Miskolc

84.99 M Ft
4 + 2 szoba
255 m2
Eladó sorház
Eladó sorház

Miskolc

84.99 M Ft
4 + 2 szoba
173 m2
Eladó sorház
Eladó sorház

Miskolc

12 M Ft
2 szoba
76 m2
Eladó sorház
Eladó sorház

Sátoraljaújhely, Kossuth Lajos út

15.89 M Ft
10 m²
41 m2
Eladó sorház
Eladó sorház

Miskolc, Belváros, Szemere Bertalan utca

248 M Ft
13 szoba
607 m2
Eladó sorház
Eladó sorház

Miskolc

84.99 M Ft
4 + 2 szoba
255 m2
Eladó sorház
Eladó sorház

Miskolc

73 M Ft
5 szoba
150 m2
Eladó sorház
Eladó sorház

Miskolc

99.8 M Ft
4 + 2 szoba
255 m2
Eladó sorház
Eladó sorház

Miskolc

84.99 M Ft
4 + 2 szoba
255 m2
Eladó sorház
Eladó sorház

Miskolc

84.99 M Ft
4 + 2 szoba
255 m2
Eladó sorház
Eladó sorház

Miskolc

139 M Ft
4 szoba
144 m2
Eladó sorház
Eladó sorház

Miskolc

84.99 M Ft
4 + 2 szoba
255 m2
Eladó sorház
Eladó sorház

Miskolc

139 M Ft
4 szoba
144 m2
Eladó sorház
Eladó sorház

Miskolc

84.99 M Ft
4 + 2 szoba
255 m2
Eladó sorház
Eladó sorház

Miskolc

99.8 M Ft
4 + 2 szoba
255 m2
Eladó sorház
Eladó sorház

Miskolc

139 M Ft
4 szoba
144 m2
Eladó sorház
Eladó sorház

Miskolc

84.99 M Ft
4 + 2 szoba
255 m2
Eladó sorház
Eladó sorház

Sátoraljaújhely

42.99 M Ft
4 szoba
81 m2
Eladó sorház
Eladó sorház

Miskolc

78.99 M Ft
5 szoba
180 m2
Eladó sorház
Eladó sorház

Sárospatak, Izsó Miklós utca

47 M Ft
4 szoba
159 m2
Eladó sorház
Eladó sorház

Miskolc

78.99 M Ft
5 szoba
180 m2

Falusi CSOK ingatlanok

Eladó családi ház
Eladó családi ház

Tápiógyörgye

33 M Ft
3 + 2 szoba
140 m2
Eladó családi ház
Eladó családi ház

Fertőd

189.9 M Ft
4 szoba
175 m2
Eladó családi ház
Eladó családi ház

Fertőszentmiklós

98.5 M Ft
4 szoba
82 m2
Eladó családi ház
Eladó családi ház

Jakabszállás

69.99 M Ft
1 + 4 szoba
91 m2
Eladó családi ház
Eladó családi ház

Kenyeri

39.9 M Ft
3 szoba
94 m2
Eladó családi ház
Eladó családi ház

Hövej

119.9 M Ft
3 szoba
75 m2
Eladó családi ház
Eladó családi ház

Gönyű

111.951 M Ft
4 szoba
105 m2
Eladó családi ház
Eladó családi ház

Ónod, Barátság 9

31.999 M Ft
3 szoba
150 m2