Astora Art House

Eladó sorház
Kajászó

103 900 000 Ft103.9 M Ft 873 109 Ft/m2
4 szoba
119 m²
építés éve:2026

Részletes adatok

Telekméret: 200 m2
Fűtés: Gázkazán
Parkolás: Garázs
Energetikai besorolás: Nem adta meg a hirdető
Zenga Premier

Friss hirdetések, amiket nem találsz meg más ingatlankereső portálon.

Fedezd fel elsőként a Zenga Premier címkés eladó ingatlanokat!

További részletek a zenga.hu-n

Az OTP Bank lakáshitel ajánlataFizetett hirdetés

+36 70 907
Grácz Zsolt
referens

Érdekel az OTP Bank kedvezményes lakáshitel ajánlata? *

* A kérdésre „Igen” válasz bejelölése esetén, az „Üzenet küldése” gombra kattintva kijelentem, hogy az OTP Bank Nyrt. Adatkezelési tájékoztatójának tartalmát megismertem és tudomásul vettem.

Eladó sorház leírása

Kajászó központjában, egy zöldövezeti mellékutcában eladó 4 db nappali + 2 és 3 hálószobás sorházi lakás saját garázzsal, terasszal, erkéllyel és saját használatú kertrésszel.

A lakásokat sok éves tapasztalattal rendelkező kivitelező építi, a ház mellett áll egy korábban elkészült, hasonló sorház.

Helyiségeiben igény szerint választhatóak a hideg és meleg burkolatok a kivitelező által meghatározott értékben (műszaki tartalom).

A lakások a garázsoknál kerülnek összeépítésre, nincs közös lakóhelyiséggel érintkező közös falazatuk, ezáltal szeparáltak egymástól.
Várható átadás: 2026. ősz

-falazata: 30-as Porotherm tégla, szigetelés: 15 cm-es homlokzati hőszigetelő rendszer, tetőcserép fedéssel épülnek.

Műanyag nyílászárók kívül, választható fóliás ajtók belül, fűtése gáz kondenzációs kazánnal, radiátoros hőleadással, ajándék klíma a lakásokhoz!

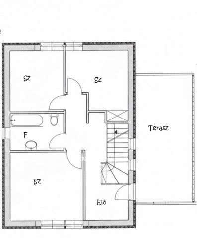
Helyiségek:

I. és IV. LAKÁS
Földszint (53,62 m2)
Előtér: 4,29 m2
WC: 1,98 m2
Nappali: 33,56 m2
Konyha-étkező: 9,45 m2
Lépcsőház-Tároló 4,34 m2
Külső terület (Terasz): 21,47 m2
Külső terület (Gépkocsi beálló): 18,60 m2
Emelet (45 m2)
Közlekedő: 11,07 m2
Fürdő: 4,44 m2
Szoba: 11,78 m2
Szoba: 8,42 m2
Gardrób (félszoba) 5,72 m2
Mosókonyha 3,56 m2
Terasz: 20,4 m2

Össz nettó: 98,6 m2 + 20.15m2 (1/3 teraszok és garázs) 119 m2

II. és III. LAKÁS
Összes hasznos alapterület: 53,7 m2
Előtér: 4,30 m2
WC: 1,98 m2
Nappali: 33,67 m2
Konyha-étkező: 9,41 m2
Lépcsőház-Tároló 4,34 m2
Külső terület (Terasz): 21,47 m2
Külső terület (Gépkocsi beálló): 18,60 m2
Emelet (45,3 m2)
Közlekedő: 10,31 m2
Fürdő: 5,52 m2
Szoba: 12,86 m2
Szoba: 8,5 m2
Szoba 8,15 m2
Terasz: 20,4 m2
Össz nettó: 99 m2 + 20.15m2 (1/3 teraszok és garázs) 119 m2

A bruttó méretet a hasznos lakóterületből, valamint a teraszok, erkélyek és garázsok egyharmadát beleszámolva állapítottam meg.

A hirdetésben szereplő képek között vannak referencia- és látványképek is.

A részletekért keressen bizalommal!

Hirdetés feltöltve: 2026. 03. 10.

Az ingatlan elhelyezkedése

Cím: Kajászó

Eladó ingatlanok a környékről

Dunaújváros
Eladó panellakás

Dunaújváros

46.5 M Ft
2 + 1 szoba
56 m²
Székesfehérvár, Maroshegy, Tasnádi utca
Eladó sorház

Székesfehérvár

87.5 M Ft
1 + 3 szoba
72 m²
Dunaújváros
Eladó panellakás

Dunaújváros

33.8 M Ft
2 szoba
53 m²
Nagyvenyim
Eladó családi ház

Nagyvenyim

145 M Ft
4 szoba
406 m²
Kápolnásnyék
Eladó sorház

Kápolnásnyék

97.4 M Ft
4 szoba
148 m²
Martonvásár
Eladó sorház

Martonvásár

39.7 M Ft
2 szoba
57 m²
Ercsi
Eladó sorház

Ercsi

19.9 M Ft
1 szoba
32 m²
Székesfehérvár
Eladó panellakás

Székesfehérvár

45.9 M Ft
2 szoba
52 m²
Bicske
Eladó sorház

Bicske

69.9 M Ft
3 szoba
77 m²
Székesfehérvár
Eladó sorház

Székesfehérvár

62.9 M Ft
3 szoba
80 m²
Iváncsa
Eladó családi ház

Iváncsa

70 M Ft
5 szoba
340 m²
Isztimér, Burok-völgy
Eladó mezogazdasagi ingatlan

Isztimér

55.64 M Ft
21.4 ha
0 m²
Alcsútdoboz, Föld utca
Eladó telek

Alcsútdoboz

35 M Ft
6190 m²
Gárdony
Eladó téglalakás

Gárdony

67.5 M Ft
3 szoba
72 m²
Székesfehérvár
Eladó sorház

Székesfehérvár

75 M Ft
4 szoba
100 m²
Székesfehérvár
Eladó családi ház

Székesfehérvár

135 M Ft
4 szoba
132 m²
Lajoskomárom
Eladó családi ház

Lajoskomárom

42 M Ft
5 szoba
102 m²
Bicske, Kossuth Lajos utca
Eladó sorház

Bicske

41 M Ft
3 szoba
53 m²
Székesfehérvár, Öreghegy, Bártfai utca
Eladó sorház

Székesfehérvár

115 M Ft
3 + 1 szoba
97 m²
Ercsi
Eladó családi ház

Ercsi

64.9 M Ft
6 szoba
111 m²
Gárdony
Eladó sorház

Gárdony

109 M Ft
4 szoba
134 m²
Kajászó
Eladó sorház

Kajászó

106.9 M Ft
3 + 1 szoba
119 m²
Székesfehérvár
Eladó téglalakás

Székesfehérvár

48.4 M Ft
2 szoba
50 m²
Lovasberény
Eladó telek

Lovasberény

11.9 M Ft
1079 m²
0 m²

Falusi CSOK ingatlanok

Sajóvámos
Eladó családi ház

Sajóvámos

71.9 M Ft
3 szoba
120 m²
Segesd
Eladó családi ház

Segesd

14.3 M Ft
3 szoba
100 m²
Pannonhalma
Eladó családi ház

Pannonhalma

129.7 M Ft
5 szoba
142 m²
Nyáregyháza
Eladó családi ház

Nyáregyháza

114.99 M Ft
7 szoba
267 m²
Magyarszék
Eladó családi ház

Magyarszék

48.5 M Ft
3 + 1 szoba
86 m²
Mencshely
Eladó családi ház

Mencshely

99 M Ft
3 szoba
126 m²
Kunadacs
Eladó családi ház

Kunadacs

80 M Ft
4 szoba
148 m²
Bogács
Eladó családi ház

Bogács

89.5 M Ft
4 + 2 szoba
180 m²