Avico Greentop

Eladó sorház
Hajdúszoboszló

+ 17 kép 1/20
105 000 000 Ft105 M Ft 853 659 Ft/m2
1 + 2 szoba
123 m²
építés éve:2025

Részletes adatok

Telekméret: 418 m2
Fűtés: Gázkazán
Energetikai besorolás: Nem adta meg a hirdető

Az OTP Bank lakáshitel ajánlataFizetett hirdetés

+36 70 904
Hódosné Gábor Éva
Otp Ingatlanpont

Érdekel az OTP Bank kedvezményes lakáshitel ajánlata? *

* A kérdésre „Igen” válasz bejelölése esetén, az „Üzenet küldése” gombra kattintva kijelentem, hogy az OTP Bank Nyrt. Adatkezelési tájékoztatójának tartalmát megismertem és tudomásul vettem.

Eladó sorház leírása

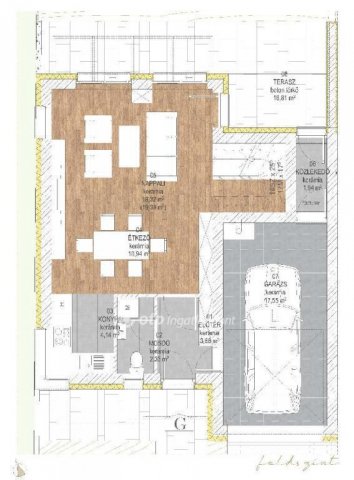
ELADÓ Igényes új építésű 7 db családi házból álló saját kerttel is rendelkező sorház, amely kényelmes és tágas otthona lehet családoknak. A hirdetett G ház mérete 123 nm. A földszint alapterülete 67 nm, az emelet mérete 56 nm. A földszinten mosdó, konyha, étkező, nappali, közlekedő, garázs és terasz található, valamint egy 78 nm-es saját kertrész is tartozik hozzá. Az emeleten 1 szoba, 2 félszoba, közlekedő, fürdő, gardrób, wc, terasz és loggia kerül kialakításra.

Elérhető sorházi lakások:
A ház 123,17 nm 105mFt
B ház 123,17 nm 105mFt
C ház 147,25 nm 135mFt
D ház 147,25 nm 135mFt
E ház 147,25 nm 135mFt
F ház 122,43 nm 105mFt
G ház 123,17 nm 105mFt

Főbb paraméterek a következőek:
-Főfalak: 30-as POROTHERM tégla falazat + 15 cm polisztirol hőszigetelés
-Nyílászárók: műanyag tok- és szárnyszerkezetűek, 3 rétegű hőszigetelt üvegezéssel készülnek, egyedi gyártással
-Tetőtéri ablakok FAKRO tkivitelben ípusú standard U3 üvegezéssel ellátva
-Klíma: szintenként 1db nagy teljesítményű energiatakarékos hűtő-fűtő klíma
-Házanként 1 db Riello 24 kW teljesítményű, kondenzációs fali gázkazán gondoskodik fűtésről (padlófűtés) és a meleg víz ellátásról
-2kw napelemrendszer / lakóegység , éves elszámolásban

Készültség:
Az E,F,G jelölésű sorház már elkészült, kulcsrakészen birtokba vehető.
A,B,C és D jelölésű sorházak kivitelezése elkezdődött, várhatóan legkésőbb 2026 4. negyedévében kulcsrakészen birtokba vehetőek!

Az OTP bankcsoport teljes körű ügyintézéssel áll rendelkezésre az eladók és a vevők részére!
További kérdéseivel, megtekintésre való egyeztetés kapcsán keressen bátran a hét bármely napján!

Hirdetés feltöltve: 2026. 04. 03. Utoljára módosítva: 2026. 04. 03.

3 szobás sorházak ára Hajdúszoboszlón

Ebből az összehasonlításból megtudhatod, hogyan viszonyul a lakás ára a környékbeli sorházak átlagos árához. Ez nem azt jelenti, hogy ennyivel olcsóbb vagy drágább, mint amennyit a lakás ér, hanem hogy ennyivel tér el a környékbeli átlagtól.

Ennek a m² ára
Hajdúszoboszló m² ár
854 e Ft
894 e Ft 4%
Ennek az ára
Hajdúszoboszló átlagár
105 M Ft m Ft
114.4 m Ft 8%

Az ingatlan elhelyezkedése

Cím: Hajdúszoboszló

Eladó sorházak a környékről

Hajdúszoboszló
Eladó sorház

Hajdúszoboszló

103.9 M Ft
3 + 2 szoba
126 m²
Debrecen
Eladó sorház

Debrecen

127.9 M Ft
4 szoba
95 m²
Debrecen
Eladó sorház

Debrecen

127.9 M Ft
2 + 1 szoba
95 m²
Hajdúszoboszló
Eladó sorház

Hajdúszoboszló

105 M Ft
1 szoba
123 m²
Debrecen
Eladó sorház

Debrecen

141.9 M Ft
5 szoba
170 m²
Debrecen
Eladó sorház

Debrecen

166.95 M Ft
5 szoba
180 m²
Hajdúszoboszló
Eladó sorház

Hajdúszoboszló

95 M Ft
3 + 1 szoba
123 m²
Hajdúszoboszló
Eladó sorház

Hajdúszoboszló

134.99 M Ft
1 szoba
147 m²
Hajdúszoboszló
Eladó sorház

Hajdúszoboszló

97.99 M Ft
3 szoba
87 m²
Mikepércs, Debreceni utca
Eladó sorház

Mikepércs

700 M Ft
1 szoba
1150 m²
Hajdúsámson
Eladó sorház

Hajdúsámson

65 M Ft
4 szoba
69 m²
Hajdúszoboszló
Eladó sorház

Hajdúszoboszló

95 M Ft
3 + 1 szoba
123 m²
Debrecen
Eladó sorház

Debrecen

127.9 M Ft
2 + 1 szoba
95 m²
Hajdúböszörmény
Eladó sorház

Hajdúböszörmény

69 M Ft
1 + 4 szoba
105 m²
Hajdúszoboszló
Eladó sorház

Hajdúszoboszló

95 M Ft
3 + 1 szoba
123 m²
Hajdúszoboszló
Eladó sorház

Hajdúszoboszló

105 M Ft
1 szoba
123 m²
Hajdúszoboszló
Eladó sorház

Hajdúszoboszló

103.9 M Ft
5 szoba
126 m²
Hajdúszoboszló
Eladó sorház

Hajdúszoboszló

134.99 M Ft
1 szoba
147 m²
Hajdúszoboszló
Eladó sorház

Hajdúszoboszló

105 M Ft
1 szoba
123 m²
Hajdúszoboszló
Eladó sorház

Hajdúszoboszló

105 M Ft
1 szoba
123 m²
Debrecen, Vénkert, Botond
Eladó sorház

Debrecen

134.9 M Ft
5 szoba
162 m²
Debrecen
Eladó sorház

Debrecen

149.9 M Ft
4 szoba
125 m²
Hajdúszoboszló
Eladó sorház

Hajdúszoboszló

105 M Ft
1 szoba
123 m²
Debrecen
Eladó sorház

Debrecen

133 M Ft
3 + 1 szoba
110 m²

Falusi CSOK ingatlanok

Verseg
Eladó családi ház

Verseg

32.5 M Ft
1 + 1 szoba
42 m²
Mencshely
Eladó családi ház

Mencshely

99 M Ft
3 szoba
126 m²
Balatonszemes, Ady E. utca 6
Eladó téglalakás

Balatonszemes

108.9 M Ft
2 + 1 szoba
63 m²
Gesztely
Eladó családi ház

Gesztely

34.9 M Ft
3 szoba
95 m²
Ganna
Eladó családi ház

Ganna

29.9 M Ft
2 szoba
93 m²
Bag
Eladó családi ház

Bag

116 M Ft
5 + 1 szoba
148 m²
Badacsonytomaj
Eladó családi ház

Badacsonytomaj

285 M Ft
4 szoba
230 m²
Kálócfa
Eladó családi ház

Kálócfa

15.99 M Ft
3 szoba
80 m²