Metrodom

Eladó sorház
Gyula

+ 17 kép 1/20
92 000 000 Ft92 M Ft 730 159 Ft/m2
2 + 3 szoba
126 m2
építés éve:1980

Részletes adatok

Állapot: Felújított
Telekméret: 171 m2
Fűtés: Gázkazán
Energetikai besorolás: Nem adta meg a hirdető

Az OTP Bank lakáshitel ajánlataFizetett hirdetés

+36 70 314
Katona Csilla
Otp Ingatlanpont Gyula

Érdekel az OTP Bank kedvezményes lakáshitel ajánlata? *

* A kérdésre „Igen” válasz bejelölése esetén, az „Üzenet küldése” gombra kattintva kijelentem, hogy az OTP Bank Nyrt. Adatkezelési tájékoztatójának tartalmát megismertem és tudomásul vettem.

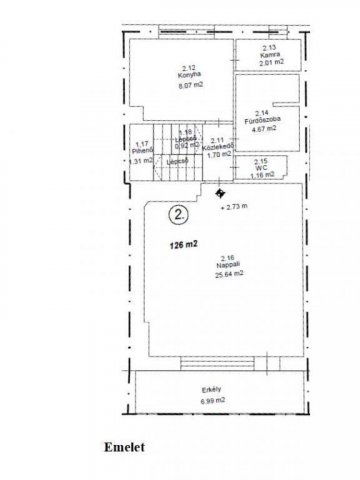
Eladó sorház leírása

Gyulán, a Vár és a Várfürdő közvetlen közelében kínálok eladásra egy 126 nm-es téglából épült, háromszintes kiváló állapotú sorházat. Az ingatlan földszintjén elektromosan nyitható, zárt garázs, egy szoba, előszoba és egy WC található. Az első emeleten tágas, 25 nm-es nappali kapott helyet, amelyhez kényelmes terasz kapcsolódik. Itt található még a konyha, valamint külön fürdőszoba és WC is. A tetőtérben három hálószoba (két félszoba és egy nagyobb szoba), valamint fürdőszoba WC-vel szolgálja a kényelmet. A ház kívülről és a tető is hőszigetelt, emellett 2,5 kW-os napelemrendszer gondoskodik az energiatakarékosságról. A fűtésről többféle megoldás gondoskodik: gázkazán, vegyes tüzelésű kazán, valamint két hűtő-fűtő klíma. A modern kényelmet növeli a minden szinten kiépített központi porszívórendszer, az ablakok szúnyoghálóval ellátott és elektromos redőnnyel felszereltek. Ingatlanhoz tartozik igény szerint leválasztható közös udvar, amit egy fedett teraszról élvezhetünk. Az ház teljes bútorzattal és gépesített konyhával együtt eladó, így az új tulajdonos azonnal birtokba veheti. Igény esetén hitelügyintéző kollégánk tájékoztatja Önt a jelenleg elérhető legkedvezőbb feltételekről.

Hirdetés feltöltve: 2026. 01. 16. Utoljára módosítva: 2026. 01. 16.

Az ingatlan elhelyezkedése

Cím: Gyula

Eladó ingatlanok a környékről

Eladó sorház
Eladó sorház

Gyula

54 M Ft
3 + 1 szoba
113 m2
Eladó sorház
Eladó sorház

Gyula

77.9 M Ft
4 szoba
124 m2
Eladó sorház
Eladó sorház

Gyula

79.99 M Ft
4 szoba
110 m2
Eladó sorház
Eladó sorház

Orosháza

42 M Ft
4 szoba
115 m2
Eladó sorház
Eladó sorház

Békéscsaba

85.9 M Ft
4 szoba
137 m2
Eladó családi ház
Eladó családi ház

Sarkad

18 M Ft
3 szoba
2153 m2
Eladó sorház
Eladó sorház

Gyula

54 M Ft
5 szoba
115 m2
Eladó sorház
Eladó sorház

Gyula

75 M Ft
4 szoba
95 m2
Eladó sorház
Eladó sorház

Békéscsaba

46 M Ft
4 szoba
196 m2
Eladó sorház
Eladó sorház

Gyula

54 M Ft
3 + 1 szoba
113 m2
Eladó sorház
Eladó sorház

Gyula

89 M Ft
4 + 1 szoba
135 m2
Eladó sorház
Eladó sorház

Gyula

55 M Ft
3 szoba
69 m2
Eladó nyaraló
Eladó nyaraló

Gyula

13.5 M Ft
1 szoba
22 m2
Eladó sorház
Eladó sorház

Gyula

110 M Ft
4 szoba
107 m2
Eladó sorház
Eladó sorház

Békéscsaba

68.8 M Ft
3 + 1 szoba
85 m2
Eladó sorház
Eladó sorház

Gyula

92 M Ft
2 + 3 szoba
126 m2
Eladó sorház
Eladó sorház

Gyula

75 M Ft
4 szoba
95 m2
Eladó sorház
Eladó sorház

Gyula

77.9 M Ft
4 szoba
124 m2
Eladó családi ház
Eladó családi ház

Gyula

69 M Ft
5 + 2 szoba
155 m2
Eladó sorház
Eladó sorház

Mezőhegyes

37 M Ft
7 szoba
269 m2
Eladó sorház
Eladó sorház

Békéscsaba

68.8 M Ft
3 szoba
85 m2
Eladó sorház
Eladó sorház

Gyula

79.99 M Ft
4 szoba
110 m2
Eladó sorház
Eladó sorház

Sarkad

5 M Ft
1 szoba
41 m2
Eladó sorház
Eladó sorház

Gyula

59 M Ft
3 szoba
82 m2

Falusi CSOK ingatlanok

Eladó családi ház
Eladó családi ház

Jakabszállás

69.99 M Ft
1 + 4 szoba
91 m2
Eladó családi ház
Eladó családi ház

Nyárlőrinc

18.9 M Ft
1 szoba
440 m2
Eladó családi ház
Eladó családi ház

Madaras

13.5 M Ft
3 szoba
210 m2
Eladó családi ház
Eladó családi ház

Somogyhárságy

188.65 M Ft
5 szoba
250 m2
Eladó családi ház
Eladó családi ház

Mezőfalva

39 M Ft
3 szoba
77 m2
Eladó családi ház
Eladó családi ház

Ádánd

53.5 M Ft
6 szoba
180 m2
Eladó családi ház
Eladó családi ház

Kölked

42 M Ft
3 szoba
100 m2
Eladó családi ház
Eladó családi ház

Parád

25 M Ft
2 szoba
80 m2