Astora Olive Club House

Eladó panellakás
Tiszaújváros, 9. emelet

+ 9 kép 1/12
28 990 000 Ft28.99 M Ft 527 091 Ft/m2
2 szoba
55 m2
9. emelet
építés éve:1984

Részletes adatok

Fűtés: Távfűtés
Extrák: Lift
Energetikai besorolás: Nem adta meg a hirdető

Az OTP Bank lakáshitel ajánlataFizetett hirdetés

+36 30 590
Drótos Bence
OTP Ingatlanpont Miskolc Szemere

Érdekel az OTP Bank kedvezményes lakáshitel ajánlata? *

* A kérdésre „Igen” válasz bejelölése esetén, az „Üzenet küldése” gombra kattintva kijelentem, hogy az OTP Bank Nyrt. Adatkezelési tájékoztatójának tartalmát megismertem és tudomásul vettem.

Eladó panellakás leírása

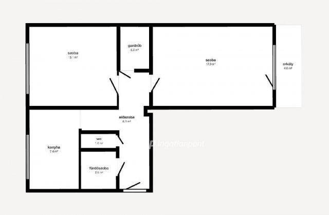
ELADÓ KÉTSZOBÁS LAKÁS TISZAÚJVÁROSBAN! Eladó Tiszaújváros egyik legkedveltebb és legjobb fekvésű helyén, a Szent István úton egy 55 nm-es, kétszobás, erkélyes, gardróbos panellakás pincerésszel! Szobái külön nyílnak, ablakai hőszigeteltek. Az erkélyről csodás kilátás nyílik a közelben lévő tóra. Lépcsőháza tiszta rendes, a szomszédok kulturáltak. Üzletek, szolgáltatások, iskola pár percre. Kiváló lehetőség mindazoknak, akik a napi fáradalmak után egy kényelmes nyugodt otthonban szeretnék kipihenni magukat.
Várom hívását hétvégén is!
OTP Banki hátterünknek köszönhetően finanszírozási igényekben (pl. Otthon Start Hitelprogram, Babaváró, Falusi CSOK, CSOK Plusz, Lakáshitel, Személyi kölcsön stb.), illetve biztosítások tekintetében is díjmentesen, soron kívüli ügyintézéssel segítem ügyfeleim!
Referenciaszám: M317960

Hirdetés feltöltve: 2025. 12. 17. Utoljára módosítva: 2026. 01. 09.

2 szobás panellakások ára Tiszaújvárosban

Ebből az összehasonlításból megtudhatod, hogyan viszonyul a lakás ára a környékbeli panellakások átlagos árához. Ez nem azt jelenti, hogy ennyivel olcsóbb vagy drágább, mint amennyit a lakás ér, hanem hogy ennyivel tér el a környékbeli átlagtól.

Ennek a m² ára
Tiszaújváros m² ár
527 e Ft
509 e Ft -4%
Ennek az ára
Tiszaújváros átlagár
28.99 M Ft m Ft
26.4 m Ft -10%

Az ingatlan elhelyezkedése

Cím: Tiszaújváros, 9. emelet

Eladó ingatlanok a környékről

Eladó panellakás
Eladó panellakás

Tiszaújváros, Szent István út

65 M Ft
4 szoba
92 m2
Eladó panellakás
Eladó panellakás

Tiszaújváros

28.99 M Ft
2 szoba
55 m2
Eladó panellakás
Eladó panellakás

Miskolc

27.49 M Ft
2 szoba
55 m2
Eladó panellakás
Eladó panellakás

Miskolc

25.99 M Ft
1 + 1 szoba
35 m2
Eladó panellakás
Eladó panellakás

Ózd

11.99 M Ft
3 szoba
64 m2
Eladó panellakás
Eladó panellakás

Tiszaújváros

37.9 M Ft
2 + 1 szoba
60 m2
Eladó panellakás
Eladó panellakás

Miskolc

38.9 M Ft
3 szoba
63 m2
Eladó panellakás
Eladó panellakás

Miskolc

28.75 M Ft
2 szoba
51 m2
Eladó panellakás
Eladó panellakás

Miskolc

24.9 M Ft
1 + 1 szoba
37 m2
Eladó panellakás
Eladó panellakás

Tiszaújváros

37.9 M Ft
2 + 1 szoba
60 m2
Eladó panellakás
Eladó panellakás

Miskolc

27.9 M Ft
2 szoba
51 m2
Eladó panellakás
Eladó panellakás

Kazincbarcika

42 M Ft
4 szoba
114 m2
Eladó családi ház
Eladó családi ház

Mezőkeresztes

14.9 M Ft
2 + 1 szoba
65 m2
Eladó családi ház
Eladó családi ház

Mezőkövesd

29.9 M Ft
2 szoba
74 m2
Eladó panellakás
Eladó panellakás

Tiszaújváros

28.99 M Ft
2 szoba
55 m2
Eladó panellakás
Eladó panellakás

Sátoraljaújhely, Dózsa György utca

26 M Ft
2 szoba
54 m2
Eladó családi ház
Eladó családi ház

Miskolc

140 M Ft
10 szoba
260 m2
Eladó panellakás
Eladó panellakás

Miskolc

26.5 M Ft
2 szoba
55 m2
Eladó panellakás
Eladó panellakás

Miskolc, Avas Dél városrész, Klapka György utca

29.8 M Ft
2 szoba
55 m2
Eladó panellakás
Eladó panellakás

Miskolc

21.99 M Ft
2 szoba
55 m2
Eladó téglalakás
Eladó téglalakás

Miskolc

33.9 M Ft
1 + 1 szoba
54 m2
Eladó panellakás
Eladó panellakás

Tiszaújváros

28.99 M Ft
2 szoba
55 m2
Eladó panellakás
Eladó panellakás

Miskolc

39.8 M Ft
2 szoba
64 m2
Eladó családi ház
Eladó családi ház

Izsófalva, Építők útja

17 M Ft
2 + 1 szoba
62 m2

Falusi CSOK ingatlanok

Eladó családi ház
Eladó családi ház

Vajszló

18 M Ft
2 szoba
91 m2
Eladó családi ház
Eladó családi ház

Devecser

42.9 M Ft
3 szoba
100 m2
Eladó családi ház
Eladó családi ház

Porva

74.6 M Ft
3 szoba
115 m2
Eladó családi ház
Eladó családi ház

Fajsz

25 M Ft
3 szoba
95 m2
Eladó családi ház
Eladó családi ház

Szabadbattyán

163.99 M Ft
5 szoba
255 m2
Eladó családi ház
Eladó családi ház

Üllés

35.5 M Ft
3 szoba
99 m2
Eladó családi ház
Eladó családi ház

Berkesd

39.5 M Ft
5 szoba
175 m2
Eladó családi ház
Eladó családi ház

Zengővárkony

30.999 M Ft
3 szoba
87 m2