Astora Art House

Eladó panellakás
Tiszaújváros

+ 9 kép 1/12
28 990 000 Ft28.99 M Ft 527 091 Ft/m2
2 szoba
55 m2
építés éve:1984

Részletes adatok

Állapot: Átlagos
Fűtés: Távfűtés
Extrák: Lift
Energetikai besorolás: Nem adta meg a hirdető
Zenga Premier

Friss hirdetések, amiket nem találsz meg más ingatlankereső portálon.

Fedezd fel elsőként a Zenga Premier címkés eladó ingatlanokat!

További részletek a zenga.hu-n

Az OTP Bank lakáshitel ajánlataFizetett hirdetés

+36 20 449
Nagy István György
referens

Érdekel az OTP Bank kedvezményes lakáshitel ajánlata? *

* A kérdésre „Igen” válasz bejelölése esetén, az „Üzenet küldése” gombra kattintva kijelentem, hogy az OTP Bank Nyrt. Adatkezelési tájékoztatójának tartalmát megismertem és tudomásul vettem.

Eladó panellakás leírása

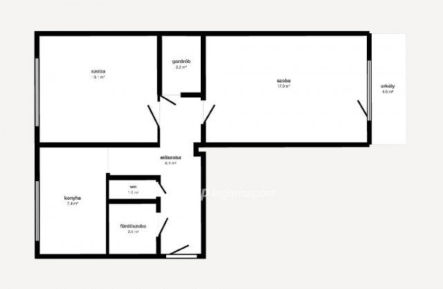
ELADÓ KÉTSZOBÁS LAKÁS TISZAÚJVÁROSBAN! Eladó Tiszaújváros egyik legkedveltebb és legjobb fekvésű helyén, a Szent István úton egy 55 nm-es, kétszobás, erkélyes, gardróbos panellakás pincerésszel! Szobái külön nyílnak, ablakai hőszigeteltek. Az erkélyről csodás kilátás nyílik a közelben lévő tóra. Lépcsőháza tiszta rendes, a szomszédok kulturáltak. Üzletek, szolgáltatások, iskola pár percre. Kiváló lehetőség mindazoknak, akik a napi fáradalmak után egy kényelmes nyugodt otthonban szeretnék kipihenni magukat.
Várom hívását hétvégén is!
OTP Banki hátterünknek köszönhetően finanszírozási igényekben (pl. Otthon Start Hitelprogram, Babaváró, Falusi CSOK, CSOK Plusz, Lakáshitel, Személyi kölcsön stb.), illetve biztosítások tekintetében is díjmentesen, soron kívüli ügyintézéssel segítem ügyfeleim!
Referenciaszám: M317960

Hirdetés feltöltve: 2025. 11. 28. Utoljára módosítva: 2025. 11. 28.

2 szobás panellakások ára Tiszaújvárosban

Ebből az összehasonlításból megtudhatod, hogyan viszonyul a lakás ára a környékbeli panellakások átlagos árához. Ez nem azt jelenti, hogy ennyivel olcsóbb vagy drágább, mint amennyit a lakás ér, hanem hogy ennyivel tér el a környékbeli átlagtól.

Ennek a m² ára
Tiszaújváros m² ár
527 e Ft
524 e Ft -1%
Ennek az ára
Tiszaújváros átlagár
28.99 M Ft m Ft
24.9 m Ft -16%

Az ingatlan elhelyezkedése

Cím: Tiszaújváros

Eladó ingatlanok a környékről

Eladó téglalakás
Eladó téglalakás

Miskolc, Belváros, Tizeshonvéd köz

27.5 M Ft
1 szoba
45 m2
Eladó panellakás
Eladó panellakás

Tiszaújváros, Barcsay tér

23 M Ft
1 + 1 szoba
35 m2
Eladó családi ház
Eladó családi ház

Szikszó

59.99 M Ft
6 szoba
200 m2
Eladó nyaraló
Eladó nyaraló

Bogács

54.9 M Ft
3 + 1 szoba
58 m2
Eladó panellakás
Eladó panellakás

Miskolc, Avas Dél városrész, Klapka György utca

29.8 M Ft
2 szoba
55 m2
Eladó téglalakás
Eladó téglalakás

Miskolc

44.79 M Ft
3 szoba
63 m2
Eladó panellakás
Eladó panellakás

Sajószentpéter

14.49 M Ft
1 + 2 szoba
59 m2
Eladó ipari ingatlan
Eladó ipari ingatlan

Miskolc

6.89 M Ft
30 m2
Eladó üzlethelyiség
Eladó üzlethelyiség

Miskolc

62.5 M Ft
882 m²
292 m2
Eladó panellakás
Eladó panellakás

Miskolc

39.8 M Ft
2 szoba
64 m2
Eladó telek
Eladó telek

Miskolc

14.9 M Ft
835 m²
Eladó panellakás
Eladó panellakás

Miskolc

24.99 M Ft
2 szoba
51 m2
Eladó téglalakás
Eladó téglalakás

Miskolc

27.9 M Ft
2 szoba
52 m2
Eladó panellakás
Eladó panellakás

Ózd

11.99 M Ft
3 szoba
64 m2
Eladó téglalakás
Eladó téglalakás

Miskolc

45 M Ft
2 + 1 szoba
54 m2
Eladó panellakás
Eladó panellakás

Ózd

11.99 M Ft
3 szoba
64 m2
Eladó panellakás
Eladó panellakás

Mezőkövesd

33 M Ft
2 + 2 szoba
73 m2
Eladó téglalakás
Eladó téglalakás

Királd

4.99 M Ft
2 szoba
53 m2
Eladó nyaraló
Eladó nyaraló

Bogács

54.9 M Ft
3 + 1 szoba
58 m2
Eladó téglalakás
Eladó téglalakás

Miskolc

64.9 M Ft
3 szoba
100 m2
Eladó panellakás
Eladó panellakás

Miskolc, Győri kapu

39.8 M Ft
2 szoba
64 m2
Eladó panellakás
Eladó panellakás

Miskolc, Avas Kelet városrész, Dankó Pista utca

31.9 M Ft
3 szoba
73 m2
Eladó nyaraló
Eladó nyaraló

Miskolc

65.34 M Ft
2 szoba
60 m2
Eladó családi ház
Eladó családi ház

Miskolc

78 M Ft
5 szoba
240 m2

Falusi CSOK ingatlanok

Eladó családi ház
Eladó családi ház

Pécsely, Szőlő Dülő

499 M Ft
4 + 2 szoba
183 m2
Eladó családi ház
Eladó családi ház

Törtel

25.9 M Ft
5 szoba
95 m2
Eladó családi ház
Eladó családi ház

Ádánd

53.5 M Ft
6 szoba
180 m2
Eladó családi ház
Eladó családi ház

Gégény, Kossuth

15 M Ft
4 szoba
135 m2
Eladó családi ház
Eladó családi ház

Badacsonytördemic

182.36 M Ft
4 szoba
160 m2
Eladó családi ház
Eladó családi ház

Olaszfa

70.38 M Ft
3 szoba
139 m2
Eladó családi ház
Eladó családi ház

Nádasd

84.9 M Ft
4 szoba
143 m2
Eladó családi ház
Eladó családi ház

Ságvár

46.9 M Ft
2 szoba
70 m2