Oasis Residence

Eladó panellakás
Szekszárd, Bakta, Dr. Hirling Ádám utca, Panellakás

+ 8 kép 1/11
37 490 000 Ft37.49 M Ft 646 379 Ft/m2
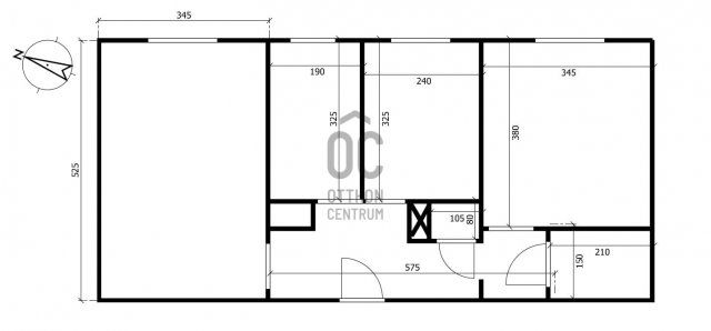
3 szoba
58 m2
Panellakás
építés éve:1986

Részletes adatok

Fűtés: Távfűtés
Emelet: 4. emelet
Közmű: Villany, Csatorna
Energetikai besorolás: E

Az OTP Bank lakáshitel ajánlataFizetett hirdetés

+36 70 465
Pintér Dániel
referens

Érdekel az OTP Bank kedvezményes lakáshitel ajánlata? *

* A kérdésre „Igen” válasz bejelölése esetén, az „Üzenet küldése” gombra kattintva kijelentem, hogy az OTP Bank Nyrt. Adatkezelési tájékoztatójának tartalmát megismertem és tudomásul vettem.

Eladó panellakás leírása

Eladó egy jó állapotú, világos és barátságos 2,5 szobás lakás Szekszárd Csatár városrészén a Dr.Hirling Ádám utcában!

Ha olyan otthont keresel, ahol nem kell felújítással bajlódni, jó a rezsi, kényelmes a tér, és egyszerűen jó érzés belépni, akkor ez a lakás neked szól. Vételárhoz tartozik a teljes bútorzat!

Amit azonnal imádni fogsz:
Modern burkolatok, szép állapotú konyha
Délkeleti tájolás — jó fényviszonyok
Panorámás kilátás
Alacsony rezsi: egyedi mérős távfűtés (nyáron 10 e, télen 20 e távhő, közös költség 10 e)
Panelprogramos, szigetelt ház, műanyag nyílászárók
Rendezett lépcsőház, kedves szomszédok
Külön WC és fürdő
Klíma a nappaliban
Jó beosztású 58 m²: tökéletes egy párnak vagy kis családnak

A lakás azonnal költözhető, tiszta, rendben tartott — pont olyan, amiért megéri gyorsan dönteni.

Ár: 38,49 M Ft

Ha szeretnél egy kényelmes, szép és kedvező költségű lakást Szekszárd egyik közkedvelt részén, hívj most, mert ez a kategória gyorsan el szokott kelni!

Hirdetés feltöltve: 2025. 10. 30. Utoljára módosítva: 2026. 01. 19.

3 szobás panellakások ára Szekszárdon

Ebből az összehasonlításból megtudhatod, hogyan viszonyul a lakás ára a környékbeli panellakások átlagos árához. Ez nem azt jelenti, hogy ennyivel olcsóbb vagy drágább, mint amennyit a lakás ér, hanem hogy ennyivel tér el a környékbeli átlagtól.

Ennek a m² ára
Szekszárd m² ár
646 e Ft
260 e Ft -148%
Ennek az ára
Szekszárd átlagár
37.49 M Ft m Ft
16.2 m Ft -132%

Az ingatlan elhelyezkedése

Cím: Szekszárd, Bakta, Dr. Hirling Ádám utca, Panellakás

Eladó panellakások a környékről

Eladó panellakás
Eladó panellakás

Szekszárd

39.5 M Ft
2 szoba
57 m2
Eladó panellakás
Eladó panellakás

Szekszárd, Belváros, Béri Balogh Ádám utca

32 M Ft
2 szoba
40 m2
Eladó panellakás
Eladó panellakás

Dombóvár

19.9 M Ft
1 szoba
28 m2
Eladó panellakás
Eladó panellakás

Szekszárd, Bakta, Béri Balogh Ádám utca 77

35 M Ft
2 + 1 szoba
50 m2
Eladó panellakás
Eladó panellakás

Dunaföldvár

24.9 M Ft
2 szoba
43 m2
Eladó panellakás
Eladó panellakás

Szekszárd

31.9 M Ft
3 szoba
59 m2
Eladó panellakás
Eladó panellakás

Szekszárd

29.9 M Ft
2 + 1 szoba
56 m2
Eladó panellakás
Eladó panellakás

Paks, Kurcsatov utca

45 M Ft
2 szoba
54 m2
Eladó panellakás
Eladó panellakás

Szekszárd, Bakta, Csatári utca

44 M Ft
3 szoba
59 m2
Eladó panellakás
Eladó panellakás

Szekszárd

25.4 M Ft
1 szoba
37 m2
Eladó panellakás
Eladó panellakás

Dombóvár

31 M Ft
2 + 1 szoba
70 m2
Eladó panellakás
Eladó panellakás

Szekszárd

29.9 M Ft
2 + 1 szoba
56 m2
Eladó panellakás
Eladó panellakás

Szekszárd

39.5 M Ft
2 szoba
57 m2
Eladó panellakás
Eladó panellakás

Szekszárd, Bakta, Alisca utca

31.9 M Ft
2 szoba
52 m2
Eladó panellakás
Eladó panellakás

Szekszárd

29.9 M Ft
2 + 1 szoba
56 m2
Eladó panellakás
Eladó panellakás

Dombóvár

31.5 M Ft
2 + 1 szoba
69 m2
Eladó panellakás
Eladó panellakás

Dombóvár

19.9 M Ft
1 szoba
28 m2
Eladó panellakás
Eladó panellakás

Paks

54.9 M Ft
2 szoba
52 m2
Eladó panellakás
Eladó panellakás

Szekszárd, Bakta, Csatári utca

44 M Ft
3 szoba
59 m2
Eladó panellakás
Eladó panellakás

Szekszárd

32.65 M Ft
2 szoba
40 m2
Eladó panellakás
Eladó panellakás

Szekszárd, Belváros, Béri Balogh Ádám utca

32.5 M Ft
1 + 1 szoba
40 m2
Eladó panellakás
Eladó panellakás

Szekszárd

39.5 M Ft
2 szoba
57 m2
Eladó panellakás
Eladó panellakás

Szekszárd

29.9 M Ft
2 + 1 szoba
56 m2
Eladó panellakás
Eladó panellakás

Szekszárd

29.9 M Ft
2 + 1 szoba
56 m2

Falusi CSOK ingatlanok

Eladó családi ház
Eladó családi ház

Balatonfenyves

430 M Ft
4 szoba
274 m2
Eladó családi ház
Eladó családi ház

Berkesd

48.9 M Ft
8 szoba
180 m2
Eladó családi ház
Eladó családi ház

Szászvár, Zártkert

3.4 M Ft
1 szoba
58 m2
Eladó családi ház
Eladó családi ház

Dág

26.9 M Ft
3 szoba
68 m2
Eladó ikerház
Eladó ikerház

Balatonakali

129 M Ft
4 szoba
145 m2
Eladó családi ház
Eladó családi ház

Ádánd

69.9 M Ft
6 szoba
251 m2
Eladó családi ház
Eladó családi ház

Törtel

59.9 M Ft
3 szoba
66 m2
Eladó családi ház
Eladó családi ház

Háromfa, Kossuth

22.4 M Ft
139 m2