BAM Living

Eladó panellakás
Pécs, 10. emelet

+ 7 kép 1/10
54 900 000 Ft54.9 M Ft 871 429 Ft/m2
3 szoba
63 m2
10. emelet
építés éve:1977

Részletes adatok

Fűtés: Távfűtés
Extrák: Lift
Energetikai besorolás: Nem adta meg a hirdető

Az OTP Bank lakáshitel ajánlataFizetett hirdetés

+36 20 502
Szenk László
referens

Érdekel az OTP Bank kedvezményes lakáshitel ajánlata? *

* A kérdésre „Igen” válasz bejelölése esetén, az „Üzenet küldése” gombra kattintva kijelentem, hogy az OTP Bank Nyrt. Adatkezelési tájékoztatójának tartalmát megismertem és tudomásul vettem.

Eladó panellakás leírása

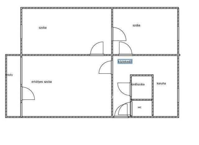
Eladó Pécs-EGYETEMVÁROS egyik legkedveltebb részén, Zója utcában egy 10 emeletes szigetelt panelépület, 10. emeletén, 63nm-es, 3 szobás erkélyes panellakás!

A lakás, korábban felújították, jelenleg is jó állapotban van. A kellemes hőérzetet az egyedi mérős távfűtés és klima berendezés biztosítja. Nyílászárók hőszigetelt műanyagra cseréltek melyek redőnnyel szereltek.
Fürdőszoba átépítve modern tusolósra. Kilátás a lakásból lenyűgöző a városra és a tévétoronyra. Társasház liftes, kívül-belül karbantartott, a tető korszerű hő- és csapadék elleni szigetelést kapott. Tökéletes választás befektetőknek, egyetemistáknak, és családoknak!

A LAKÁS KÖZEL VAN A PÉCSI TUDOMÁNYEGYETEM KARAIHOZ! Közelben buszmegálló, élelmiszer üzletek, gyógyszertár, étterem.. Gyalogosan kényelmes sétával könnyen elérhető a belváros.
Jelenleg megbízható bérlők laknak benne, szívesen maradnak, ha albérlet kiadására vásárólja meg az ingatlant! Befektetésnek egy remek lehetőség, nem kell bajlódnia a megbízható bérlő keresésével sem!
Otthon Start fix 3 %. hitel! OTP Bankhitelhez kapcsolódóan az OTP Ingatlanpont irodánk teljes körű tájékoztatást és ügyintézést vállal.

Hirdetés feltöltve: 2025. 11. 25.

3 szobás panellakások ára Pécsett

Ebből az összehasonlításból megtudhatod, hogyan viszonyul a lakás ára a környékbeli panellakások átlagos árához. Ez nem azt jelenti, hogy ennyivel olcsóbb vagy drágább, mint amennyit a lakás ér, hanem hogy ennyivel tér el a környékbeli átlagtól.

Ennek a m² ára
Pécs m² ár
871 e Ft
832 e Ft -5%
Ennek az ára
Pécs átlagár
54.9 M Ft m Ft
50.2 m Ft -9%

Az ingatlan elhelyezkedése

Cím: Pécs, 10. emelet

Eladó panellakások a környékről

Eladó panellakás
Eladó panellakás

Pécs

55.9 M Ft
2 szoba
52 m2
Eladó panellakás
Eladó panellakás

Pécs

55.9 M Ft
2 szoba
52 m2
Eladó panellakás
Eladó panellakás

Pécs

44.9 M Ft
2 szoba
50 m2
Eladó panellakás
Eladó panellakás

Pécs

41.9 M Ft
2 szoba
40 m2
Eladó panellakás
Eladó panellakás

Pécs, Megyer, Kodolányi János utca

41.9 M Ft
3 szoba
64 m2
Eladó panellakás
Eladó panellakás

Pécs, Siklósi út

39.9 M Ft
3 szoba
54 m2
Eladó panellakás
Eladó panellakás

Pécs

44.9 M Ft
2 szoba
50 m2
Eladó panellakás
Eladó panellakás

Pécs

57.9 M Ft
4 szoba
68 m2
Eladó panellakás
Eladó panellakás

Pécs

41.9 M Ft
2 szoba
40 m2
Eladó panellakás
Eladó panellakás

Komló, Vértanúk utca

18.8 M Ft
3 szoba
63 m2
Eladó panellakás
Eladó panellakás

Pécs, Megyer, Maléter Pál

47.9 M Ft
2 + 2 szoba
59 m2
Eladó panellakás
Eladó panellakás

Pécs, Megyer, Fülep Lajos utca

57.9 M Ft
4 szoba
68 m2
Eladó panellakás
Eladó panellakás

Pécs, Megyer, Éva utca 3

44.9 M Ft
3 szoba
63 m2
Eladó panellakás
Eladó panellakás

Pécs, Uránváros, Építők útja

55.9 M Ft
2 szoba
52 m2
Eladó panellakás
Eladó panellakás

Pécs

44.9 M Ft
2 szoba
50 m2
Eladó panellakás
Eladó panellakás

Pécs

39.9 M Ft
3 szoba
54 m2
Eladó panellakás
Eladó panellakás

Pécs

44.9 M Ft
2 szoba
50 m2
Eladó panellakás
Eladó panellakás

Pécs

41.9 M Ft
2 szoba
40 m2
Eladó panellakás
Eladó panellakás

Pécs, Megyer, Nagy Imre út

41.9 M Ft
2 szoba
40 m2
Eladó panellakás
Eladó panellakás

Pécs

44.9 M Ft
3 szoba
63 m2
Eladó panellakás
Eladó panellakás

Pécs, Megyer, Fülep Lajos utca

57.9 M Ft
4 szoba
68 m2
Eladó panellakás
Eladó panellakás

Pécs

41.9 M Ft
2 szoba
40 m2
Eladó panellakás
Eladó panellakás

Pécs

41.9 M Ft
2 szoba
40 m2
Eladó panellakás
Eladó panellakás

Komló, Hegyhát utca

14.2 M Ft
2 szoba
40 m2

Falusi CSOK ingatlanok

Eladó családi ház
Eladó családi ház

Miháld

18 M Ft
3 szoba
102 m2
Eladó családi ház
Eladó családi ház

Ceglédbercel, Iskola utca

109 M Ft
5 szoba
133 m2
Eladó családi ház
Eladó családi ház

Kocsér

19.9 M Ft
1 + 2 szoba
73 m2
Eladó családi ház
Eladó családi ház

Döröske

104.721 M Ft
3 szoba
114 m2
Eladó ikerház
Eladó ikerház

Balatonakali

129 M Ft
4 szoba
145 m2
Eladó ikerház
Eladó ikerház

Balatonkenese

84.99 M Ft
3 szoba
76 m2
Eladó családi ház
Eladó családi ház

Kuncsorba, Kölcsey

14.5 M Ft
3 + 1 szoba
108 m2
Eladó családi ház
Eladó családi ház

Bükkzsérc

42.5 M Ft
4 szoba
240 m2