Astora Olive Club House

Eladó panellakás
Pécs, 10. emelet

+ 17 kép 1/20
54 900 000 Ft54.9 M Ft 871 429 Ft/m2
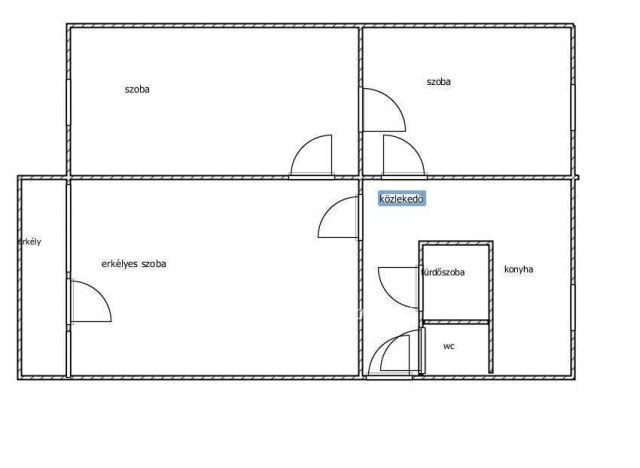
3 szoba
63 m2
10. emelet
építés éve:1977

Részletes adatok

Fűtés: Távfűtés
Extrák: Lift
Energetikai besorolás: Nem adta meg a hirdető

Az OTP Bank lakáshitel ajánlataFizetett hirdetés

+36 30 276
Maratné Mészáros Edit
OTPIP - Pécs, Rákóczi út 19.

Érdekel az OTP Bank kedvezményes lakáshitel ajánlata? *

* A kérdésre „Igen” válasz bejelölése esetén, az „Üzenet küldése” gombra kattintva kijelentem, hogy az OTP Bank Nyrt. Adatkezelési tájékoztatójának tartalmát megismertem és tudomásul vettem.

Eladó panellakás leírása

Eladó Pécs-EGYETEMVÁROS egyik legkedveltebb részén, Zója utcában egy 10 emeletes szigetelt panelépület, 10. emeletén, 63nm-es, 3 szobás erkélyes panellakás!

A lakás, korábban felújították, jelenleg is jó állapotban van. A kellemes hőérzetet az egyedi mérős távfűtés és klima berendezés biztosítja. Nyílászárók hőszigetelt műanyagra cseréltek melyek redőnnyel szereltek.
Fürdőszoba átépítve modern tusolósra. Kilátás a lakásból lenyűgöző a városra és a tévétoronyra. Társasház liftes, kívül-belül karbantartott, a tető korszerű hő- és csapadék elleni szigetelést kapott. Tökéletes választás befektetőknek, egyetemistáknak, és családoknak!

A LAKÁS KÖZEL VAN A PÉCSI TUDOMÁNYEGYETEM KARAIHOZ! Közelben buszmegálló, élelmiszer üzletek, gyógyszertár, étterem.. Gyalogosan kényelmes sétával könnyen elérhető a belváros.
Jelenleg megbízható bérlők laknak benne, szívesen maradnak, ha albérlet kiadására vásárólja meg az ingatlant! Befektetésnek egy remek lehetőség, nem kell bajlódnia a megbízható bérlő keresésével sem!
Otthon Start fix 3 %. hitel! OTP Bankhitelhez kapcsolódóan az OTP Ingatlanpont irodánk teljes körű tájékoztatást és ügyintézést vállal.

Referencia szám: M312509-ZE

Hirdetés feltöltve: 2025. 10. 10. Utoljára módosítva: 2025. 11. 09.

3 szobás panellakások ára Pécsett

Ebből az összehasonlításból megtudhatod, hogyan viszonyul a lakás ára a környékbeli panellakások átlagos árához. Ez nem azt jelenti, hogy ennyivel olcsóbb vagy drágább, mint amennyit a lakás ér, hanem hogy ennyivel tér el a környékbeli átlagtól.

Ennek a m² ára
Pécs m² ár
871 e Ft
832 e Ft -5%
Ennek az ára
Pécs átlagár
54.9 M Ft m Ft
50.2 m Ft -9%

Az ingatlan elhelyezkedése

Cím: Pécs, 10. emelet

Eladó panellakások a környékről

Eladó panellakás
Eladó panellakás

Pécs

55.9 M Ft
2 szoba
52 m2
Eladó panellakás
Eladó panellakás

Pécs

39.7 M Ft
2 szoba
52 m2
Eladó panellakás
Eladó panellakás

Pécs

41.9 M Ft
2 szoba
40 m2
Eladó panellakás
Eladó panellakás

Pécs, Megyer, Éva utca 3

44.9 M Ft
3 szoba
63 m2
Eladó panellakás
Eladó panellakás

Pécs, Megyer, Nagy Imre út

41.9 M Ft
2 szoba
40 m2
Eladó panellakás
Eladó panellakás

Pécs

39.7 M Ft
2 szoba
52 m2
Eladó panellakás
Eladó panellakás

Pécs

44.9 M Ft
2 szoba
50 m2
Eladó panellakás
Eladó panellakás

Pécs

44.9 M Ft
2 szoba
50 m2
Eladó panellakás
Eladó panellakás

Pécs

55.9 M Ft
2 szoba
52 m2
Eladó panellakás
Eladó panellakás

Pécs

41.9 M Ft
2 szoba
40 m2
Eladó panellakás
Eladó panellakás

Pécs, Megyer, Éva utca 3

44.9 M Ft
3 szoba
63 m2
Eladó panellakás
Eladó panellakás

Pécs

44.9 M Ft
2 szoba
50 m2
Eladó panellakás
Eladó panellakás

Pécs, Uránváros, Építők útja

55.9 M Ft
2 szoba
52 m2
Eladó panellakás
Eladó panellakás

Pécs, Megyer, Kodolányi János utca

41.9 M Ft
3 szoba
64 m2
Eladó panellakás
Eladó panellakás

Pécs, Megyer, Kodolányi János utca

41.9 M Ft
3 szoba
64 m2
Eladó panellakás
Eladó panellakás

Pécs

41.9 M Ft
2 szoba
40 m2
Eladó panellakás
Eladó panellakás

Pécs

57.9 M Ft
4 szoba
71 m2
Eladó panellakás
Eladó panellakás

Pécs

39.9 M Ft
3 szoba
54 m2
Eladó panellakás
Eladó panellakás

Pécs

39.9 M Ft
2 + 1 szoba
54 m2
Eladó panellakás
Eladó panellakás

Pécs

57.9 M Ft
4 szoba
68 m2
Eladó panellakás
Eladó panellakás

Pécs, Megyer, Nagy Imre út

41.9 M Ft
2 szoba
40 m2
Eladó panellakás
Eladó panellakás

Pécs

57.9 M Ft
4 szoba
68 m2
Eladó panellakás
Eladó panellakás

Pécs, Megyer, Maléter Pál

47.9 M Ft
2 + 2 szoba
59 m2
Eladó panellakás
Eladó panellakás

Pécs

41.9 M Ft
2 szoba
40 m2

Falusi CSOK ingatlanok

Eladó családi ház
Eladó családi ház

Nyírtura

74.9 M Ft
3 szoba
120 m2
Eladó családi ház
Eladó családi ház

Besnyő

105.999 M Ft
6 szoba
189 m2
Eladó családi ház
Eladó családi ház

Ságvár

64.9 M Ft
3 szoba
70 m2
Eladó családi ház
Eladó családi ház

Iváncsa

73.9 M Ft
1 + 3 szoba
97 m2
Eladó családi ház
Eladó családi ház

Tápiógyörgye

44.9 M Ft
3 szoba
105 m2
Eladó családi ház
Eladó családi ház

Ádánd

57.9 M Ft
5 szoba
190 m2
Eladó családi ház
Eladó családi ház

Ceglédbercel

49.9 M Ft
4 szoba
120 m2
Eladó családi ház
Eladó családi ház

Jászkarajenő

19.9 M Ft
3 szoba
81 m2