Eladó panellakás
Nyíregyháza

+ 10 kép 1/13
38 000 000 Ft38 M Ft 745 098 Ft/m2
2 szoba
51 m2
építés éve:1980

Részletes adatok

Állapot: Átlagos
Fűtés: Távfűtés
Extrák: Lift
Energetikai besorolás: Nem adta meg a hirdető
Zenga Premier

Friss hirdetések, amiket nem találsz meg más ingatlankereső portálon.

Fedezd fel elsőként a Zenga Premier címkés eladó ingatlanokat!

További részletek a zenga.hu-n

Az OTP Bank lakáshitel ajánlataFizetett hirdetés

+36 70 403
Somogyi Brendon
OTP Ingatlanpont Kft.

Érdekel az OTP Bank kedvezményes lakáshitel ajánlata? *

* A kérdésre „Igen” válasz bejelölése esetén, az „Üzenet küldése” gombra kattintva kijelentem, hogy az OTP Bank Nyrt. Adatkezelési tájékoztatójának tartalmát megismertem és tudomásul vettem.

Eladó panellakás leírása

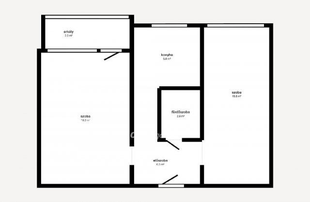
Eladásra kínálok egy 51 nm-es, 9. emeleti panel lakást Nyíregyháza csendes környékén.
A lakás két szobával, konyhával, fürdőszobával, előszobával és erkéllyel rendelkezik. A rezsi alacsony, így kiváló választás lehet fiatal pároknak, egyedülállóknak vagy befektetőknek.
A lakás jó állapotú, mindössze egy tisztasági festést igényel.
A ház zárt lépcsőházas, teher- és személylifttel is felszerelt, rendezett, biztonságos lakóközösséggel és barátságos szomszédokkal.
A környék csendes és nyugodt, kiváló infrastruktúrával: bolt, óvoda, játszótér és focipálya is található a közelben, minden elérhető távolságban.
OTP Banki hátterünknek köszönhetően finanszírozási igényekben (pl. Otthon Start Hitelprogram, Babaváró, Falusi CSOK, CSOK Plusz, Lakáshitel, Személyi kölcsön stb.), illetve biztosítások tekintetében is díjmentesen, soron kívüli ügyintézéssel segítem ügyfeleim! Referenciaszám: M313598

Hirdetés feltöltve: 2025. 10. 17. Utoljára módosítva: 2025. 10. 17.

2 szobás panellakások ára Nyíregyházán

Ebből az összehasonlításból megtudhatod, hogyan viszonyul a lakás ára a környékbeli panellakások átlagos árához. Ez nem azt jelenti, hogy ennyivel olcsóbb vagy drágább, mint amennyit a lakás ér, hanem hogy ennyivel tér el a környékbeli átlagtól.

Ennek a m² ára
Nyíregyháza m² ár
745 e Ft
756 e Ft 1%
Ennek az ára
Nyíregyháza átlagár
38 M Ft m Ft
43.5 m Ft 13%

Az ingatlan elhelyezkedése

Cím: Nyíregyháza

Eladó panellakások a környékről

Eladó panellakás
Eladó panellakás

Nyíregyháza

42 M Ft
2 szoba
51 m2
Eladó panellakás
Eladó panellakás

Nyíregyháza

46 M Ft
2 + 1 szoba
62 m2
Eladó panellakás
Eladó panellakás

Nyíregyháza

49 M Ft
2 + 1 szoba
63 m2
Eladó panellakás
Eladó panellakás

Nyíregyháza

46 M Ft
2 szoba
62 m2
Eladó panellakás
Eladó panellakás

Nyíregyháza

49 M Ft
2 + 1 szoba
63 m2
Eladó panellakás
Eladó panellakás

Nyíregyháza

34.5 M Ft
2 szoba
54 m2
Eladó panellakás
Eladó panellakás

Nyíregyháza

49 M Ft
2 + 1 szoba
63 m2
Eladó panellakás
Eladó panellakás

Nyíregyháza

44.9 M Ft
2 + 1 szoba
61 m2
Eladó panellakás
Eladó panellakás

Nyíregyháza

38.9 M Ft
2 szoba
51 m2
Eladó panellakás
Eladó panellakás

Nyíregyháza

33.5 M Ft
1 + 1 szoba
36 m2
Eladó panellakás
Eladó panellakás

Nyíregyháza

49 M Ft
2 + 1 szoba
63 m2
Eladó panellakás
Eladó panellakás

Nyíregyháza

46 M Ft
2 + 1 szoba
62 m2
Eladó panellakás
Eladó panellakás

Nyíregyháza

34.5 M Ft
2 szoba
54 m2
Eladó panellakás
Eladó panellakás

Nyíregyháza

49 M Ft
2 + 1 szoba
63 m2
Eladó panellakás
Eladó panellakás

Nyíregyháza

49 M Ft
2 + 1 szoba
63 m2
Eladó panellakás
Eladó panellakás

Nyíregyháza

49.99 M Ft
4 szoba
78 m2
Eladó panellakás
Eladó panellakás

Nyíregyháza

46 M Ft
2 + 1 szoba
62 m2
Eladó panellakás
Eladó panellakás

Nyíregyháza

46 M Ft
2 + 1 szoba
62 m2
Eladó panellakás
Eladó panellakás

Nyíregyháza

49 M Ft
2 + 1 szoba
63 m2
Eladó panellakás
Eladó panellakás

Nyírbátor

33 M Ft
3 szoba
70 m2
Eladó panellakás
Eladó panellakás

Nyíregyháza

38.7 M Ft
3 szoba
66 m2
Eladó panellakás
Eladó panellakás

Nyíregyháza

49 M Ft
2 + 1 szoba
63 m2
Eladó panellakás
Eladó panellakás

Nyíregyháza

49 M Ft
2 + 1 szoba
63 m2
Eladó panellakás
Eladó panellakás

Nyíregyháza

38.9 M Ft
2 szoba
51 m2

Falusi CSOK ingatlanok

Eladó családi ház
Eladó családi ház

Csót

12.9 M Ft
3 szoba
104 m2
Eladó családi ház
Eladó családi ház

Bag

39.5 M Ft
3 szoba
80 m2
Eladó családi ház
Eladó családi ház

Bakonycsernye

39 M Ft
3 szoba
350 m2
Eladó családi ház
Eladó családi ház

Szerecseny, Petőfi Sándor

25.9 M Ft
3 szoba
92 m2
Eladó családi ház
Eladó családi ház

Badacsonytomaj

194 M Ft
8 szoba
210 m2
Eladó ikerház
Eladó ikerház

Besnyő

79.6 M Ft
5 szoba
117 m2
Eladó családi ház
Eladó családi ház

Zsámbok

45 M Ft
2 szoba
60 m2
Eladó családi ház
Eladó családi ház

Szil

25 M Ft
2 szoba
90 m2