NapForrás 20 - Buda

Eladó panellakás
Nyírbátor, 3. emelet

+ 11 kép 1/14
37 800 000 Ft37.8 M Ft 675 000 Ft/m2
2 szoba
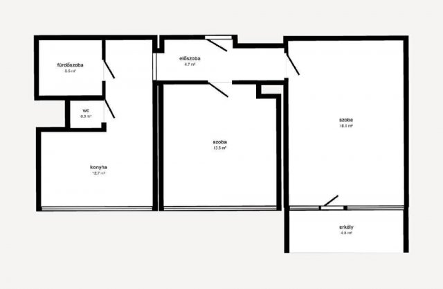
56 m²
3. emelet
építés éve:1982

Részletes adatok

Állapot: Felújított
Fűtés: Gázkonvektor
Emelet: 3. emelet
Energetikai besorolás: D

Az OTP Bank lakáshitel ajánlataFizetett hirdetés

+36 30 864
Pristyákné Petneházi Éva Zsuzsanna
referens

Érdekel az OTP Bank kedvezményes lakáshitel ajánlata? *

* A kérdésre „Igen” válasz bejelölése esetén, az „Üzenet küldése” gombra kattintva kijelentem, hogy az OTP Bank Nyrt. Adatkezelési tájékoztatójának tartalmát megismertem és tudomásul vettem.

Eladó panellakás leírása

Eladásra kínálunk egy 56 m2 alapterületű, 3. emeleti, teljes körűen felújított lakást.
Amely kiváló választás lehet akár saját otthonnak, akár befektetésnek!
Az ingatlan 2 tágas, világos szobával rendelkezik, amelyek közül az egyik igény szerint nappalivá alakítható, így a lakás elrendezése rugalmasan igazítható az új tulajdonos igényeihez.

A lakás teljes felújításon esett át, melynek során modern, időtálló anyagok kerültek beépítésre. A helyiségekben stílusos színek, valamint strapabíró, minőségi burkolatok kaptak helyet. A szobák 10 mm vastag, kopásálló laminált padlóval burkoltak, míg a többi helyiségben tartós, esztétikus csempe található.

A konyha újonnan készített, modern konyhabútorral felszerelt, valamint gázcsatlakozással rendelkezik, amely praktikus és gazdaságos megoldást biztosít a mindennapi használathoz.

A lakás konvektoros fűtéssel működik, továbbá saját mérőórával rendelkezik, így a rezsiköltségek könnyen kontrollálhatók.

A komfortérzetet tovább növeli, hogy:

Minden nyílászáró új, hőszigetelt fa nyílászáró.
A fürdőszoba teljes körűen felújított és modernizált, a WC külön helyiségben található, ami praktikus a mindennapok során.
Az ingatlanhoz tartozik egy 4,8m2-es saját erkély, amely utcai kilátást biztosít, és kellemes helyszínt nyújt egy reggeli kávé vagy esti pihenés számára.
Igényesen felújított, azonnal költözhető lakás !

Az ingatlan városközponti elhelyezkedésének köszönhetően kiváló infrastruktúrával rendelkezik, így a mindennapi ügyintézés és bevásárlás rendkívül kényelmesen megoldható.
A lakás közelében 500 méteren belül megtalálható több élelmiszerüzlet, gyógyszertár és orvosi rendelő, ami nagyban megkönnyíti a mindennapi életet.

A városban elérhető egy nagyobb bevásárlóközpont is, a Tesco, Spár, Penny amely széles választékot kínál mindennapi bevásárláshoz.

A környék családbarát, hiszen az iskola mindössze körülbelül 200 méterre található, így gyalogosan is gyorsan és biztonságosan megközelíthető. Emellett benzinkút is elérhető 500 méteren belül.

A városközpontnak köszönhetően ruházati üzletek, különböző szolgáltatások és vásárlási lehetőségek szintén könnyen elérhetők, így szinte minden szükséges szolgáltatás helyben rendelkezésre áll.

Ennek az elhelyezkedésnek köszönhetően az ingatlan praktikus választás családok, párok vagy akár befektetők számára is, akik fontosnak tartják a kényelmes, jól megközelíthető városi életet.
Keress bizalommal ,akár megtekintés, akár kérdés esetén!
OTP Banki hátterünknek köszönhetően finanszírozási igényekben (pl. Otthon Start Hitelprogram, Babaváró, Falusi CSOK, CSOK Plusz, Lakáshitel, Személyi kölcsön stb.), illetve biztosítások tekintetében is díjmentesen, soron kívüli ügyintézéssel segítem ügyfeleim! Referenciaszám: M324807
Virtuális séta:

Hirdetés feltöltve: 2026. 04. 25.

Az ingatlan elhelyezkedése

Cím: Nyírbátor, 3. emelet

Eladó ingatlanok a környékről

Nyírbátor
Eladó panellakás

Nyírbátor

37.8 M Ft
2 szoba
56 m²
Tiszavasvári
Eladó családi ház

Tiszavasvári

39 M Ft
3 + 1 szoba
130 m²
Nyírbátor
Eladó panellakás

Nyírbátor

37.8 M Ft
2 szoba
56 m²
Nyíregyháza
Eladó panellakás

Nyíregyháza

43.5 M Ft
1 + 2 szoba
54 m²
Nyíregyháza
Eladó téglalakás

Nyíregyháza

55 M Ft
3 szoba
70 m²
Baktalórántháza
Eladó családi ház

Baktalórántháza

14.99 M Ft
4 szoba
116 m²
Nyíregyháza
Eladó panellakás

Nyíregyháza

49 M Ft
2 + 1 szoba
63 m²
Nyíregyháza
Eladó ikerház

Nyíregyháza

79.9 M Ft
4 szoba
123 m²
Záhony
Eladó panellakás

Záhony

27.5 M Ft
2 szoba
71 m²
Nyíregyháza
Eladó panellakás

Nyíregyháza

49 M Ft
2 + 1 szoba
63 m²
Nyíregyháza
Eladó panellakás

Nyíregyháza

49 M Ft
2 + 1 szoba
63 m²
Kisvárda
Eladó téglalakás

Kisvárda

33.5 M Ft
2 + 1 szoba
62 m²
Nyírtelek
Eladó családi ház

Nyírtelek

80 M Ft
5 + 1 szoba
135 m²
Újfehértó
Eladó családi ház

Újfehértó

42.9 M Ft
6 szoba
190 m²
Nyíregyháza
Eladó panellakás

Nyíregyháza

34.8 M Ft
1 + 1 szoba
42 m²
Tiszavasvári
Eladó családi ház

Tiszavasvári

13 M Ft
2 szoba
56 m²
Levelek
Eladó családi ház

Levelek

39 M Ft
4 szoba
92 m²
Kisvárda
Eladó téglalakás

Kisvárda

33.5 M Ft
2 + 1 szoba
62 m²
Nyíregyháza
Eladó panellakás

Nyíregyháza

37.9 M Ft
3 szoba
66 m²
Mátészalka
Eladó panellakás

Mátészalka

31 M Ft
1 + 1 szoba
52 m²
Nyíregyháza, Belváros, Toldi utca
Eladó panellakás

Nyíregyháza

35.9 M Ft
2 szoba
51 m²
Nyíregyháza
Eladó panellakás

Nyíregyháza

39.9 M Ft
2 szoba
53 m²
Nyíregyháza
Eladó panellakás

Nyíregyháza

49 M Ft
2 + 1 szoba
63 m²
Nyíregyháza, Korányi kertváros, Kalevala sétány
Eladó panellakás

Nyíregyháza

42.9 M Ft
2 + 1 szoba
58 m²

Falusi CSOK ingatlanok

Kenyeri
Eladó családi ház

Kenyeri

39.9 M Ft
3 szoba
94 m²
Sárosd
Eladó családi ház

Sárosd

21.9 M Ft
3 szoba
86 m²
Marcalgergelyi
Eladó családi ház

Marcalgergelyi

31 M Ft
2 + 1 szoba
120 m²
Szigetcsép
Eladó családi ház

Szigetcsép

158.9 M Ft
5 szoba
176 m²
Dombrád, Rákóczi út 22
Eladó családi ház

Dombrád

12.74 M Ft
1 + 1 szoba
125 m²
Bag
Eladó ikerház

Bag

93 M Ft
3 szoba
68 m²
Kaposgyarmat
Eladó családi ház

Kaposgyarmat

695 M Ft
6 szoba
610 m²
Bükkszék
Eladó családi ház

Bükkszék

78.9 M Ft
2 + 1 szoba
160 m²