Oasis Residence

Eladó panellakás
Miskolc, 10. emelet

+ 9 kép 1/12
29 990 000 Ft29.99 M Ft 555 370 Ft/m2
1 + 2 szoba
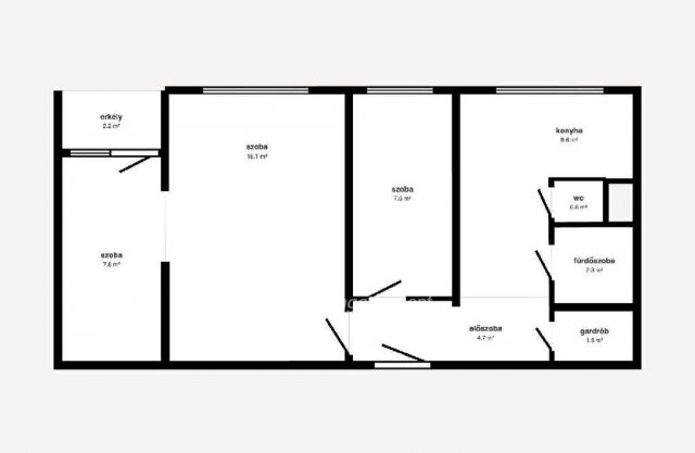
54 m²
10. emelet
építés éve:1980

Részletes adatok

Állapot: Átlagos
Fűtés: Távfűtés
Emelet: 10. emelet
Extrák: Lift
Energetikai besorolás: Nem adta meg a hirdető

Az OTP Bank lakáshitel ajánlataFizetett hirdetés

+36 70 267
Kovács Attila
OTP IP Miskolc Corvin 1-3

Érdekel az OTP Bank kedvezményes lakáshitel ajánlata? *

* A kérdésre „Igen” válasz bejelölése esetén, az „Üzenet küldése” gombra kattintva kijelentem, hogy az OTP Bank Nyrt. Adatkezelési tájékoztatójának tartalmát megismertem és tudomásul vettem.

Eladó panellakás leírása

Miskolc Diósgyőr városrészében kínálok megvételre egy 54 nm alapterületű, 1+2 félszobás erkélyes lakást, panelprogramos épület tizedik emeletén. Az ingatlan praktikus elrendezésű, amely ideális lehet családok, párok vagy akár befektetők számára is. A lakás átlagos állapotú, tehermentes, azonnal költözhető. A lakás fenntartási költsége kedvező, a panelprogramnak és az egyedi mérésű távfűtésnek köszönhetően jól tervezhető rezsivel. Kiváló infrastruktúra jellemzi a környéket: a közelben megtalálhatóak élelmiszerboltok, bevásárlási lehetőségek, gyógyszertár, iskola, óvoda, valamint busz- és villamosmegállók is. A környéken parkok, zöldterületek és sportolási lehetőségek is rendelkezésre állnak, így a mindennapi élet minden szükséges szolgáltatása könnyen elérhető. Amennyiben az ingatlan felkeltette az érdeklődését, hívjon bizalommal és tekintsük meg együtt akár hétvégén is! OTP Banki hátterünknek köszönhetően finanszírozási igényekben (pl. Otthon Start Hitel Program, Babaváró, CSOK, Felújítási hitel, stb.) is állunk ügyfeleink rendelkezésére. Az ingatlan előre egyeztetett időpontban megtekinthető, megbízható ügyvédi közreműködést, szerződéskötéshez irodai hátteret biztosítunk. Referenciaszám: M324473

Hirdetés feltöltve: 2026. 04. 02. Utoljára módosítva: 2026. 04. 03.

3 szobás panellakások ára Miskolcon

Ebből az összehasonlításból megtudhatod, hogyan viszonyul a lakás ára a környékbeli panellakások átlagos árához. Ez nem azt jelenti, hogy ennyivel olcsóbb vagy drágább, mint amennyit a lakás ér, hanem hogy ennyivel tér el a környékbeli átlagtól.

Ennek a m² ára
Miskolc m² ár
555 e Ft
664 e Ft 16%
Ennek az ára
Miskolc átlagár
29.99 M Ft m Ft
42.5 m Ft 29%

Az ingatlan elhelyezkedése

Cím: Miskolc, 10. emelet

Eladó panellakások a környékről

Miskolc
Eladó panellakás

Miskolc

44.9 M Ft
3 szoba
55 m²
Miskolc, Soltész Nagy Kálmán
Eladó panellakás

Miskolc

68.49 M Ft
4 + 1 szoba
119 m²
Miskolc, Soltész Nagy Kálmán
Eladó panellakás

Miskolc

68.49 M Ft
4 + 1 szoba
119 m²
Miskolc
Eladó panellakás

Miskolc

79.9 M Ft
3 szoba
77 m²
Miskolc, Vologda, Jókai Mór utca
Eladó panellakás

Miskolc

44.9 M Ft
3 szoba
55 m²
Miskolc
Eladó panellakás

Miskolc

28.75 M Ft
2 szoba
51 m²
Miskolc
Eladó panellakás

Miskolc

33.5 M Ft
1 + 2 szoba
54 m²
Miskolc
Eladó panellakás

Miskolc

55.49 M Ft
2 + 1 szoba
63 m²
Miskolc
Eladó panellakás

Miskolc

28.75 M Ft
2 szoba
51 m²
Miskolc
Eladó panellakás

Miskolc

44.9 M Ft
3 szoba
55 m²
Sátoraljaújhely
Eladó panellakás

Sátoraljaújhely

26 M Ft
2 szoba
54 m²
Miskolc
Eladó panellakás

Miskolc

29.8 M Ft
2 szoba
55 m²
Miskolc
Eladó panellakás

Miskolc

44.9 M Ft
3 szoba
55 m²
Miskolc, Vologda, Jókai Mór utca
Eladó panellakás

Miskolc

44.9 M Ft
3 szoba
55 m²
Miskolc
Eladó panellakás

Miskolc

79.9 M Ft
3 szoba
77 m²
Kazincbarcika
Eladó panellakás

Kazincbarcika

46.8 M Ft
4 szoba
114 m²
Miskolc
Eladó panellakás

Miskolc

55.49 M Ft
2 + 1 szoba
63 m²
Miskolc
Eladó panellakás

Miskolc

36 M Ft
3 szoba
73 m²
Miskolc
Eladó panellakás

Miskolc

28.5 M Ft
3 szoba
61 m²
Sárospatak, Katona József utca
Eladó panellakás

Sárospatak

19.8 M Ft
2 szoba
54 m²
Miskolc
Eladó panellakás

Miskolc

33.5 M Ft
1 + 2 szoba
54 m²
Miskolc, Szentpéteri kapu Nyugat, Szentpéteri kapu
Eladó panellakás

Miskolc

36 M Ft
3 szoba
73 m²
Miskolc, Szentpéteri kapu Nyugat, Szentpéteri kapu
Eladó panellakás

Miskolc

36 M Ft
3 szoba
73 m²
Kazincbarcika
Eladó panellakás

Kazincbarcika

46.8 M Ft
4 szoba
114 m²

Falusi CSOK ingatlanok

Kéthely
Eladó családi ház

Kéthely

97 M Ft
3 szoba
109 m²
Bükkszék
Eladó családi ház

Bükkszék

78.9 M Ft
2 + 1 szoba
160 m²
Törtel
Eladó családi ház

Törtel

32.5 M Ft
3 szoba
66 m²
Mád
Eladó családi ház

Mád

48 M Ft
3 szoba
181 m²
Ugod
Eladó családi ház

Ugod

80 M Ft
4 szoba
121 m²
Cece
Eladó családi ház

Cece

69.8 M Ft
4 szoba
215 m²
Szarvaskő, Rózsa utca
Eladó családi ház

Szarvaskő

54.9 M Ft
1 + 3 szoba
140 m²
Baks
Eladó családi ház

Baks

18.9 M Ft
3 szoba
118 m²