Astora Olive Club House

Eladó panellakás
Miskolc, 1. emelet

+ 12 kép 1/15
58 900 000 Ft58.9 M Ft 934 921 Ft/m2
2 szoba
63 m²
1. emelet
építés éve:2023

Részletes adatok

Fűtés: Elektromos
Emelet: 1. emelet
Extrák: Lift
Energetikai besorolás: Nem adta meg a hirdető

Az OTP Bank lakáshitel ajánlataFizetett hirdetés

+36 70 866
Cselényi Norbert
OTP IP Miskolc Corvin 1-3

Érdekel az OTP Bank kedvezményes lakáshitel ajánlata? *

* A kérdésre „Igen” válasz bejelölése esetén, az „Üzenet küldése” gombra kattintva kijelentem, hogy az OTP Bank Nyrt. Adatkezelési tájékoztatójának tartalmát megismertem és tudomásul vettem.

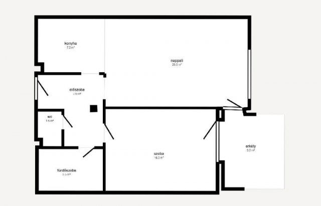
Eladó panellakás leírása

Eladó Miskolc Bodótető városrészen, új építésű panorámás társasházi lakás
- 63 m2- es, egy szoba + amerikai konyhás nappalis, emeleti, erkélyes új építésű lakás
- az ablakok műanyag hőszigetelt kivitelűek 3 rétegű üvegezéssel
- a lakások közötti elválasztásról 30 cm vastagságú hanggátló falak gondoskodnak
- a meleg vizet villanybojlerek, a lakások hűtés- fűtését Mitsubishi levegő - levegő hőszivattyú rendszerek biztosítják
- a homlokzat 20 cm hőszigeteléssel van ellátva
- a lakások kulcsrakészen készülnek el
- egyes lakások hosszútávra bérbe is kivehetőek, ezek a lakások kulcsrakészen, konyhabútorral felszerelve kerülnek kialakításra
- a garázsban elektromos autó töltési lehetőség is kialakításra kerül, a lakások saját napeleméről
- az udvaron kávézó és minőségi, modern játszótér kerül kialakításra
- az épület alatt 8 db külön álló garázs található, illetve a teremgarázsba beállóhelyek, melyekhez tároló is tartozik.

Amennyiben az ingatlan felkeltette az érdeklődését, hívjon bizalommal és tekintsük meg együtt akár hétvégén is! OTP Banki hátterünknek köszönhetően finanszírozási igényekben (pl. Babaváró, CSOK, Felújítási hitel, stb.) is állunk ügyfeleink rendelkezésére. Az ingatlan előre egyeztetett időpontban megtekinthető, megbízható ügyvédi közreműködést, szerződéskötéshez irodai hátteret biztosítunk. Referencia szám: M323170

Referencia szám: M323170-ZE

Hirdetés feltöltve: 2026. 02. 24. Utoljára módosítva: 2026. 04. 01.

2 szobás panellakások ára Miskolcon

Ebből az összehasonlításból megtudhatod, hogyan viszonyul a lakás ára a környékbeli panellakások átlagos árához. Ez nem azt jelenti, hogy ennyivel olcsóbb vagy drágább, mint amennyit a lakás ér, hanem hogy ennyivel tér el a környékbeli átlagtól.

Ennek a m² ára
Miskolc m² ár
935 e Ft
688 e Ft -36%
Ennek az ára
Miskolc átlagár
58.9 M Ft m Ft
30.6 m Ft -92%

Az ingatlan elhelyezkedése

Cím: Miskolc, 1. emelet

Eladó panellakások a környékről

Miskolc, Szentpéteri kapu Nyugat, Szentpéteri kapu
Eladó panellakás

Miskolc

36 M Ft
3 szoba
73 m²
Miskolc, Soltész Nagy Kálmán
Eladó panellakás

Miskolc

68.49 M Ft
4 + 1 szoba
119 m²
Miskolc, Vologda, Jókai Mór utca
Eladó panellakás

Miskolc

44.9 M Ft
3 szoba
55 m²
Miskolc, Hejőcsaba, Szalag utca
Eladó panellakás

Miskolc

31.45 M Ft
2 szoba
47 m²
Miskolc, Avas Dél városrész, Középszer utca
Eladó panellakás

Miskolc

33 M Ft
2 + 1 szoba
61 m²
Miskolc
Eladó panellakás

Miskolc

44.9 M Ft
3 szoba
55 m²
Miskolc
Eladó panellakás

Miskolc

79.9 M Ft
3 szoba
77 m²
Miskolc
Eladó panellakás

Miskolc

55.49 M Ft
2 + 1 szoba
63 m²
Miskolc
Eladó panellakás

Miskolc

28.75 M Ft
2 szoba
51 m²
Miskolc, Soltész Nagy Kálmán
Eladó panellakás

Miskolc

68.49 M Ft
4 + 1 szoba
119 m²
Miskolc
Eladó panellakás

Miskolc

29.8 M Ft
2 szoba
55 m²
Miskolc
Eladó panellakás

Miskolc

55.49 M Ft
2 + 1 szoba
63 m²
Miskolc
Eladó panellakás

Miskolc

44.9 M Ft
3 szoba
55 m²
Miskolc
Eladó panellakás

Miskolc

33.5 M Ft
1 + 2 szoba
54 m²
Kazincbarcika
Eladó panellakás

Kazincbarcika

46.8 M Ft
4 szoba
114 m²
Miskolc, Szentpéteri kapu Nyugat, Szentpéteri kapu
Eladó panellakás

Miskolc

36 M Ft
3 szoba
73 m²
Miskolc
Eladó panellakás

Miskolc

55.49 M Ft
2 + 1 szoba
63 m²
Miskolc
Eladó panellakás

Miskolc

55.49 M Ft
2 + 1 szoba
63 m²
Sátoraljaújhely, Dózsa György utca
Eladó panellakás

Sátoraljaújhely

26 M Ft
2 szoba
54 m²
Miskolc
Eladó panellakás

Miskolc

44.9 M Ft
3 szoba
55 m²
Miskolc
Eladó panellakás

Miskolc

35 M Ft
1 + 2 szoba
54 m²
Miskolc
Eladó panellakás

Miskolc

29.8 M Ft
2 szoba
51 m²
Miskolc
Eladó panellakás

Miskolc

79.9 M Ft
3 szoba
77 m²
Sárospatak
Eladó panellakás

Sárospatak

25 M Ft
2 szoba
61 m²

Falusi CSOK ingatlanok

Zalacsány
Eladó családi ház

Zalacsány

69.9 M Ft
3 szoba
90 m²
Balatonszárszó
Eladó családi ház

Balatonszárszó

178 M Ft
6 szoba
260 m²
Tápiószőlős
Eladó családi ház

Tápiószőlős

29.8 M Ft
3 szoba
75 m²
Bácsbokod
Eladó családi ház

Bácsbokod

55 M Ft
6 szoba
250 m²
Jánosháza
Eladó családi ház

Jánosháza

23.5 M Ft
3 szoba
90 m²
Gesztely
Eladó családi ház

Gesztely

34.9 M Ft
3 szoba
95 m²
Balatonőszöd
Eladó családi ház

Balatonőszöd

72 M Ft
4 szoba
92 m²
Balatonszemes, Ady Endre u
Eladó téglalakás

Balatonszemes

119.9 M Ft
3 szoba
67 m²