NapForrás 20 - Buda

Eladó panellakás
Miskolc, 2. emelet

+ 10 kép 1/13
33 500 000 Ft33.5 M Ft 609 091 Ft/m2
2 szoba
55 m2
2. emelet

Részletes adatok

Fűtés: Gázkazán
Energetikai besorolás: Nem adta meg a hirdető

Az OTP Bank lakáshitel ajánlataFizetett hirdetés

+36 30 700
Fodor Zsuzsanna
OTP Ingatlanpont Miskolc Szemere

Érdekel az OTP Bank kedvezményes lakáshitel ajánlata? *

* A kérdésre „Igen” válasz bejelölése esetén, az „Üzenet küldése” gombra kattintva kijelentem, hogy az OTP Bank Nyrt. Adatkezelési tájékoztatójának tartalmát megismertem és tudomásul vettem.

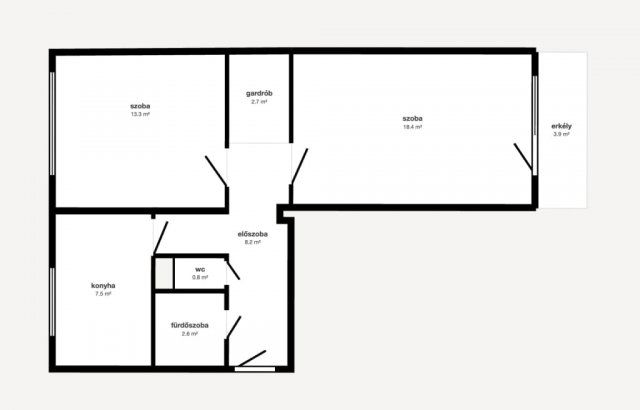
Eladó panellakás leírása

Eladó Miskolc egyik kedvelt részén, Újgyőri főtér szomszédságában, a Károly utcában, egy 55 nm-es, 2 szobás, második emeleti, tehermentes panel lakás!
A lakás átlagos állapotú, jól elrendezéssel rendelkezik. A két szoba parkettás, a többi helyiség járólappal burkolt. A nyílászárók műanyag, hőszigetelt ablakok redőnnyel, a lépcsőház pedig zárható, tiszta és rendezett.
A társasház 1986-ban épült, és külön előnye, hogy a lépcsőház saját kazánnal, teljesen egyedi fűtési rendszerrel rendelkezik ? ez kedvező fenntartási költségeket biztosít. Nagyszobában klíma is elhelyezésre került, beépített szekrény és a konyhabútor a vételár részét képezi, pince is tartozik hozzá.
A környék csendes, rendezett, a lakóközösség jó, a közelben villamosmegálló, buszmegálló.
Ideális választás első lakásnak, befektetésnek vagy kisebb család számára.
Banki háttérrel, teljes körű ügyintézéssel segítem a vásárlást! Otthon Start Hitelprogram, CSOK Plusz és lakáshitel ügyintézésben is támogatást nyújtok díjmentesen! Érdeklődés esetén hivatkozzon M318298 azonosítási számra.

Hirdetés feltöltve: 2025. 12. 11. Utoljára módosítva: 2025. 12. 11.

2 szobás panellakások ára Miskolcon

Ebből az összehasonlításból megtudhatod, hogyan viszonyul a lakás ára a környékbeli panellakások átlagos árához. Ez nem azt jelenti, hogy ennyivel olcsóbb vagy drágább, mint amennyit a lakás ér, hanem hogy ennyivel tér el a környékbeli átlagtól.

Ennek a m² ára
Miskolc m² ár
609 e Ft
618 e Ft 1%
Ennek az ára
Miskolc átlagár
33.5 M Ft m Ft
32.8 m Ft -2%

Az ingatlan elhelyezkedése

Cím: Miskolc, 2. emelet

Eladó panellakások a környékről

Eladó panellakás
Eladó panellakás

Miskolc

34.99 M Ft
2 + 1 szoba
55 m2
Eladó panellakás
Eladó panellakás

Sajószentpéter

14.49 M Ft
1 + 2 szoba
59 m2
Eladó panellakás
Eladó panellakás

Miskolc, Soltész Nagy Kálmán

68.49 M Ft
4 + 1 szoba
119 m2
Eladó panellakás
Eladó panellakás

Kazincbarcika

21.5 M Ft
2 szoba
52 m2
Eladó panellakás
Eladó panellakás

Miskolc

28.75 M Ft
2 szoba
51 m2
Eladó panellakás
Eladó panellakás

Sátoraljaújhely, Dózsa György utca

26 M Ft
2 szoba
54 m2
Eladó panellakás
Eladó panellakás

Miskolc

54.9 M Ft
4 szoba
87 m2
Eladó panellakás
Eladó panellakás

Miskolc, Avas Dél városrész, Klapka György utca

29.8 M Ft
2 szoba
55 m2
Eladó panellakás
Eladó panellakás

Miskolc, Avas Kelet városrész, Dankó Pista utca

31.9 M Ft
3 szoba
73 m2
Eladó panellakás
Eladó panellakás

Miskolc, Soltész Nagy Kálmán

68.49 M Ft
4 + 1 szoba
119 m2
Eladó panellakás
Eladó panellakás

Miskolc

26.5 M Ft
2 szoba
55 m2
Eladó panellakás
Eladó panellakás

Miskolc

24.99 M Ft
2 szoba
51 m2
Eladó panellakás
Eladó panellakás

Miskolc

32 M Ft
3 szoba
63 m2
Eladó panellakás
Eladó panellakás

Miskolc

21.99 M Ft
2 szoba
55 m2
Eladó panellakás
Eladó panellakás

Miskolc, Diósgyőr, Árpád út

24.99 M Ft
2 szoba
51 m2
Eladó panellakás
Eladó panellakás

Miskolc, Belváros, Szent István utca

25.9 M Ft
2 szoba
51 m2
Eladó panellakás
Eladó panellakás

Miskolc

38.9 M Ft
3 szoba
63 m2
Eladó panellakás
Eladó panellakás

Miskolc

21.99 M Ft
2 szoba
55 m2
Eladó panellakás
Eladó panellakás

Miskolc, Avas Dél városrész, Testvérvárosok

21.5 M Ft
1 + 1 szoba
35 m2
Eladó panellakás
Eladó panellakás

Miskolc

25.5 M Ft
2 szoba
51 m2
Eladó panellakás
Eladó panellakás

Kazincbarcika

42 M Ft
4 szoba
114 m2
Eladó panellakás
Eladó panellakás

Miskolc

35.5 M Ft
2 szoba
55 m2
Eladó panellakás
Eladó panellakás

Miskolc, Avas Kelet városrész, Dankó Pista utca

31.9 M Ft
3 szoba
73 m2
Eladó panellakás
Eladó panellakás

Miskolc

25.5 M Ft
2 szoba
51 m2

Falusi CSOK ingatlanok

Eladó családi ház
Eladó családi ház

Ősi

55 M Ft
3 szoba
74 m2
Eladó családi ház
Eladó családi ház

Kondorfa, Alvég utca

34.9 M Ft
1 + 1 szoba
67 m2
Eladó családi ház
Eladó családi ház

Sellye

21.6 M Ft
2 szoba
72 m2
Eladó családi ház
Eladó családi ház

Pétfürdő

65 M Ft
3 szoba
97 m2
Eladó családi ház
Eladó családi ház

Kondorfa

29.9 M Ft
3 + 1 szoba
65 m2
Eladó családi ház
Eladó családi ház

Ősi

64.9 M Ft
4 szoba
181 m2
Eladó családi ház
Eladó családi ház

Olaszfa

70.38 M Ft
3 szoba
139 m2
Eladó családi ház
Eladó családi ház

Törtel

18 M Ft
6 szoba
188 m2