Aerogate Homes

Eladó panellakás
Miskolc, 4. emelet

+ 10 kép 1/13
22 500 000 Ft22.5 M Ft 642 857 Ft/m2
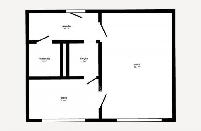
1 + 1 szoba
35 m2
4. emelet
építés éve:1970

Részletes adatok

Állapot: Átlagos
Fűtés: Távfűtés
Extrák: Lift
Energetikai besorolás: Nem adta meg a hirdető

Az OTP Bank lakáshitel ajánlataFizetett hirdetés

+36 70 770
Lenkóné Szarka Erika
OTP Ingatlanpont Miskolc Szemere

Érdekel az OTP Bank kedvezményes lakáshitel ajánlata? *

* A kérdésre „Igen” válasz bejelölése esetén, az „Üzenet küldése” gombra kattintva kijelentem, hogy az OTP Bank Nyrt. Adatkezelési tájékoztatójának tartalmát megismertem és tudomásul vettem.

Eladó panellakás leírása

Első lakásukat vásárlók, befektetők figyelem!! Eladó Diósgyőrben, a Kuruc utcában, 10 emeletes panel épületben egy 35 nm-es 1+1 fél szobás távhős 4.emeleti lakás. Az ingatlanban a komplett villamoshálózat korszerűsítése megtörtént, a nyílászárók redőnnyel felszerelt műanyag ablakokra lettek cserélve, továbbá egy HI-SEC több ponton záródó biztonsági ajtó került beépítésre. A villamoshálózat felújításáról készült képeket, dokumentációkat, a villamosbiztonsági jegyzőkönyvvel egyetemben igény esetén az érdeklődő rendelkezésére bocsájtjuk. Az ingatlan megfelel a 3%-os Otthon Start Program feltételeinek.
OTP Banki hátterünknek köszönhetően finanszírozási igényekben (pl. Otthon Start Hitelprogram, Babaváró, Falusi CSOK, CSOK Plusz, Lakáshitel, Személyi kölcsön stb.), illetve biztosítások tekintetében is díjmentesen, soron kívüli ügyintézéssel segítem ügyfeleim! Jöjjön és tekintsük meg együtt akár hétvégén is! Hívása során hivatkozzon az M315214-es referenciaszámra.

Referencia szám: M315214

Hirdetés feltöltve: 2025. 11. 02. Utoljára módosítva: 2026. 01. 13.

2 szobás panellakások ára Miskolcon

Ebből az összehasonlításból megtudhatod, hogyan viszonyul a lakás ára a környékbeli panellakások átlagos árához. Ez nem azt jelenti, hogy ennyivel olcsóbb vagy drágább, mint amennyit a lakás ér, hanem hogy ennyivel tér el a környékbeli átlagtól.

Ennek a m² ára
Miskolc m² ár
643 e Ft
633 e Ft -2%
Ennek az ára
Miskolc átlagár
22.5 M Ft m Ft
32.5 m Ft 31%

Az ingatlan elhelyezkedése

Cím: Miskolc, 4. emelet

Eladó panellakások a környékről

Eladó panellakás
Eladó panellakás

Miskolc

39.8 M Ft
2 szoba
64 m2
Eladó panellakás
Eladó panellakás

Sátoraljaújhely, Dózsa György utca

26 M Ft
2 szoba
54 m2
Eladó panellakás
Eladó panellakás

Miskolc

24.99 M Ft
2 szoba
51 m2
Eladó panellakás
Eladó panellakás

Miskolc

34.99 M Ft
2 + 1 szoba
55 m2
Eladó panellakás
Eladó panellakás

Sárospatak, Katona József utca

19.8 M Ft
2 szoba
54 m2
Eladó panellakás
Eladó panellakás

Kazincbarcika

42 M Ft
4 szoba
114 m2
Eladó panellakás
Eladó panellakás

Sátoraljaújhely

26 M Ft
2 szoba
54 m2
Eladó panellakás
Eladó panellakás

Miskolc, Győri kapu

39.8 M Ft
2 szoba
64 m2
Eladó panellakás
Eladó panellakás

Miskolc

33.5 M Ft
1 + 2 szoba
54 m2
Eladó panellakás
Eladó panellakás

Miskolc

29.8 M Ft
2 szoba
55 m2
Eladó panellakás
Eladó panellakás

Miskolc

32 M Ft
3 szoba
63 m2
Eladó panellakás
Eladó panellakás

Miskolc

29.8 M Ft
2 szoba
55 m2
Eladó panellakás
Eladó panellakás

Miskolc, Vologda, Jókai Mór utca

44.9 M Ft
3 szoba
55 m2
Eladó panellakás
Eladó panellakás

Miskolc

29.8 M Ft
2 szoba
55 m2
Eladó panellakás
Eladó panellakás

Miskolc

21.99 M Ft
2 szoba
55 m2
Eladó panellakás
Eladó panellakás

Miskolc, Avas Dél városrész, Testvérvárosok

21.5 M Ft
1 + 1 szoba
35 m2
Eladó panellakás
Eladó panellakás

Miskolc, Belváros, Szent István utca

25.9 M Ft
2 szoba
51 m2
Eladó panellakás
Eladó panellakás

Ózd, Városközpont lakótelep, Nemzetőr utca

9.9 M Ft
1 + 1 szoba
35 m2
Eladó panellakás
Eladó panellakás

Miskolc

54.9 M Ft
4 szoba
87 m2
Eladó panellakás
Eladó panellakás

Miskolc

26.5 M Ft
2 szoba
55 m2
Eladó panellakás
Eladó panellakás

Miskolc, Avas Kelet városrész, Dankó Pista utca

31.9 M Ft
3 szoba
73 m2
Eladó panellakás
Eladó panellakás

Sátoraljaújhely

26 M Ft
2 szoba
54 m2
Eladó panellakás
Eladó panellakás

Miskolc, Avas Dél városrész, Testvérvárosok

21.5 M Ft
1 + 1 szoba
35 m2
Eladó panellakás
Eladó panellakás

Miskolc

32 M Ft
3 szoba
63 m2

Falusi CSOK ingatlanok

Eladó családi ház
Eladó családi ház

Őrimagyarósd

48.9 M Ft
4 szoba
150 m2
Eladó családi ház
Eladó családi ház

Törtel

39 M Ft
1 + 1 szoba
118 m2
Eladó családi ház
Eladó családi ház

Nagybörzsöny

79.9 M Ft
4 szoba
149 m2
Eladó családi ház
Eladó családi ház

Balatonszárszó

178 M Ft
6 szoba
260 m2
Eladó családi ház
Eladó családi ház

Nyékládháza, Mátyás király utca

34.9 M Ft
2 szoba
88 m2
Eladó családi ház
Eladó családi ház

Tápióság, Szentmártonkátai út

49.5 M Ft
3 szoba
100 m2
Eladó családi ház
Eladó családi ház

Maráza

49.99 M Ft
4 szoba
130 m2
Eladó családi ház
Eladó családi ház

Egyed

24.9 M Ft
2 + 1 szoba
56 m2