Eladó panellakás
Miskolc, 4. emelet

+ 11 kép 1/14
22 500 000 Ft22.5 M Ft 441 176 Ft/m2
2 szoba
51 m2
4. emelet
építés éve:1970

Részletes adatok

Állapot: Átlagos
Fűtés: Távfűtés
Energetikai besorolás: Nem adta meg a hirdető

Az OTP Bank lakáshitel ajánlataFizetett hirdetés

+36 70 201
Kégl Zsolt
OTP Ingatlanpont Miskolc Szemere

Érdekel az OTP Bank kedvezményes lakáshitel ajánlata? *

* A kérdésre „Igen” válasz bejelölése esetén, az „Üzenet küldése” gombra kattintva kijelentem, hogy az OTP Bank Nyrt. Adatkezelési tájékoztatójának tartalmát megismertem és tudomásul vettem.

Eladó panellakás leírása

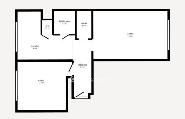
Miskolc kedvelt, zöldövezeti részén, Hejőcsabán a Futó utcában egy 51 nm-es, 2 szobás lakás, 4 emeletes panelház legfelső szintjén eladó. A lakás átlagos állapotú, de több fontos felújítás már megtörtént: a vízvezeték és a radiátorok cseréje, valamint új biztonsági bejárati ajtó került beépítésre. A környék csendes és nyugodt, kiváló választás lehet saját otthonnak vagy befektetésnek is. OTP Banki hátterünkkel finanszírozási megoldásokkal is segítjük ügyfeleinket. Az ingatlan megfelel az Otthon Start Program feltételeinek, így 3%-os lakáshitellel is megvásárolható! Jöjjön el, nézzük meg együtt! Hívása során hivatkozzon az M311970 referenciaszámra!

Hirdetés feltöltve: 2025. 10. 03. Utoljára módosítva: 2025. 10. 03.

2 szobás panellakások ára Miskolcon

Ebből az összehasonlításból megtudhatod, hogyan viszonyul a lakás ára a környékbeli panellakások átlagos árához. Ez nem azt jelenti, hogy ennyivel olcsóbb vagy drágább, mint amennyit a lakás ér, hanem hogy ennyivel tér el a környékbeli átlagtól.

Ennek a m² ára
Miskolc m² ár
441 e Ft
580 e Ft 24%
Ennek az ára
Miskolc átlagár
22.5 M Ft m Ft
30.5 m Ft 26%

Az ingatlan elhelyezkedése

Cím: Miskolc, 4. emelet

Eladó panellakások a környékről

Eladó panellakás
Eladó panellakás

Miskolc

29.8 M Ft
2 szoba
55 m2
Eladó panellakás
Eladó panellakás

Miskolc, Avas Kelet városrész, Dankó Pista utca

31.9 M Ft
3 szoba
73 m2
Eladó panellakás
Eladó panellakás

Tiszaújváros

29 M Ft
2 szoba
51 m2
Eladó panellakás
Eladó panellakás

Kazincbarcika

21.5 M Ft
2 szoba
52 m2
Eladó panellakás
Eladó panellakás

Kazincbarcika

42 M Ft
4 szoba
114 m2
Eladó panellakás
Eladó panellakás

Miskolc, Győri kapu

39.8 M Ft
2 szoba
64 m2
Eladó panellakás
Eladó panellakás

Miskolc

68.49 M Ft
4 + 1 szoba
119 m2
Eladó panellakás
Eladó panellakás

Miskolc

25.9 M Ft
2 szoba
51 m2
Eladó panellakás
Eladó panellakás

Sajószentpéter

15 M Ft
1 + 2 szoba
59 m2
Eladó panellakás
Eladó panellakás

Miskolc, Soltész Nagy Kálmán

68.49 M Ft
4 + 1 szoba
119 m2
Eladó panellakás
Eladó panellakás

Kazincbarcika

42 M Ft
4 szoba
114 m2
Eladó panellakás
Eladó panellakás

Miskolc

39.8 M Ft
2 szoba
64 m2
Eladó panellakás
Eladó panellakás

Miskolc

25.9 M Ft
2 szoba
51 m2
Eladó panellakás
Eladó panellakás

Sárospatak, Katona József utca

19.8 M Ft
2 szoba
54 m2
Eladó panellakás
Eladó panellakás

Miskolc

16.9 M Ft
1 + 1 szoba
37 m2
Eladó panellakás
Eladó panellakás

Kazincbarcika

42 M Ft
4 szoba
114 m2
Eladó panellakás
Eladó panellakás

Miskolc, Avas Kelet városrész, Dankó Pista utca

31.9 M Ft
3 szoba
73 m2
Eladó panellakás
Eladó panellakás

Miskolc

38.9 M Ft
3 szoba
63 m2
Eladó panellakás
Eladó panellakás

Kazincbarcika

42 M Ft
4 szoba
114 m2
Eladó panellakás
Eladó panellakás

Miskolc, Avas Dél városrész, Klapka György utca

29.8 M Ft
2 szoba
55 m2
Eladó panellakás
Eladó panellakás

Kazincbarcika

37.9 M Ft
3 + 1 szoba
87 m2
Eladó panellakás
Eladó panellakás

Miskolc

38.9 M Ft
3 + 1 szoba
63 m2
Eladó panellakás
Eladó panellakás

Miskolc

29.9 M Ft
1 + 2 szoba
56 m2
Eladó panellakás
Eladó panellakás

Miskolc, Avas Dél városrész, Felsőruzsin

23.7 M Ft
2 szoba
44 m2

Falusi CSOK ingatlanok

Eladó családi ház
Eladó családi ház

Recsk

40 M Ft
3 + 1 szoba
130 m2
Eladó téglalakás
Eladó téglalakás

Nagyszentjános

28.5 M Ft
1 szoba
28 m2
Eladó családi ház
Eladó családi ház

Ceglédbercel

63 M Ft
3 szoba
70 m2
Eladó téglalakás
Eladó téglalakás

Besnyő

42.9 M Ft
2 szoba
40 m2
Eladó téglalakás
Eladó téglalakás

Balatonszemes, Ady Endre u

58.9 M Ft
1 szoba
36 m2
Eladó családi ház
Eladó családi ház

Bakonya

48 M Ft
3 szoba
168 m2
Eladó családi ház
Eladó családi ház

Koppányszántó, Fő u 211

9.9 M Ft
2 szoba
55 m2
Eladó téglalakás
Eladó téglalakás

Tokaj

116.5 M Ft
2 szoba
49 m2