Eladó panellakás
Miskolc, 4. emelet

+ 10 kép 1/13
22 500 000 Ft22.5 M Ft 441 176 Ft/m2
2 szoba
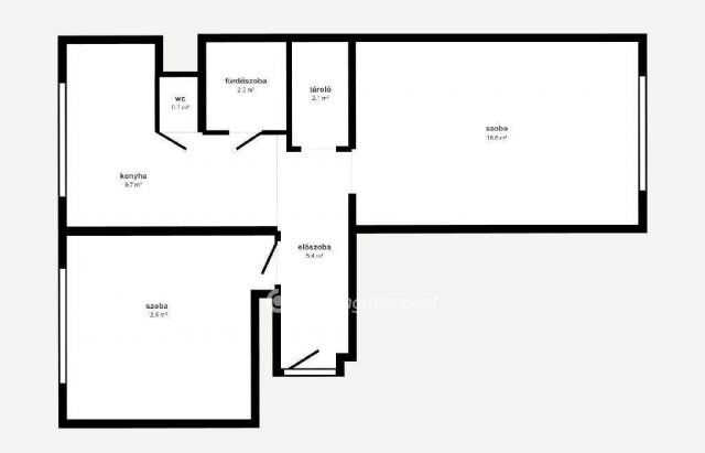
51 m2
4. emelet
építés éve:1970

Részletes adatok

Állapot: Átlagos
Fűtés: Távfűtés
Energetikai besorolás: Nem adta meg a hirdető

Az OTP Bank lakáshitel ajánlataFizetett hirdetés

+36 30 340
Dandásné Fábián Klaudia
OTP IP Miskolc Corvin 1-3

Érdekel az OTP Bank kedvezményes lakáshitel ajánlata? *

* A kérdésre „Igen” válasz bejelölése esetén, az „Üzenet küldése” gombra kattintva kijelentem, hogy az OTP Bank Nyrt. Adatkezelési tájékoztatójának tartalmát megismertem és tudomásul vettem.

Eladó panellakás leírása

Miskolc kedvelt, zöldövezeti részén, Hejőcsabán a Futó utcában egy 51 nm-es, 2 szobás lakás, 4 emeletes panelház legfelső szintjén eladó. A lakás átlagos állapotú, de több fontos felújítás már megtörtént: a vízvezeték és a radiátorok cseréje, valamint új biztonsági bejárati ajtó került beépítésre. A környék csendes és nyugodt, kiváló választás lehet saját otthonnak vagy befektetésnek is. OTP Banki hátterünkkel finanszírozási megoldásokkal is segítjük ügyfeleinket. Az ingatlan megfelel az Otthon Start Program feltételeinek, így 3%-os lakáshitellel is megvásárolható! Jöjjön el, nézzük meg együtt! Hívása során hivatkozzon az M311970 referenciaszámra!

Referencia szám: M311970

Hirdetés feltöltve: 2025. 10. 02.

2 szobás panellakások ára Miskolcon

Ebből az összehasonlításból megtudhatod, hogyan viszonyul a lakás ára a környékbeli panellakások átlagos árához. Ez nem azt jelenti, hogy ennyivel olcsóbb vagy drágább, mint amennyit a lakás ér, hanem hogy ennyivel tér el a környékbeli átlagtól.

Ennek a m² ára
Miskolc m² ár
441 e Ft
568 e Ft 22%
Ennek az ára
Miskolc átlagár
22.5 M Ft m Ft
28.7 m Ft 22%

Az ingatlan elhelyezkedése

Cím: Miskolc, 4. emelet

Eladó panellakások a környékről

Eladó panellakás
Eladó panellakás

Miskolc

25.9 M Ft
2 szoba
51 m2
Eladó panellakás
Eladó panellakás

Ózd

7.25 M Ft
2 szoba
35 m2
Eladó panellakás
Eladó panellakás

Miskolc

29.5 M Ft
1 + 2 szoba
55 m2
Eladó panellakás
Eladó panellakás

Miskolc

34.99 M Ft
2 + 1 szoba
55 m2
Eladó panellakás
Eladó panellakás

Miskolc

28.99 M Ft
2 + 1 szoba
61 m2
Eladó panellakás
Eladó panellakás

Miskolc

21.99 M Ft
2 szoba
55 m2
Eladó panellakás
Eladó panellakás

Kazincbarcika

42 M Ft
4 szoba
114 m2
Eladó panellakás
Eladó panellakás

Miskolc

16.9 M Ft
1 + 1 szoba
37 m2
Eladó panellakás
Eladó panellakás

Miskolc

38.9 M Ft
3 + 1 szoba
63 m2
Eladó panellakás
Eladó panellakás

Miskolc

25.3 M Ft
2 szoba
51 m2
Eladó panellakás
Eladó panellakás

Kazincbarcika

42 M Ft
4 szoba
114 m2
Eladó panellakás
Eladó panellakás

Miskolc, Avas Kelet városrész, Dankó Pista utca

31.9 M Ft
3 szoba
73 m2
Eladó panellakás
Eladó panellakás

Miskolc, Avas Kelet városrész, Dankó Pista utca

31.9 M Ft
3 szoba
73 m2
Eladó panellakás
Eladó panellakás

Miskolc, Avas Dél városrész, Felsőruzsin

23.7 M Ft
2 szoba
44 m2
Eladó panellakás
Eladó panellakás

Sajószentpéter

15 M Ft
1 + 2 szoba
59 m2
Eladó panellakás
Eladó panellakás

Miskolc, Győri kapu

39.8 M Ft
2 szoba
64 m2
Eladó panellakás
Eladó panellakás

Kazincbarcika

42 M Ft
4 szoba
114 m2
Eladó panellakás
Eladó panellakás

Kazincbarcika

42 M Ft
4 szoba
114 m2
Eladó panellakás
Eladó panellakás

Mezőkövesd

33 M Ft
2 + 2 szoba
73 m2
Eladó panellakás
Eladó panellakás

Kazincbarcika

42 M Ft
4 szoba
114 m2
Eladó panellakás
Eladó panellakás

Miskolc

38.9 M Ft
3 szoba
63 m2
Eladó panellakás
Eladó panellakás

Miskolc

24.9 M Ft
3 szoba
54 m2
Eladó panellakás
Eladó panellakás

Mezőkövesd

33 M Ft
2 + 2 szoba
73 m2
Eladó panellakás
Eladó panellakás

Mezőkövesd

33 M Ft
2 + 2 szoba
73 m2

Falusi CSOK ingatlanok

Eladó családi ház
Eladó családi ház

Homokbödöge

49.9 M Ft
4 + 1 szoba
167 m2
Eladó családi ház
Eladó családi ház

Aba

84.9 M Ft
2 + 1 szoba
112 m2
Eladó családi ház
Eladó családi ház

Koppányszántó, Fő u 211

9.9 M Ft
2 szoba
55 m2
Eladó családi ház
Eladó családi ház

Szajol

22.9 M Ft
2 szoba
70 m2
Eladó családi ház
Eladó családi ház

Bakonyság

51.9 M Ft
2 + 1 szoba
91 m2
Eladó családi ház
Eladó családi ház

Nagyszénás, Zrínyi

8.5 M Ft
3 szoba
94 m2
Eladó családi ház
Eladó családi ház

Örkény

29.9 M Ft
3 szoba
106 m2
Eladó családi ház
Eladó családi ház

Balatonkenese

99.8 M Ft
5 szoba
138 m2