Stay Family Park

Eladó panellakás
Kecskemét, 5. emelet

+ 2 kép 1/5
44 900 000 Ft44.9 M Ft 736 066 Ft/m2
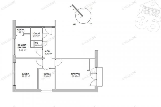
3 szoba
61 m2
5. emelet
építés éve:1978

Részletes adatok

Állapot: Átlagos
Fűtés: Távfűtés
Extrák: Lift
Energetikai besorolás: Nem adta meg a hirdető

Az OTP Bank lakáshitel ajánlataFizetett hirdetés

+36 70 649
Borosné Hajnalka
HOUSE36 Ingatlanbázis Kft.

Érdekel az OTP Bank kedvezményes lakáshitel ajánlata? *

* A kérdésre „Igen” válasz bejelölése esetén, az „Üzenet küldése” gombra kattintva kijelentem, hogy az OTP Bank Nyrt. Adatkezelési tájékoztatójának tartalmát megismertem és tudomásul vettem.

Eladó panellakás leírása

Kecskemét Széchenyivárosban, 61 m2-es, 3 szobás, erkélyes lakás, liftes házban eladó!

Jellemzők:

szigetelt tömb
3 külön nyíló szoba
lift
cserélt műanyagnyílászárók
távfűtés egyedi mérőkkel
kitűnő infrastruktúra
azonnal birtokba vehető

Figyelem az adatlap megbízóinktól kapott adatok
alapján készült,pontosságáért felelősséget
nem tudunk vállalni!


A HOUSE36 kínálatában található összes ingatlannal
kapcsolatban tudok felvilágosítást nyújtani!
Hívjon bizalommal!
Szolgáltatásaink Kereső ügyfeleink számára
INGYENESEK!


Ha az ingatlan vásárláshoz meglévő ingatlan eladása szüksége keressen nyugodtan állok rendelkezésére!!
Az iroda legfrissebb, aktuális kínálatát a HOUSE36 saját weboldalán találja!

Hirdetés feltöltve: 2025. 12. 09. Utoljára módosítva: 2025. 12. 09.

3 szobás panellakások ára Kecskeméten

Ebből az összehasonlításból megtudhatod, hogyan viszonyul a lakás ára a környékbeli panellakások átlagos árához. Ez nem azt jelenti, hogy ennyivel olcsóbb vagy drágább, mint amennyit a lakás ér, hanem hogy ennyivel tér el a környékbeli átlagtól.

Ennek a m² ára
Kecskemét m² ár
736 e Ft
774 e Ft 5%
Ennek az ára
Kecskemét átlagár
44.9 M Ft m Ft
49.1 m Ft 9%

Az ingatlan elhelyezkedése

Cím: Kecskemét, 5. emelet

Eladó panellakások a környékről

Eladó panellakás
Eladó panellakás

Kecskemét

44.8 M Ft
3 szoba
66 m2
Eladó panellakás
Eladó panellakás

Kecskemét

44.9 M Ft
3 szoba
60 m2
Eladó panellakás
Eladó panellakás

Kecskemét, Széchenyi-város, Március 15.e utca

42.5 M Ft
2 szoba
50 m2
Eladó panellakás
Eladó panellakás

Szabadszállás

25.6 M Ft
2 szoba
53 m2
Eladó panellakás
Eladó panellakás

Kecskemét

56.49 M Ft
3 szoba
67 m2
Eladó panellakás
Eladó panellakás

Kecskemét

44.9 M Ft
3 szoba
60 m2
Eladó panellakás
Eladó panellakás

Kecskemét, Széchenyi-város, Március 15.e utca

42.5 M Ft
2 szoba
50 m2
Eladó panellakás
Eladó panellakás

Kecskemét

30 M Ft
2 + 1 szoba
62 m2
Eladó panellakás
Eladó panellakás

Kecskemét

44.8 M Ft
3 szoba
66 m2
Eladó panellakás
Eladó panellakás

Kecskemét

44.9 M Ft
3 szoba
60 m2
Eladó panellakás
Eladó panellakás

Kecskemét

44.8 M Ft
3 szoba
66 m2
Eladó panellakás
Eladó panellakás

Kecskemét

66.49 M Ft
4 szoba
77 m2
Eladó panellakás
Eladó panellakás

Kecskemét, Széchenyi-város, Széchenyiváros

10.7 M Ft
2 + 1 szoba
64 m2
Eladó panellakás
Eladó panellakás

Baja

22.9 M Ft
3 szoba
62 m2
Eladó panellakás
Eladó panellakás

Kecskemét

39.9 M Ft
2 + 1 szoba
62 m2
Eladó panellakás
Eladó panellakás

Kecskemét

42 M Ft
2 szoba
54 m2
Eladó panellakás
Eladó panellakás

Kecskemét

44.9 M Ft
3 szoba
60 m2
Eladó panellakás
Eladó panellakás

Kecskemét

43.5 M Ft
3 szoba
60 m2
Eladó panellakás
Eladó panellakás

Kecskemét

56.49 M Ft
3 szoba
67 m2
Eladó panellakás
Eladó panellakás

Kecskemét

44.9 M Ft
3 szoba
60 m2
Eladó panellakás
Eladó panellakás

Kecskemét

44.9 M Ft
3 szoba
60 m2
Eladó panellakás
Eladó panellakás

Kecskemét

44.9 M Ft
3 szoba
60 m2
Eladó panellakás
Eladó panellakás

Kecskemét

44.8 M Ft
3 szoba
66 m2
Eladó panellakás
Eladó panellakás

Kecskemét

66.49 M Ft
4 szoba
77 m2

Falusi CSOK ingatlanok

Eladó családi ház
Eladó családi ház

Kétegyháza

24.9 M Ft
3 + 1 szoba
136 m2
Eladó családi ház
Eladó családi ház

Enese

82.9 M Ft
4 szoba
90 m2
Eladó családi ház
Eladó családi ház

Elek

20.9 M Ft
4 szoba
126 m2
Eladó családi ház
Eladó családi ház

Nyékládháza

75 M Ft
4 szoba
140 m2
Eladó családi ház
Eladó családi ház

Tápiógyörgye

14.9 M Ft
2 szoba
67 m2
Eladó téglalakás
Eladó téglalakás

Újlengyel

72.99 M Ft
2 szoba
68 m2
Eladó családi ház
Eladó családi ház

Doboz

11.99 M Ft
2 + 1 szoba
89 m2
Eladó családi ház
Eladó családi ház

Elek

21.5 M Ft
2 szoba
76 m2