Kedves Felhasználónk! Rendszerfrissítés miatt az oldalunk 2026. február 9-én 12 órától várhatóan 20 óráig nem lesz elérhető. Köszönjük megértésed!
City Pearl

Eladó panellakás
Kazincbarcika, földszint

1/1
27 000 000 Ft27 M Ft 490 909 Ft/m2
2 szoba
55 m2
földszint
építés éve:1970

Részletes adatok

Telekméret: 55 m2
Fűtés: Távfűtés
Emelet: földszint
Közmű: Víz, Gáz, Villany, Csatorna
Energetikai besorolás: Nem adta meg a hirdető

Az OTP Bank lakáshitel ajánlataFizetett hirdetés

+36 30 165
Kozák Csaba
Newex Ingatlaniroda

Érdekel az OTP Bank kedvezményes lakáshitel ajánlata? *

* A kérdésre „Igen” válasz bejelölése esetén, az „Üzenet küldése” gombra kattintva kijelentem, hogy az OTP Bank Nyrt. Adatkezelési tájékoztatójának tartalmát megismertem és tudomásul vettem.

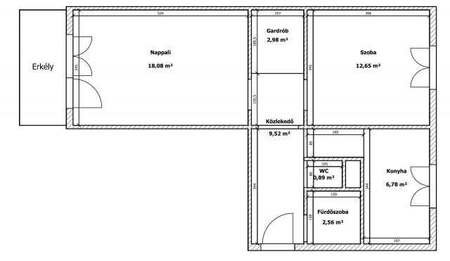
Eladó panellakás leírása

Eladó egy 55 m²-es, földszinti, erkélyes lakás, amely ideális választás befektetőknek éppúgy, mint az idősebb korosztály számára, akik biztonságos, jól megközelíthető és kényelmes otthont keresnek.

A lakásban két különnyíló szoba biztosítja a privát életteret és a nyugalmat, így akár pároknak, akár egyedül élőknek is tökéletes választás.

A klímaberendezésnek köszönhetően a nyári napok is kellemesen telnek.

A modern, teljesen felszerelt konyha – beépített sütővel és főzőlappal – praktikus és hangulatos tere a mindennapi főzésnek.

A többpontos záródású bejárati ajtó fokozott biztonságot nyújt, így valóban nyugodtan pihenhet otthonában.

A földszinti elhelyezkedés nemcsak kényelmet jelent, hanem megkönnyíti a mindennapokat – lépcsőzés nélkül, könnyen megközelíthetően.

A környék csendes, rendezett, ugyanakkor minden fontos szolgáltatás – üzletek, orvosi rendelő, buszmegálló – néhány perc sétára elérhető.

Ha egy nyugodt, biztonságos és modern otthont keres Kazincbarcika központi részén, akkor ez a lakás igazi telitalálat!

Hirdetés feltöltve: 2026. 02. 08.

2 szobás panellakások ára Kazincbarcikán

Ebből az összehasonlításból megtudhatod, hogyan viszonyul a lakás ára a környékbeli panellakások átlagos árához. Ez nem azt jelenti, hogy ennyivel olcsóbb vagy drágább, mint amennyit a lakás ér, hanem hogy ennyivel tér el a környékbeli átlagtól.

Ennek a m² ára
Kazincbarcika m² ár
491 e Ft
440 e Ft -12%
Ennek az ára
Kazincbarcika átlagár
27 M Ft m Ft
38.4 m Ft 30%

Az ingatlan elhelyezkedése

Cím: Kazincbarcika, földszint

Eladó ingatlanok a környékről

Eladó panellakás
Eladó panellakás

Kazincbarcika, Dobó István tér 12

18.3 M Ft
1 + 1 szoba
35 m2
Eladó panellakás
Eladó panellakás

Miskolc

29.8 M Ft
2 szoba
55 m2
Eladó panellakás
Eladó panellakás

Sátoraljaújhely

26 M Ft
2 szoba
54 m2
Eladó panellakás
Eladó panellakás

Kazincbarcika

46.8 M Ft
4 szoba
114 m2
Eladó panellakás
Eladó panellakás

Kazincbarcika

46.8 M Ft
4 szoba
114 m2
Eladó panellakás
Eladó panellakás

Sátoraljaújhely, Dózsa György utca

26 M Ft
2 szoba
54 m2
Eladó panellakás
Eladó panellakás

Miskolc

0.12 M Ft
2 szoba
55 m2
Eladó panellakás
Eladó panellakás

Miskolc

39.8 M Ft
2 szoba
64 m2
Eladó panellakás
Eladó panellakás

Miskolc, Avas Dél városrész, Klapka György utca

29.8 M Ft
2 szoba
55 m2
Eladó panellakás
Eladó panellakás

Miskolc, Győri kapu

39.8 M Ft
2 szoba
64 m2
Eladó panellakás
Eladó panellakás

Kazincbarcika

42 M Ft
4 szoba
114 m2
Eladó panellakás
Eladó panellakás

Miskolc

29.8 M Ft
2 szoba
55 m2
Eladó panellakás
Eladó panellakás

Kazincbarcika

46.8 M Ft
4 szoba
114 m2
Eladó panellakás
Eladó panellakás

Miskolc

21.5 M Ft
1 + 1 szoba
35 m2
Eladó panellakás
Eladó panellakás

Kazincbarcika

46.8 M Ft
4 szoba
114 m2
Eladó családi ház
Eladó családi ház

Csobád

27 M Ft
2 + 1 szoba
100 m2
Eladó panellakás
Eladó panellakás

Miskolc, Vologda, Jókai Mór utca

44.9 M Ft
3 szoba
55 m2
Eladó családi ház
Eladó családi ház

Szikszó

37.9 M Ft
2 szoba
65 m2
Eladó panellakás
Eladó panellakás

Sárospatak, Katona József utca

19.8 M Ft
2 szoba
54 m2
Eladó panellakás
Eladó panellakás

Kazincbarcika

46.8 M Ft
4 szoba
114 m2
Eladó panellakás
Eladó panellakás

Kazincbarcika

46.8 M Ft
4 szoba
114 m2
Eladó téglalakás
Eladó téglalakás

Miskolc

29.9 M Ft
2 szoba
50 m2
Eladó panellakás
Eladó panellakás

Kazincbarcika

23.5 M Ft
2 szoba
52 m2
Eladó családi ház
Eladó családi ház

Mezőnyárád

31.5 M Ft
3 szoba
86 m2

Falusi CSOK ingatlanok

Eladó családi ház
Eladó családi ház

Badacsonytördemic

179.07 M Ft
4 szoba
160 m2
Eladó családi ház
Eladó családi ház

Bajna, Kossuth L. u. 28

58.5 M Ft
7 szoba
192 m2
Eladó családi ház
Eladó családi ház

Recsk

59 M Ft
2 szoba
70 m2
Eladó családi ház
Eladó családi ház

Szederkény

107.9 M Ft
6 szoba
224 m2
Eladó családi ház
Eladó családi ház

Szigliget

299 M Ft
3 szoba
95 m2
Eladó családi ház
Eladó családi ház

Pécsvárad

140 M Ft
2 szoba
79 m2
Eladó családi ház
Eladó családi ház

Recsk

28 M Ft
3 szoba
91 m2
Eladó családi ház
Eladó családi ház

Háromfa, Kossuth

22.4 M Ft
139 m2