Aerogate Homes

Eladó panellakás
Győr, 1. emelet

+ 11 kép 1/14
63 000 000 Ft63 M Ft 1 000 000 Ft/m2
2 + 1 szoba
63 m²
1. emelet
építés éve:1980

Részletes adatok

Fűtés: Távfűtés
Emelet: 1. emelet
Extrák: Lift
Energetikai besorolás: A+

Az OTP Bank lakáshitel ajánlataFizetett hirdetés

+36 30 650
Vörös Brigitta
referens

Érdekel az OTP Bank kedvezményes lakáshitel ajánlata? *

* A kérdésre „Igen” válasz bejelölése esetén, az „Üzenet küldése” gombra kattintva kijelentem, hogy az OTP Bank Nyrt. Adatkezelési tájékoztatójának tartalmát megismertem és tudomásul vettem.

Eladó panellakás leírása

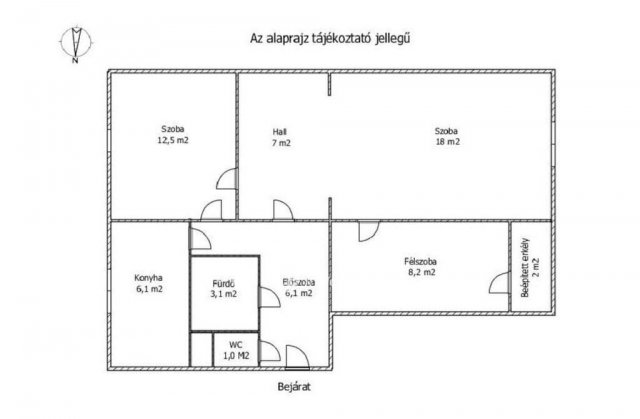
Eladásra kínálok Győrben, a Szigethy Attila úton egy 63 nm-es, 2+1 félszobás, hallos, beépített erkélyes lakást, amely egy 10 emeletes, távfűtött épület első emeletén található. A lakás rendkívül csendes, az egyik szoba és a konyha nyugodt, parkos hátsó részre néz. Az épület 2014-ben teljes energetikai korszerűsítésen esett át, amely magában foglalta a külső szigetelést és a nyílászárók cseréjét. Az erkély a kisszobával akár egybenyitható, így tovább növelhető a térérzet. 2022-ben megtörtént a lakásokat ellátó függőleges közművezetékek (hideg- és melegvíz, csatorna) cseréje is, a lakás egyedi vízmérőkkel rendelkezik.

A környék infrastruktúrája kiváló: a közelben boltok, iskola, óvoda, orvosi rendelő és gyógyszertár is megtalálható, a parkolás pedig közterületen ingyenes. A lakás jó elhelyezkedésének és adottságainak köszönhetően ideális választás otthonnak vagy befektetésnek is.

Az ingatlan megfelel az Otthon Start Hitelprogram feltételeinek.

További információért és megtekintésért keressen bizalommal!

Referenciaszám: M326066

Hirdetés feltöltve: 2026. 04. 19. Utoljára módosítva: 2026. 04. 26.

3 szobás panellakások ára Győrött

Ebből az összehasonlításból megtudhatod, hogyan viszonyul a lakás ára a környékbeli panellakások átlagos árához. Ez nem azt jelenti, hogy ennyivel olcsóbb vagy drágább, mint amennyit a lakás ér, hanem hogy ennyivel tér el a környékbeli átlagtól.

Ennek a m² ára
Győr m² ár
1000 e Ft
929 e Ft -8%
Ennek az ára
Győr átlagár
63 M Ft m Ft
55.6 m Ft -13%

Az ingatlan elhelyezkedése

Cím: Győr, 1. emelet

Eladó panellakások a környékről

Győr
Eladó panellakás

Győr

55 M Ft
3 szoba
63 m²
Győr
Eladó panellakás

Győr

53 M Ft
2 szoba
53 m²
Győr
Eladó panellakás

Győr

49.9 M Ft
2 szoba
54 m²
Győr
Eladó panellakás

Győr

44.9 M Ft
2 szoba
49 m²
Győr
Eladó panellakás

Győr

47.5 M Ft
3 szoba
53 m²
Győr
Eladó panellakás

Győr

64.99 M Ft
3 szoba
68 m²
Győr
Eladó panellakás

Győr

51.9 M Ft
2 szoba
53 m²
Győr
Eladó panellakás

Győr

64.99 M Ft
3 szoba
68 m²
Győr
Eladó panellakás

Győr

47.5 M Ft
3 szoba
53 m²
Győr
Eladó panellakás

Győr

52.9 M Ft
2 + 1 szoba
53 m²
Győr
Eladó panellakás

Győr

39.99 M Ft
2 szoba
53 m²
Győr
Eladó panellakás

Győr

47.5 M Ft
3 szoba
53 m²
Győr
Eladó panellakás

Győr

51 M Ft
2 szoba
51 m²
Győr
Eladó panellakás

Győr

69.99 M Ft
2 + 1 szoba
74 m²
Győr
Eladó panellakás

Győr

44.9 M Ft
2 szoba
49 m²
Győr
Eladó panellakás

Győr

69.99 M Ft
2 + 1 szoba
74 m²
Győr
Eladó panellakás

Győr

55 M Ft
3 szoba
63 m²
Győr, Adyváros, Ifjúság körút
Eladó panellakás

Győr

45 M Ft
2 szoba
53 m²
Győr
Eladó panellakás

Győr

46.9 M Ft
1 + 2 szoba
53 m²
Győr
Eladó panellakás

Győr

49.9 M Ft
2 szoba
54 m²
Győr
Eladó panellakás

Győr

48.9 M Ft
2 szoba
53 m²
Győr
Eladó panellakás

Győr

55 M Ft
3 szoba
63 m²
Mosonmagyaróvár
Eladó panellakás

Mosonmagyaróvár

39.9 M Ft
2 szoba
49 m²
Győr
Eladó panellakás

Győr

51 M Ft
2 szoba
51 m²

Falusi CSOK ingatlanok

Magyarkeszi
Eladó családi ház

Magyarkeszi

29.5 M Ft
3 + 1 szoba
80 m²
Somogygeszti
Eladó családi ház

Somogygeszti

38.6 M Ft
3 + 1 szoba
98 m²
Bag
Eladó ikerház

Bag

93 M Ft
3 szoba
67 m²
Balatonakali
Eladó ikerház

Balatonakali

550 M Ft
4 szoba
94 m²
Elek
Eladó családi ház

Elek

18 M Ft
4 szoba
180 m²
Pénzesgyőr
Eladó családi ház

Pénzesgyőr

83.9 M Ft
5 + 1 szoba
135 m²
Nemesszentandrás
Eladó családi ház

Nemesszentandrás

68 M Ft
4 szoba
164 m²
Balatonőszöd
Eladó téglalakás

Balatonőszöd

167 M Ft
4 szoba
81 m²