NapForrás 20 - Buda

Eladó panellakás
Budapest, XIX. kerület, 7. emelet

+ 6 kép 1/9
72 000 000 Ft72 M Ft 1 358 491 Ft/m2
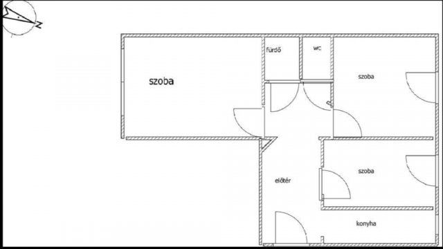
2 + 1 szoba
53 m2
7. emelet
építés éve:1990

Részletes adatok

Állapot: Felújított
Fűtés: Távfűtés
Extrák: Lift
Energetikai besorolás: Nem adta meg a hirdető

Az OTP Bank lakáshitel ajánlataFizetett hirdetés

+36 70 941
Terjék Nikolett Erzsébet
OTP Ingatlanpont Dunaharaszti

Érdekel az OTP Bank kedvezményes lakáshitel ajánlata? *

* A kérdésre „Igen” válasz bejelölése esetén, az „Üzenet küldése” gombra kattintva kijelentem, hogy az OTP Bank Nyrt. Adatkezelési tájékoztatójának tartalmát megismertem és tudomásul vettem.

Eladó panellakás leírása

Eladó ******Kispest*****3 szobás lakás****3%- os hitel!!!!

Eladásra kínálok Kispest szívében, egy 53 m2-es, 2 +1 szobás, loggiás ,7.emeleti világos lakást!
Gyönyörűen felújított, IKEA bútorokkal ízlésesen berendezett, modern burkolatokkal, új konyhabútorral és berendezési tárgyakkal ellátott, igényes otthon! Délkeleti fekvésű a nagyobb szoba, de a két kisebb szoba délnyugati, mindegyiken ablak, így a lakás mindig fényben úszik.
A loggia a kisgyermekek miatt védőhálózott. Külön wc és fürdőszoba van. A konyhában a tűzhely és a sütő is villany,szintén Ikeás.
A beépített gardróbok, cipőtárolók, a nappali bútor a leendő vevő igénye szerint mind maradhatnak,a tulajdonossal egyeztetve megvásárolhatók.
A környék telis tele óvodákkal, bölcsikkel, játszótérrel, parkokkal, bevásárlási lehetőségekkel.
A házban Telekom és Digi is elérhető.
A közös költség 27.000,-a vízzel és szeméttel, jelenleg extra csomaggal,extra fogyasztási lehetőséggel. 4 vízórával ellátott. Panel program folyamatban. Fűtés, villany kb.22.000,-.
Csendes, békés ház, jó szomszédok!!

Remek lehetőség kisgyermekeseknek, home officeban dolgozóknak, új otthont keresőknek, kiscsaládosoknak,de befektetésnek sem utolsó!! A beköltözés gyorsan megoldható!

Teljeskörű hitel ügyintézéssel és ügyvédi háttérrel biztosítjuk a leendő tulajdonosok gyors, minden igényt kielégítő ingatlan vásárlását!
Kérdéseivel és megtekintési szándékával forduljon hozzám bizalommal!
Az ingatlan kevés, igény szerint rendezhető hitellel terhelt, de 3% otthon Start és egyéb hitelre is alkalmas .

Hirdetés feltöltve: 2025. 10. 09. Utoljára módosítva: 2025. 11. 05.

3 szobás panellakások ára Budapesten

Ebből az összehasonlításból megtudhatod, hogyan viszonyul a lakás ára a környékbeli panellakások átlagos árához. Ez nem azt jelenti, hogy ennyivel olcsóbb vagy drágább, mint amennyit a lakás ér, hanem hogy ennyivel tér el a környékbeli átlagtól.

Ennek a m² ára
XIX. kerület m² ár
Budapest m² ár
1358 e Ft
1199 e Ft -13%
1162 e Ft -17%
Ennek az ára
XIX. kerület átlagár
Budapest átlagár
72 M Ft m Ft
66.7 m Ft -8%
74.9 m Ft 4%

Az ingatlan elhelyezkedése

Cím: Budapest, XIX. kerület, 7. emelet

Eladó ingatlanok a környékről

Eladó téglalakás
Eladó téglalakás

XII. kerület

175 M Ft
3 szoba
82 m2
Eladó panellakás
Eladó panellakás

XIX. kerület

65 M Ft
1 + 2 szoba
59 m2
Eladó panellakás
Eladó panellakás

XIX. kerület

73 M Ft
3 szoba
62 m2
Eladó panellakás
Eladó panellakás

XIX. kerület

56 M Ft
1 + 2 szoba
59 m2
Eladó panellakás
Eladó panellakás

XIX. kerület, Kispest

56 M Ft
1 + 2 szoba
59 m2
Eladó téglalakás
Eladó téglalakás

XVI. kerület

86 M Ft
3 szoba
59 m2
Eladó panellakás
Eladó panellakás

XIX. kerület

84.9 M Ft
2 + 2 szoba
82 m2
Eladó panellakás
Eladó panellakás

XIX. kerület

73.4 M Ft
1 + 2 szoba
53 m2
Eladó panellakás
Eladó panellakás

XIX. kerület

65 M Ft
1 + 2 szoba
59 m2
Eladó családi ház
Eladó családi ház

IV. kerület

98 M Ft
4 + 1 szoba
94 m2
Eladó téglalakás
Eladó téglalakás

III. kerület, Táborhegy

199.9 M Ft
4 szoba
115 m2
Eladó családi ház
Eladó családi ház

XX. kerület

115 M Ft
5 szoba
126 m2
Eladó panellakás
Eladó panellakás

XIX. kerület

84.9 M Ft
2 + 2 szoba
82 m2
Eladó téglalakás
Eladó téglalakás

XIX. kerület

74.296 M Ft
2 szoba
42 m2
Eladó téglalakás
Eladó téglalakás

VIII. kerület

95 M Ft
3 szoba
73 m2
Eladó panellakás
Eladó panellakás

XIX. kerület

56 M Ft
1 + 2 szoba
59 m2
Eladó panellakás
Eladó panellakás

XIX. kerület, Kispest

73 M Ft
3 szoba
62 m2
Eladó panellakás
Eladó panellakás

XIX. kerület

59.9 M Ft
2 + 1 szoba
53 m2
Eladó téglalakás
Eladó téglalakás

XIV. kerület

60.5 M Ft
2 szoba
41 m2
Eladó családi ház
Eladó családi ház

XVII. kerület

137.5 M Ft
3 szoba
98 m2
Eladó panellakás
Eladó panellakás

XV. kerület, Újpalota

76.6 M Ft
3 szoba
65 m2
Eladó téglalakás
Eladó téglalakás

XI. kerület

168.9 M Ft
3 szoba
80 m2
Eladó panellakás
Eladó panellakás

XIX. kerület

74.9 M Ft
3 + 1 szoba
75 m2
Eladó panellakás
Eladó panellakás

XIX. kerület

73.4 M Ft
1 + 2 szoba
53 m2

Falusi CSOK ingatlanok

Eladó családi ház
Eladó családi ház

Berzence

69.9 M Ft
6 szoba
257 m2
Eladó családi ház
Eladó családi ház

Kunágota

15.5 M Ft
2 + 1 szoba
102 m2
Eladó családi ház
Eladó családi ház

Nagybörzsöny

39.9 M Ft
2 + 1 szoba
74 m2
Eladó téglalakás
Eladó téglalakás

Fertőszentmiklós

74.9 M Ft
2 szoba
75 m2
Eladó családi ház
Eladó családi ház

Balatonkeresztúr

117 M Ft
3 + 2 szoba
154 m2
Eladó családi ház
Eladó családi ház

Badacsonytomaj

199.8 M Ft
3 szoba
166 m2
Eladó családi ház
Eladó családi ház

Bőny

18.9 M Ft
2 szoba
50 m2
Eladó családi ház
Eladó családi ház

Nagyberény

24.9 M Ft
3 szoba
62 m2