BAM Living

Eladó panellakás
Budapest, XIX. kerület, Kispest, 7. emelet

+ 6 kép 1/9
72 000 000 Ft72 M Ft 1 358 491 Ft/m2
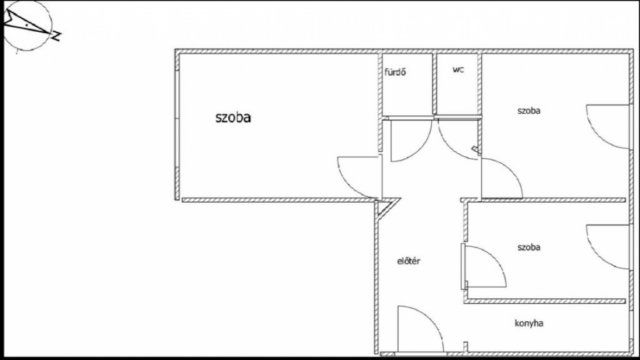
2 + 1 szoba
53 m2
7. emelet
építés éve:1990

Részletes adatok

Állapot: Felújított
Fűtés: Távfűtés
Extrák: Lift
Energetikai besorolás: Nem adta meg a hirdető

Az OTP Bank lakáshitel ajánlataFizetett hirdetés

+36 20 371
Antal Enikő
referens

Érdekel az OTP Bank kedvezményes lakáshitel ajánlata? *

* A kérdésre „Igen” válasz bejelölése esetén, az „Üzenet küldése” gombra kattintva kijelentem, hogy az OTP Bank Nyrt. Adatkezelési tájékoztatójának tartalmát megismertem és tudomásul vettem.

Eladó panellakás leírása

Eladásra kínálok Kispest szívében, egy 53 nm-es, 2 +1 szobás, loggiás, VII.emeleti világos lakást!

Gyönyörűen felújított, IKEA bútorokkal ízlésesen berendezett, modern burkolatokkal, új konyhabútorral és berendezési tárgyakkal ellátott, igényes otthon!

Délkeleti fekvésű a nagyobb szoba, de a két kisebb szoba délnyugati, mindegyiken ablak, így a lakás mindig fényben úszik.

A loggia a kisgyermekek miatt védőhálózott.

Külön wc és fürdőszoba van.
A konyhában a tűzhely és a sütő is villany, szintén Ikeás.

A beépített gardróbok, cipőtárolók, a nappali bútor a leendő vevő igénye szerint mind maradhatnak,a tulajdonossal egyeztetve megvásárolhatók.

A környék telis tele óvodákkal, bölcsikkel, játszótérrel, parkokkal, bevásárlási lehetőségekkel.

A házban Telekom és Digi is elérhető.

4 vízórával ellátott. Panel program folyamatban.
Csendes, békés ház, jó szomszédok!

A beköltözés gyorsan megoldható!

Lépjen kapcsolatba velünk még ma és fedezze fel az ingatlan által kínált lehetőségeket!
Elégedett vásárlóink bíznak bennünk - Ön is közéjük tartozhat!

Az OTP Ingatlanpont teljes körű ügyintézéssel áll az eladók és a vevők rendelkezésére! A kínálatunkból választott ingatlan finanszírozásához kedvezményes hitelt - és megoldásokat kínálunk. Az adásvételi szerződés megkötéséhez igény szerint megbízható ügyvédi közreműködést biztosítunk, és segítséget nyújtunk az adásvételhez kapcsolódó ügyek intézéséhez. Ha felkeltette ez a lakás az érdeklődését, hívjon bizalommal!
Antal Enikő
+36/20-371-2105

Hirdetés feltöltve: 2025. 10. 05. Utoljára módosítva: 2025. 10. 28.

3 szobás panellakások ára Budapesten

Ebből az összehasonlításból megtudhatod, hogyan viszonyul a lakás ára a környékbeli panellakások átlagos árához. Ez nem azt jelenti, hogy ennyivel olcsóbb vagy drágább, mint amennyit a lakás ér, hanem hogy ennyivel tér el a környékbeli átlagtól.

Ennek a m² ára
Kispest m² ár
XIX. kerület m² ár
Budapest m² ár
1358 e Ft
1127 e Ft -21%
1200 e Ft -13%
1170 e Ft -16%
Ennek az ára
Kispest átlagár
XIX. kerület átlagár
Budapest átlagár
72 M Ft m Ft
65.1 m Ft -11%
67.2 m Ft -7%
75.4 m Ft 5%

Az ingatlan elhelyezkedése

Cím: Budapest, XIX. kerület, Kispest, 7. emelet

Eladó ingatlanok a környékről

Eladó panellakás
Eladó panellakás

XIX. kerület

65 M Ft
1 + 2 szoba
59 m2
Eladó téglalakás
Eladó téglalakás

III. kerület, Óbuda, Szomolnok utca

89.9 M Ft
2 + 2 szoba
96 m2
Eladó téglalakás
Eladó téglalakás

VII. kerület, Belső Erzsébetváros, Rózsa utca

185 M Ft
5 szoba
124 m2
Eladó téglalakás
Eladó téglalakás

V. kerület, Belváros, Belgrád rakpart

78 M Ft
1 + 1 szoba
42 m2
Eladó családi ház
Eladó családi ház

XXII. kerület, Budafok, Baross utca

239 M Ft
6 + 1 szoba
200 m2
Eladó panellakás
Eladó panellakás

XIX. kerület

84.9 M Ft
2 + 2 szoba
82 m2
Eladó családi ház
Eladó családi ház

XVI. kerület, Rákosszentmihály

124.99 M Ft
3 szoba
77 m2
Eladó panellakás
Eladó panellakás

XIX. kerület

84.9 M Ft
2 + 2 szoba
82 m2
Eladó panellakás
Eladó panellakás

XIX. kerület

56 M Ft
1 + 2 szoba
59 m2
Eladó panellakás
Eladó panellakás

XIX. kerület, Kispest

64.9 M Ft
3 szoba
60 m2
Eladó családi ház
Eladó családi ház

XII. kerület

235 M Ft
4 szoba
180 m2
Eladó panellakás
Eladó panellakás

XIX. kerület, Kispest

65 M Ft
1 + 2 szoba
59 m2
Eladó ikerház
Eladó ikerház

XVI. kerület, Cinkota

124.9 M Ft
4 szoba
90 m2
Eladó téglalakás
Eladó téglalakás

VI. kerület, Külső Terézváros, Szófia utca

119.9 M Ft
4 szoba
103 m2
Eladó panellakás
Eladó panellakás

XIX. kerület, Kispest, Fő utca

73.4 M Ft
1 + 2 szoba
53 m2
Eladó panellakás
Eladó panellakás

XIX. kerület, Kispest

56 M Ft
1 + 2 szoba
59 m2
Eladó panellakás
Eladó panellakás

XIX. kerület

84.9 M Ft
2 + 2 szoba
82 m2
Eladó téglalakás
Eladó téglalakás

III. kerület, Rómaifürdő, Királyok útja

148 M Ft
3 szoba
65 m2
Eladó panellakás
Eladó panellakás

XIX. kerület

84.9 M Ft
2 + 2 szoba
82 m2
Eladó téglalakás
Eladó téglalakás

VI. kerület, Külső Terézváros, Szív utca

119.5 M Ft
3 szoba
94 m2
Eladó téglalakás
Eladó téglalakás

I. kerület, Víziváros, Batthyány utca

135 M Ft
3 + 1 szoba
85 m2
Eladó panellakás
Eladó panellakás

XIX. kerület

59.9 M Ft
2 + 1 szoba
53 m2
Eladó téglalakás
Eladó téglalakás

VIII. kerület

82 M Ft
2 szoba
72 m2
Eladó családi ház
Eladó családi ház

XVI. kerület, Rákosszentmihály

129.9 M Ft
5 szoba
200 m2

Falusi CSOK ingatlanok

Eladó családi ház
Eladó családi ház

Egyed

24.9 M Ft
2 + 1 szoba
56 m2
Eladó családi ház
Eladó családi ház

Geresdlak

44.9 M Ft
4 + 1 szoba
200 m2
Eladó családi ház
Eladó családi ház

Rábaszentmihály

65 M Ft
3 szoba
156 m2
Eladó családi ház
Eladó családi ház

Szalánta

149.9 M Ft
10 szoba
301 m2
Eladó családi ház
Eladó családi ház

Balatonkenese

99.8 M Ft
5 szoba
138 m2
Eladó családi ház
Eladó családi ház

Recsk

21 M Ft
4 szoba
220 m2
Eladó családi ház
Eladó családi ház

Harsány

51.9 M Ft
5 szoba
140 m2
Eladó családi ház
Eladó családi ház

Mezőlak, Arany János utca

35.7 M Ft
3 szoba
104 m2