Astora Márvány8

Eladó panellakás
Budapest, XIV. kerület, félemelet

+ 17 kép 1/20
62 900 000 Ft62.9 M Ft 1 283 673 Ft/m2
1 + 1 szoba
49 m²
félemelet
építés éve:1977

Részletes adatok

Fűtés: Távfűtés
Emelet: félemelet
Extrák: Lift
Energetikai besorolás: Nem adta meg a hirdető

Az OTP Bank lakáshitel ajánlataFizetett hirdetés

+36 30 478
Kostyánszki Éva
referens

Érdekel az OTP Bank kedvezményes lakáshitel ajánlata? *

* A kérdésre „Igen” válasz bejelölése esetén, az „Üzenet küldése” gombra kattintva kijelentem, hogy az OTP Bank Nyrt. Adatkezelési tájékoztatójának tartalmát megismertem és tudomásul vettem.

Eladó panellakás leírása

ÁRCSÖKKENÉS! KIVÁLÓ ÁR_ÉRTÉK ARÁNY!

Világos, erkélyes 49nm -es lakás eladó a XIV. kerület egyik legkedveltebb részén – a Füredi lakótelepen!

Nyugati fekvésének köszönhetően világos, a 3 m²-es loggia pedig kellemes plusz tér egy kávéhoz vagy esti pihenéshez.

Ha egy jó elosztású, akár azonnal kiadható lakást keresel zöld környezetben, kiváló közlekedéssel, ezt érdemes megnézni.
________________________________________

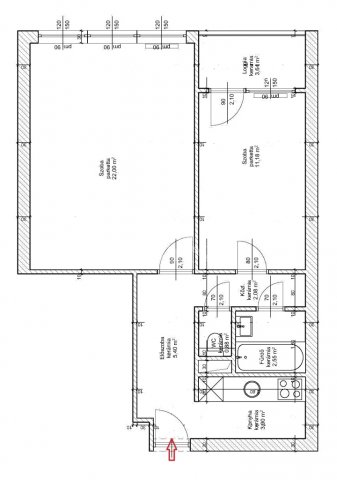
Lakás jellemzői
• 49 m² alapterület
• 2 külön és egyben nyíló szoba
• 3 m²-es loggia
• Nyugati fekvés – világos lakás
• 2,7 m belmagasság
• Jó állapot
• Szabályozható távfűtés → kedvező rezsi
• Per- és tehermentes

A lakás praktikus elosztású:
egy L alakú előtérből minden helyiség külön nyílik.
Konyha, külön WC, fürdőszoba, valamint két szoba, melyek közül a kisebbhez loggia kapcsolódik.
________________________________________
Társasház
• 10 emeletes, panelprogramos épület
• Lift
• Rendezett lépcsőház
• Szintenként közös tároló
• Számkódos beléptetés
________________________________________
Környék
Zöld környezettel, parkokkal és játszóterekkel.

A közelben:
Spar, ALDI
Sugár, Árkád
IKEA
éttermek, pékségek
iskola, óvoda, posta, gyógyszertár
________________________________________
Közlekedés
Nagyon jó:
80-as troli
M2 metró pár perc
több buszjárat
Rákosfalva HÉV könnyen elérhető
________________________________________
Parkolás: a ház körül ingyenesen.
________________________________________
Ideális választás:
• első lakásnak
• egyedülállóknak
• pároknak
• vagy akár kiadásra is

Ha kiadásban gondolkodik az ingatlan jelenleg is bérbe van adva, így akár azonnali hozamot biztosít!

Kérdés, illetve megtekintés esetén forduljon hozzám bizalommal! ...TOVÁBBI, TÖBBEZRES INGATLAN KÍNÁLAT: www.gdn-ingatlan.hu - GDN azonosító: 393367

Hirdetés feltöltve: 2026. 04. 29.

2 szobás panellakások ára Budapesten

Ebből az összehasonlításból megtudhatod, hogyan viszonyul a lakás ára a környékbeli panellakások átlagos árához. Ez nem azt jelenti, hogy ennyivel olcsóbb vagy drágább, mint amennyit a lakás ér, hanem hogy ennyivel tér el a környékbeli átlagtól.

Ennek a m² ára
XIV. kerület m² ár
Budapest m² ár
1284 e Ft
1371 e Ft 6%
1352 e Ft 5%
Ennek az ára
XIV. kerület átlagár
Budapest átlagár
62.9 M Ft m Ft
64.8 m Ft 3%
65 m Ft 3%

Az ingatlan elhelyezkedése

Cím: Budapest, XIV. kerület, félemelet

Eladó ingatlanok a környékről

XIV. kerület, Rákosfalva, Szentmihályi út
Eladó panellakás

Budapest, XIV. kerület

59.9 M Ft
2 szoba
46 m²
XIV. kerület
Eladó panellakás

Budapest, XIV. kerület

61.5 M Ft
2 szoba
46 m²
XVIII. kerület
Eladó családi ház

Budapest, XVIII. kerület

89.9 M Ft
3 szoba
78 m²
XX. kerület
Eladó családi ház

Budapest, XX. kerület

99.9 M Ft
4 szoba
96 m²
XIV. kerület, Alsórákos
Eladó panellakás

Budapest, XIV. kerület

74.8 M Ft
2 szoba
53 m²
XIV. kerület
Eladó panellakás

Budapest, XIV. kerület

74.9 M Ft
2 szoba
49 m²
XVII. kerület
Eladó panellakás

Budapest, XVII. kerület

69.9 M Ft
4 szoba
73 m²
XVIII. kerület
Eladó ikerház

Budapest, XVIII. kerület

97 M Ft
4 szoba
190 m²
XIV. kerület
Eladó téglalakás

Budapest, XIV. kerület

92.5 M Ft
3 szoba
64 m²
XIV. kerület
Eladó panellakás

Budapest, XIV. kerület

95 M Ft
2 + 1 szoba
63 m²
XI. kerület
Eladó panellakás

Budapest, XI. kerület

83.5 M Ft
2 szoba
59 m²
XIX. kerület
Eladó családi ház

Budapest, XIX. kerület

75 M Ft
4 szoba
82 m²
XIV. kerület
Eladó panellakás

Budapest, XIV. kerület

61.5 M Ft
2 szoba
46 m²
XIV. kerület
Eladó panellakás

Budapest, XIV. kerület

74.9 M Ft
2 szoba
49 m²
XIV. kerület
Eladó panellakás

Budapest, XIV. kerület

74.9 M Ft
2 szoba
49 m²
XIV. kerület
Eladó panellakás

Budapest, XIV. kerület

74.9 M Ft
2 szoba
49 m²
XIV. kerület
Eladó panellakás

Budapest, XIV. kerület

89.9 M Ft
3 szoba
68 m²
XIV. kerület
Eladó panellakás

Budapest, XIV. kerület

74.9 M Ft
2 szoba
49 m²
XVII. kerület
Eladó téglalakás

Budapest, XVII. kerület

72 M Ft
4 szoba
62 m²
XIV. kerület
Eladó családi ház

Budapest, XIV. kerület

225 M Ft
7 szoba
229 m²
XVIII. kerület
Eladó családi ház

Budapest, XVIII. kerület

75 M Ft
3 szoba
65 m²
XXI. kerület
Eladó üzlethelyiség

Budapest, XXI. kerület

690 M Ft
1670 m²
VII. kerület
Eladó téglalakás

Budapest, VII. kerület

79.9 M Ft
3 szoba
72 m²
XIV. kerület
Eladó panellakás

Budapest, XIV. kerület

78.999 M Ft
2 szoba
50 m²

Falusi CSOK ingatlanok

Dunavecse
Eladó családi ház

Dunavecse

49 M Ft
3 szoba
93 m²
Bácsbokod
Eladó családi ház

Bácsbokod

55 M Ft
6 szoba
250 m²
Balatonkeresztúr, Kanizsai utca
Eladó ikerház

Balatonkeresztúr

32.9 M Ft
3 szoba
30 m²
Gesztely
Eladó családi ház

Gesztely

12.5 M Ft
3 szoba
65 m²
Sály, Kossuth Lajos 128
Eladó családi ház

Sály

28.875 M Ft
6 szoba
160 m²
Villány
Eladó családi ház

Villány

65 M Ft
3 szoba
95 m²
Batyk, Dózsa György utca
Eladó családi ház

Batyk

22 M Ft
5 szoba
94 m²
Tornyiszentmiklós, Kossuth Lajos utca
Eladó családi ház

Tornyiszentmiklós

29.9 M Ft
3 szoba
110 m²