Avico Greentop

Eladó panellakás
Budapest, XIV. kerület, földszint

+ 4 kép 1/7
64 900 000 Ft64.9 M Ft 1 324 490 Ft/m2
2 szoba
49 m²
földszint
építés éve:1980

Részletes adatok

Fűtés: Távfűtés
Emelet: földszint
Extrák: Lift
Energetikai besorolás: Nem adta meg a hirdető

Az OTP Bank lakáshitel ajánlataFizetett hirdetés

+36 70 675
Fodor Zoltán
referens

Érdekel az OTP Bank kedvezményes lakáshitel ajánlata? *

* A kérdésre „Igen” válasz bejelölése esetén, az „Üzenet küldése” gombra kattintva kijelentem, hogy az OTP Bank Nyrt. Adatkezelési tájékoztatójának tartalmát megismertem és tudomásul vettem.

Eladó panellakás leírása

XIV. kerület, Füredi lakótelep: saját kényelem vagy azonnali hozam az Ond vezér útján!

Eladásra kínálunk a XIV. kerület egyik legkeresettebb részén, a Füredi lakótelepen egy 49 m2-es, 2 szobás, loggiás, jó állapotú panellakást. Az ingatlan egy panelprogramon átesett, liftes társasház magasföldszintjén található, nyugati fekvésének köszönhetően pedig rendkívül világos.

Befektetők figyelem!
Az ingatlan jelenleg is megbízható bérlők által lakott, akik az adásvétel után is szívesen maradnának. Ez kiváló lehetőség azoknak, akik azonnali hozamot keresnek, hiszen a beköltözhetővé tétel vagy bérlőkeresés költségei és ideje megspórolhatóak. Stabil kereslet, biztos megtérülés!

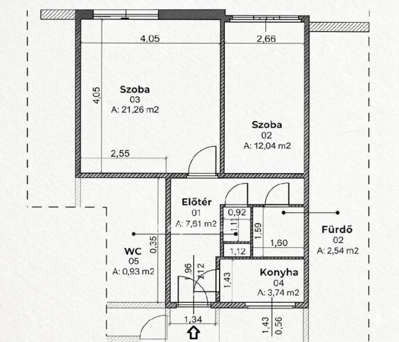
A lakás belső elrendezése:
A lakásba belépve egy praktikus, L alakú előtérbe érkezünk, ahonnan minden helyiség külön megközelíthető. Jobbra található a világos konyha, valamint a különálló WC és fürdőszoba. A közlekedő végén helyezkedik el a két tágas szoba; a kisebbik szobából közvetlen kijárás nyílik a nyugati fekvésű loggiára, amely ideális helyszín az esti kikapcsolódáshoz.

A társasház és a környezet:
A 10 emeletes társasház tiszta, rendezett, liftes és számkódos beléptetőrendszerrel védett. A környék igazi zöldövezeti paradicsom: parkok, játszóterek és sétatávolságra lévő kikapcsolódási lehetőségek jellemzik a Füredi lakótelepet.

Infrastruktúra és közlekedés:
A lokáció párját ritkítja, hiszen minden karnyújtásnyira van, amire a hétköznapokban szükség lehet:
Vásárlás: Árkád, Sugár, IKEA, ALDI, SPAR, pékségek és éttermek.
Szolgáltatások: Óvoda, iskola, posta, gyógyszertár a közvetlen közelben.
Közlekedés: A 80-as troli megállója szinte a ház előtt, az M2-es metró (Örs vezér tere) mindössze 2 megálló. A HÉV és számos buszjárat szintén könnyen elérhető, így a város bármely pontja gyorsan megközelíthető.

Ne maradjon le erről a remek lehetőségről! Akár saját otthonnak, akár kiadásra keres ingatlant, ez a lakás minden szempontból jó döntés.

Az OTP Ingatlanpont teljes körű ügyintézéssel áll az eladók és a vevők rendelkezésére. A kínálatunkból választott ingatlan finanszírozásához kedvezményes hitelkonstrukciót kínálunk. Az adásvételi szerződés megkötéséhez igény szerint megbízható ügyvédi közreműködést biztosítunk, és segítséget nyújtunk az adásvételhez kapcsolódó ügyek intézéséhez is.

Referencia szám: M325598

Hirdetés feltöltve: 2026. 04. 02.

2 szobás panellakások ára Budapesten

Ebből az összehasonlításból megtudhatod, hogyan viszonyul a lakás ára a környékbeli panellakások átlagos árához. Ez nem azt jelenti, hogy ennyivel olcsóbb vagy drágább, mint amennyit a lakás ér, hanem hogy ennyivel tér el a környékbeli átlagtól.

Ennek a m² ára
XIV. kerület m² ár
Budapest m² ár
1324 e Ft
1382 e Ft 4%
1133 e Ft -17%
Ennek az ára
XIV. kerület átlagár
Budapest átlagár
64.9 M Ft m Ft
65.1 m Ft 0%
135.6 m Ft 52%

Az ingatlan elhelyezkedése

Cím: Budapest, XIV. kerület, földszint

Eladó ingatlanok a környékről

VII. kerület, Külső Erzsébetváros, Péterfy Sándor utca 34
Eladó téglalakás

Budapest, VII. kerület

76.878 M Ft
1 + 1 szoba
41 m²
XIV. kerület
Eladó panellakás

Budapest, XIV. kerület

74.9 M Ft
2 szoba
49 m²
VII. kerület, Külső Erzsébetváros, Péterfy Sándor utca 34
Eladó téglalakás

Budapest, VII. kerület

123.3 M Ft
1 + 2 szoba
68 m²
VII. kerület, Külső Erzsébetváros, Péterfy Sándor utca 34
Eladó téglalakás

Budapest, VII. kerület

92.329 M Ft
2 szoba
46 m²
XIV. kerület
Eladó panellakás

Budapest, XIV. kerület

65.2 M Ft
2 szoba
46 m²
XXI. kerület
Eladó panellakás

Budapest, XXI. kerület

69.9 M Ft
1 + 2 szoba
58 m²
XVII. kerület
Eladó családi ház

Budapest, XVII. kerület

116 M Ft
2 szoba
70 m²
XIV. kerület
Eladó panellakás

Budapest, XIV. kerület

74.2 M Ft
2 szoba
50 m²
VII. kerület, Külső Erzsébetváros, Péterfy Sándor utca 34
Eladó téglalakás

Budapest, VII. kerület

97.9 M Ft
1 + 1 szoba
46 m²
XIV. kerület
Eladó panellakás

Budapest, XIV. kerület

74.9 M Ft
2 szoba
49 m²
XIV. kerület
Eladó panellakás

Budapest, XIV. kerület

65.2 M Ft
2 szoba
46 m²
VII. kerület, Külső Erzsébetváros, Péterfy Sándor utca 34
Eladó téglalakás

Budapest, VII. kerület

123.3 M Ft
1 + 2 szoba
68 m²
XIV. kerület
Eladó panellakás

Budapest, XIV. kerület

69 M Ft
2 szoba
50 m²
XIX. kerület
Eladó családi ház

Budapest, XIX. kerület

84.9 M Ft
2 + 1 szoba
73 m²
XIV. kerület
Eladó panellakás

Budapest, XIV. kerület

65.2 M Ft
2 szoba
46 m²
XIV. kerület
Eladó panellakás

Budapest, XIV. kerület

95 M Ft
2 + 1 szoba
63 m²
XIV. kerület, Rákosfalva, Szentmihályi út
Eladó panellakás

Budapest, XIV. kerület

59.9 M Ft
2 szoba
46 m²
XVII. kerület
Eladó családi ház

Budapest, XVII. kerület

95.9 M Ft
3 szoba
86 m²
VII. kerület, Külső Erzsébetváros, Péterfy Sándor utca 34
Eladó téglalakás

Budapest, VII. kerület

99.7 M Ft
1 + 1 szoba
50 m²
XIV. kerület
Eladó panellakás

Budapest, XIV. kerület

74.9 M Ft
2 szoba
49 m²
XIV. kerület
Eladó panellakás

Budapest, XIV. kerület

89.9 M Ft
3 szoba
68 m²
XIV. kerület
Eladó panellakás

Budapest, XIV. kerület

74.9 M Ft
2 szoba
49 m²
VII. kerület, Külső Erzsébetváros, Péterfy Sándor utca 34
Eladó téglalakás

Budapest, VII. kerület

80 M Ft
1 + 1 szoba
41 m²
VII. kerület, Külső Erzsébetváros, Péterfy Sándor utca 34
Eladó téglalakás

Budapest, VII. kerület

80 M Ft
1 + 1 szoba
41 m²

Falusi CSOK ingatlanok

Mezőkeresztes
Eladó ikerház

Mezőkeresztes

13.5 M Ft
2 + 1 szoba
70 m²
Vértesboglár
Eladó családi ház

Vértesboglár

56.9 M Ft
4 szoba
154 m²
Darnózseli
Eladó családi ház

Darnózseli

69.9 M Ft
4 szoba
104 m²
Pánd, Toldi Miklós utca
Eladó családi ház

Pánd

22.9 M Ft
2 szoba
60 m²
Farmos
Eladó családi ház

Farmos

59.9 M Ft
4 szoba
90 m²
Zalacsány
Eladó családi ház

Zalacsány

79.9 M Ft
4 szoba
184 m²
Tápiógyörgye
Eladó családi ház

Tápiógyörgye

24.99 M Ft
6 + 1 szoba
153 m²
Kadarkút, Körmendi utca
Eladó családi ház

Kadarkút

21 M Ft
3 szoba
82 m²