River Life

Eladó panellakás
Budapest, XIII. kerület, Újlipótváros, 1. emelet

+ 13 kép 1/16
59 900 000 Ft59.9 M Ft 1 618 919 Ft/m2
2 szoba
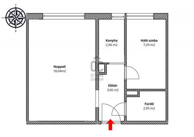
37 m2
1. emelet
építés éve:1970

Részletes adatok

Fűtés: Távfűtés
Közmű: Gáz, Villany, Csatorna
Energetikai besorolás: Nem adta meg a hirdető
Zenga Premier

Friss hirdetések, amiket nem találsz meg más ingatlankereső portálon.

Fedezd fel elsőként a Zenga Premier címkés eladó ingatlanokat!

További részletek a zenga.hu-n

Az OTP Bank lakáshitel ajánlataFizetett hirdetés

+36 70 467
Tóth Angéla
Otthon Centrum - Bicskei utca

Érdekel az OTP Bank kedvezményes lakáshitel ajánlata? *

* A kérdésre „Igen” válasz bejelölése esetén, az „Üzenet küldése” gombra kattintva kijelentem, hogy az OTP Bank Nyrt. Adatkezelési tájékoztatójának tartalmát megismertem és tudomásul vettem.

Eladó panellakás leírása

Budapest XIII. kerületének egyik legkedveltebb részén, Újlipótváros szívében, kiváló közlekedésű és remek infrastruktúrával rendelkező környéken keresi új tulajdonosát egy 37 m2-es, jó állapotú lakás. Ha logikus elosztású és kedvező fenntartású ingatlant keres, ezt feltétlenül nézze meg!

KÖRNYÉK ÉS KÖZLEKEDÉS
Budapest XIII. kerülete, Újlipótváros, Vág utca.
Központi elhelyezkedésű, jól ellátott és nagyon kedvelt, értékálló környék.
5 perc séta az M3 metró Dózsa György úti megállója, a környéken több busz és villamosjárat is elérhető.
A Vág utca nyugodt lakókörnyezetet biztosít, mégis közel van a Váci úti központi részhez.
Lidl, Spar, kisboltok, pékség és drogériák is elérhetők sétatávolságban.
Játszóterek, kisebb parkok, sportolási lehetőségek biztosítják a kellemes, családbarát környezetet.
Gyógyszertár, posta, bankok, kávézók és éttermek néhány perc alatt elérhetők.
Metróval és autóval egyaránt pár perc alatt elérhető a Nyugati, a Westend és a belváros.

TÁRSASHÁZ PARAMÉTEREI:
  1970-as években épült, 14 szintes, 2 lifttel rendelkező panel épület.
  Külső, belső homlokzata és a lépcsőháza is egyaránt jó állapotú.

 A társasház a panelprogramban részt vett.
 Lakóközössége rendezett, nyugodt, vegyes korosztály.
  A lakáshoz tartozik egy privát kapuval elzárt kocsibeálló és egy közös tároló helyiség is.
  Mindkettő az ár részét képezi, így extra költség nélkül használható.

LAKÁS ADOTTSÁGAI ÉS PARAMÉTEREI:
1. emeleti, 37 m2-es, jó állapotú, tisztasági festés után, költözhető ingatlan.
Elosztása: előszoba, ablakos konyha, nappali, hálószoba, zuhanyzós fürdőszoba.
A szobák ablakai csendes belső udvarra néznek.
A nappali keleti tájolású, a lakótér normál fényviszonyokkal rendelkezik, délelőtti órákban süt be a nap.
A nyílászárók hőszigetelő műanyagra lettek cserélve.
A szobák laminált parkettával, az előszoba, konyha és a fürdőszoba járólappal burkolt.
A hálószobában hatalmas beépített szekrény segíti a tárolást.
Közös költség 8400 Ft / hó, a fenntartási költségek kedvezők.
Fűtést és a melegvíz előállítását távfűtés biztosítja.

AZ INGATLAN MEGTEKINTHETŐ:
személyesen,
ONLINE személyes bemutatással.

FINANSZÍROZÁSBAN ONLINE ÜGYINTÉZÉSSEL IS SEGÍTÜNK:
Bank-független hitelcenterünk díjmentesen versenyezteti minden bank és hitelintézet ajánlatát.
Önnek nincs más dolga, mint beszélgetni munkatársunkkal, majd a megversenyeztetett ajánlatokból kiválasztani a hosszútávon is a legmegfelelőbb konstrukciót.
Szakértőink 20 éves szakmai tapasztalattal és egyedi igényekre szabott, fogyasztóbarát lakáshitelekkel, babaváró hitellel, teljes körű CSOK PLUSZ és OTTHON START program ügyintézéssel várják Önt.
Előre egyeztetve akár a normál munkaidő után is.

Az ingatlan kiváló elhelyezkedésének köszönhetően igazán sok lehetőséget rejt magában. Akár saját részre, akár befektetésként, ezt mindenképp érdemes megnéznie!

VÁROM HÍVÁSÁT a hét minden napján!

Ez az ingatlan a "Felező csomag" megbízási portfólióhoz tartozik. Részletek az Otthon Centrum weboldalán.

Hirdetés feltöltve: 2025. 11. 17.

2 szobás panellakások ára Budapesten

Ebből az összehasonlításból megtudhatod, hogyan viszonyul a lakás ára a környékbeli panellakások átlagos árához. Ez nem azt jelenti, hogy ennyivel olcsóbb vagy drágább, mint amennyit a lakás ér, hanem hogy ennyivel tér el a környékbeli átlagtól.

Ennek a m² ára
Újlipótváros m² ár
XIII. kerület m² ár
Budapest m² ár
1619 e Ft
1420 e Ft -14%
1314 e Ft -23%
1346 e Ft -20%
Ennek az ára
Újlipótváros átlagár
XIII. kerület átlagár
Budapest átlagár
59.9 M Ft m Ft
83.4 m Ft 28%
83 m Ft 28%
63.4 m Ft 5%

Az ingatlan elhelyezkedése

Cím: Budapest, XIII. kerület, Újlipótváros, 1. emelet

Eladó ingatlanok a környékről

Eladó téglalakás
Eladó téglalakás

VI. kerület

65 M Ft
3 szoba
66 m2
Eladó panellakás
Eladó panellakás

XIII. kerület, Angyalföld

79.5 M Ft
4 szoba
87 m2
Eladó panellakás
Eladó panellakás

XIII. kerület

89.5 M Ft
3 szoba
68 m2
Eladó panellakás
Eladó panellakás

XIII. kerület

79.5 M Ft
4 szoba
87 m2
Eladó téglalakás
Eladó téglalakás

VIII. kerület, Józsefváros, Kálvária tér

79 M Ft
2 szoba
73 m2
Eladó panellakás
Eladó panellakás

XIII. kerület, Vizafogó

104.7 M Ft
3 szoba
69 m2
Eladó panellakás
Eladó panellakás

XIII. kerület

44.9 M Ft
1 + 1 szoba
35 m2
Eladó panellakás
Eladó panellakás

XIII. kerület, Újlipótváros

89.9 M Ft
3 szoba
68 m2
Eladó panellakás
Eladó panellakás

XIII. kerület

89.5 M Ft
3 szoba
68 m2
Eladó családi ház
Eladó családi ház

XIV. kerület, Kiszugló

125 M Ft
3 szoba
100 m2
Eladó téglalakás
Eladó téglalakás

VIII. kerület, M4 közeli, Népszínház utca

119 M Ft
5 + 1 szoba
123 m2
Eladó panellakás
Eladó panellakás

XXI. kerület, Szabótelep, Szabótelep

77 M Ft
3 szoba
61 m2
Eladó panellakás
Eladó panellakás

XIII. kerület

72.9 M Ft
2 szoba
59 m2
Eladó panellakás
Eladó panellakás

XIII. kerület, Angyalföld

79.5 M Ft
4 szoba
87 m2
Eladó panellakás
Eladó panellakás

XIII. kerület, Angyalföld

79.5 M Ft
4 szoba
87 m2
Eladó panellakás
Eladó panellakás

XIII. kerület, Angyalföld

89 M Ft
3 szoba
53 m2
Eladó téglalakás
Eladó téglalakás

III. kerület

80 M Ft
2 szoba
36 m2
Eladó panellakás
Eladó panellakás

XIII. kerület

79.5 M Ft
4 szoba
87 m2
Eladó panellakás
Eladó panellakás

XI. kerület

71.9 M Ft
2 szoba
49 m2
Eladó ikerház
Eladó ikerház

XXI. kerület, Királyerdő

78.9 M Ft
3 szoba
68 m2
Eladó téglalakás
Eladó téglalakás

XIV. kerület, Vezseny u

62 M Ft
2 szoba
49 m2
Eladó téglalakás
Eladó téglalakás

IX. kerület, Ferencváros, Berzenczey utca

79.99 M Ft
2 szoba
58 m2
Eladó panellakás
Eladó panellakás

XIII. kerület

83.5 M Ft
1 + 2 szoba
58 m2
Eladó téglalakás
Eladó téglalakás

II. kerület

336.64 M Ft
3 szoba
80 m2

Falusi CSOK ingatlanok

Eladó családi ház
Eladó családi ház

Pétfürdő

48 M Ft
2 szoba
55 m2
Eladó családi ház
Eladó családi ház

Bogács

79.5 M Ft
6 szoba
180 m2
Eladó családi ház
Eladó családi ház

Orci

119.9 M Ft
6 szoba
200 m2
Eladó családi ház
Eladó családi ház

Szűcsi

34.9 M Ft
6 + 1 szoba
128 m2
Eladó sorház
Eladó sorház

Tiszasziget, Sziget lakópark

33.9 M Ft
2 szoba
48 m2
Eladó családi ház
Eladó családi ház

Ráksi

69.9 M Ft
4 szoba
139 m2
Eladó családi ház
Eladó családi ház

Sárosd

21.9 M Ft
3 szoba
86 m2
Eladó családi ház
Eladó családi ház

Szil

25 M Ft
2 szoba
90 m2