Avico Greentop

Eladó panellakás
Budapest, III. kerület, 9. emelet

+ 9 kép 1/12
77 500 000 Ft77.5 M Ft 1 139 706 Ft/m2
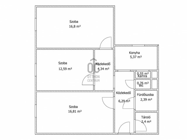
3 szoba
68 m²
9. emelet
építés éve:1978

Részletes adatok

Fűtés: Távfűtés
Emelet: 9. emelet
Közmű: Gáz, Villany, Csatorna
Energetikai besorolás: Nem adta meg a hirdető

Az OTP Bank lakáshitel ajánlataFizetett hirdetés

+36 70 465
Ilcsik Lóránt
referens

Érdekel az OTP Bank kedvezményes lakáshitel ajánlata? *

* A kérdésre „Igen” válasz bejelölése esetén, az „Üzenet küldése” gombra kattintva kijelentem, hogy az OTP Bank Nyrt. Adatkezelési tájékoztatójának tartalmát megismertem és tudomásul vettem.

Eladó panellakás leírása

Eladásra kínálunk egy jó állapotú, felújított, 3 szobás panel lakást, Óbuda központi részén.
A fürdő és a wc tavaly lett felújítva, az elektromos hálózat, a nyílászárók, a parketta és a konyha pedig korábban.
Az ingatlan a 3%-os hitel feltételeinek megfelel!

A lakás főbb előnyei és tulajdonságai:
- 3 külön nyíló, egész szoba
- Keleti fekvés
- Klíma van (nappali)
- 9. emelet, liftes, nem zárószinti
- Biztonsági bejárati ajtó
- Gardrób / tároló, ahova a mosgép elhelyezhető
- Kamra / spájz
- Akár 30 napon belül költözhető (kifizetéstől függően)
- Vízórás
- Költségek: közös 17 ezer, távhő szintén 17 ezer

Ha kérdeése van, vagy időpontot egyeztetne megtekintésre, hívjon bizalommal!

Hirdetés feltöltve: 2026. 04. 01. Utoljára módosítva: 2026. 05. 12.

3 szobás panellakások ára Budapesten

Ebből az összehasonlításból megtudhatod, hogyan viszonyul a lakás ára a környékbeli panellakások átlagos árához. Ez nem azt jelenti, hogy ennyivel olcsóbb vagy drágább, mint amennyit a lakás ér, hanem hogy ennyivel tér el a környékbeli átlagtól.

Ennek a m² ára
III. kerület m² ár
Budapest m² ár
1140 e Ft
1251 e Ft 9%
1229 e Ft 7%
Ennek az ára
III. kerület átlagár
Budapest átlagár
77.5 M Ft m Ft
77.5 m Ft 0%
74.9 m Ft -3%

Az ingatlan elhelyezkedése

Cím: Budapest, III. kerület, 9. emelet

Eladó ingatlanok a környékről

III. kerület
Eladó panellakás

Budapest, III. kerület

75.9 M Ft
3 szoba
68 m²
VI. kerület
Eladó téglalakás

Budapest, VI. kerület

79.9 M Ft
2 szoba
48 m²
III. kerület, Óbuda, Miklós utca
Eladó panellakás

Budapest, III. kerület

84.9 M Ft
3 szoba
66 m²
XIV. kerület
Eladó téglalakás

Budapest, XIV. kerület

98 M Ft
2 szoba
66 m²
XII. kerület
Eladó téglalakás

Budapest, XII. kerület

59.9 M Ft
1 szoba
29 m²
III. kerület
Eladó panellakás

Budapest, III. kerület

85 M Ft
1 + 2 szoba
51 m²
III. kerület
Eladó panellakás

Budapest, III. kerület

59.5 M Ft
1 + 2 szoba
57 m²
III. kerület
Eladó panellakás

Budapest, III. kerület

149.99 M Ft
6 szoba
114 m²
VI. kerület
Eladó téglalakás

Budapest, VI. kerület

79.9 M Ft
2 szoba
48 m²
VIII. kerület
Eladó téglalakás

Budapest, VIII. kerület

21.95 M Ft
1 szoba
25 m²
II. kerület
Eladó téglalakás

Budapest, II. kerület

100 M Ft
2 szoba
59 m²
III. kerület
Eladó panellakás

Budapest, III. kerület

149.99 M Ft
6 szoba
114 m²
XVIII. kerület, Havannatelep, Havanna utca
Eladó panellakás

Budapest, XVIII. kerület

80 M Ft
3 szoba
72 m²
XVIII. kerület
Eladó téglalakás

Budapest, XVIII. kerület

100 M Ft
3 szoba
135 m²
XV. kerület
Eladó panellakás

Budapest, XV. kerület

59.9 M Ft
1 + 2 szoba
55 m²
IX. kerület
Eladó téglalakás

Budapest, IX. kerület

89 M Ft
3 szoba
70 m²
XIV. kerület, Nagyzugló, Fogarasi út 60
Eladó téglalakás

Budapest, XIV. kerület

64.99 M Ft
2 szoba
65 m²
III. kerület
Eladó panellakás

Budapest, III. kerület

73.9 M Ft
1 + 2 szoba
57 m²
III. kerület
Eladó panellakás

Budapest, III. kerület

75.5 M Ft
2 szoba
48 m²
III. kerület, Testvérhegy
Eladó panellakás

Budapest, III. kerület

72.99 M Ft
3 szoba
66 m²
III. kerület
Eladó panellakás

Budapest, III. kerület

73.9 M Ft
1 + 2 szoba
57 m²
III. kerület
Eladó panellakás

Budapest, III. kerület

113 M Ft
2 + 1 szoba
62 m²
V. kerület
Eladó téglalakás

Budapest, V. kerület

119 M Ft
3 szoba
55 m²
II. kerület
Eladó téglalakás

Budapest, II. kerület

269 M Ft
3 szoba
102 m²

Falusi CSOK ingatlanok

Kaposgyarmat
Eladó családi ház

Kaposgyarmat

695 M Ft
6 szoba
610 m²
Tóalmás
Eladó családi ház

Tóalmás

38.9 M Ft
3 szoba
62 m²
Egerbakta
Eladó családi ház

Egerbakta

43.9 M Ft
5 + 1 szoba
160 m²
Verpelét
Eladó családi ház

Verpelét

24.5 M Ft
3 + 2 szoba
100 m²
Balatonszemes
Eladó téglalakás

Balatonszemes

91.5 M Ft
2 szoba
0 m²
Balinka, Petőfi S. utca 27
Eladó családi ház

Balinka

12.65 M Ft
1 + 2 szoba
79 m²
Arló, Mátyás Király utca
Eladó családi ház

Arló

14.99 M Ft
2 szoba
66 m²
Szigetújfalu
Eladó családi ház

Szigetújfalu

66 M Ft
3 szoba
118 m²