NapForrás 20 - Buda

Eladó panellakás
Budapest, III. kerület, Óbuda, 9. emelet

+ 9 kép 1/12
79 900 000 Ft79.9 M Ft 1 175 000 Ft/m2
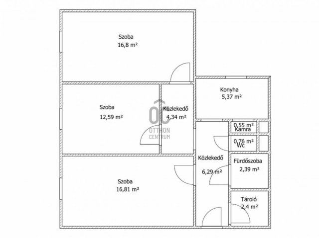
3 szoba
68 m2
9. emelet
építés éve:1974

Részletes adatok

Fűtés: Távfűtés
Extrák: Lift
Energetikai besorolás: Nem adta meg a hirdető

Az OTP Bank lakáshitel ajánlataFizetett hirdetés

+36 70 465
Makó Szilvia
referens

Érdekel az OTP Bank kedvezményes lakáshitel ajánlata? *

* A kérdésre „Igen” válasz bejelölése esetén, az „Üzenet küldése” gombra kattintva kijelentem, hogy az OTP Bank Nyrt. Adatkezelési tájékoztatójának tartalmát megismertem és tudomásul vettem.

Eladó panellakás leírása

III. KERÜLETBEN, ÓBUDÁN ELADÓ 68 nm. 3 SZOBÁS TÁRSASHÁZI PANEL LAKÁS!

Eladásra kínálunk egy jó állapotú, felújított, 3 szobás panel lakást, Óbuda központi részén.
A fürdő és a wc tavaly lett felújítva, az elektromos hálózat, a nyílászárók, a parketta és a konyha pedig korábban.
Az ingatlan a 3%-os hitel feltételeinek megfelel!

A lakás főbb előnyei és tulajdonságai:
- 3 külön nyíló, egész szoba
- Keleti fekvés
- Klíma van (nappali)
- 9. emelet, liftes, nem zárószinti
- Biztonsági bejárati ajtó
- Gardrób / tároló, ahova a mosgép elhelyezhető
- Kamra / spájz
- Akár 30 napon belül költözhető (kifizetéstől függően)
- Vízórás
- Költségek: közös 17 ezer, távhő szintén 17 ezer

Ha kérdeése van, vagy időpontot egyeztetne megtekintésre, hívjon bizalommal!

Hirdetés feltöltve: 2025. 11. 03. Utoljára módosítva: 2026. 01. 13.

3 szobás panellakások ára Budapesten

Ebből az összehasonlításból megtudhatod, hogyan viszonyul a lakás ára a környékbeli panellakások átlagos árához. Ez nem azt jelenti, hogy ennyivel olcsóbb vagy drágább, mint amennyit a lakás ér, hanem hogy ennyivel tér el a környékbeli átlagtól.

Ennek a m² ára
Óbuda m² ár
III. kerület m² ár
Budapest m² ár
1175 e Ft
1152 e Ft -2%
1302 e Ft 10%
1179 e Ft 0%
Ennek az ára
Óbuda átlagár
III. kerület átlagár
Budapest átlagár
79.9 M Ft m Ft
78 m Ft -2%
82.9 m Ft 4%
74.6 m Ft -7%

Az ingatlan elhelyezkedése

Cím: Budapest, III. kerület, Óbuda, 9. emelet

Eladó ingatlanok a környékről

Eladó panellakás
Eladó panellakás

III. kerület

113 M Ft
2 + 1 szoba
62 m2
Eladó téglalakás
Eladó téglalakás

VI. kerület, Külső Terézváros, Szófia utca

112.9 M Ft
4 szoba
103 m2
Eladó panellakás
Eladó panellakás

III. kerület, Békásmegyer

115.5 M Ft
3 szoba
73 m2
Eladó téglalakás
Eladó téglalakás

VII. kerület, Belső Erzsébetváros, Erzsébet körút

160 M Ft
3 szoba
88 m2
Eladó téglalakás
Eladó téglalakás

V. kerület, Belváros, Petőfi Sándor utca

134 M Ft
2 szoba
59 m2
Eladó téglalakás
Eladó téglalakás

III. kerület, Óbuda, Szomolnok utca

89.9 M Ft
2 + 2 szoba
96 m2
Eladó téglalakás
Eladó téglalakás

XIV. kerület, Barack utca 16

114.317 M Ft
2 + 1 szoba
68 m2
Eladó téglalakás
Eladó téglalakás

XIV. kerület, Barack utca 16

129.734 M Ft
3 + 1 szoba
92 m2
Eladó téglalakás
Eladó téglalakás

VII. kerület, Belső Erzsébetváros, Erzsébet körút

89.9 M Ft
1 + 1 szoba
71 m2
Eladó panellakás
Eladó panellakás

III. kerület

85 M Ft
1 szoba
31 m2
Eladó téglalakás
Eladó téglalakás

XIV. kerület, Barack utca 16

93.73 M Ft
2 + 1 szoba
68 m2
Eladó panellakás
Eladó panellakás

III. kerület, Óbuda, Szél utca

77.9 M Ft
3 szoba
69 m2
Eladó panellakás
Eladó panellakás

III. kerület

85 M Ft
1 szoba
31 m2
Eladó téglalakás
Eladó téglalakás

XIV. kerület, Barack utca 16

93.392 M Ft
2 + 1 szoba
67 m2
Eladó panellakás
Eladó panellakás

III. kerület

85 M Ft
1 szoba
28 m2
Eladó panellakás
Eladó panellakás

III. kerület, Óbuda

77.9 M Ft
3 szoba
69 m2
Eladó téglalakás
Eladó téglalakás

III. kerület, Óbudaisziget, Folyamőr utca

69.9 M Ft
1 szoba
25 m2
Eladó panellakás
Eladó panellakás

III. kerület

115.5 M Ft
3 szoba
73 m2
Eladó panellakás
Eladó panellakás

III. kerület

74 M Ft
3 szoba
66 m2
Eladó téglalakás
Eladó téglalakás

V. kerület, Belváros, Belgrád rakpart

78 M Ft
1 + 1 szoba
42 m2
Eladó panellakás
Eladó panellakás

III. kerület

66.5 M Ft
1 + 2 szoba
51 m2
Eladó panellakás
Eladó panellakás

III. kerület

115.5 M Ft
3 szoba
73 m2
Eladó panellakás
Eladó panellakás

III. kerület

115.5 M Ft
3 szoba
73 m2
Eladó panellakás
Eladó panellakás

III. kerület, Óbuda

75.5 M Ft
2 szoba
48 m2

Falusi CSOK ingatlanok

Eladó családi ház
Eladó családi ház

Szilvásszentmárton, Fő utca

9.9 M Ft
2 szoba
70 m2
Eladó családi ház
Eladó családi ház

Emőd, Vasút utca

14.5 M Ft
2 szoba
60 m2
Eladó családi ház
Eladó családi ház

Döröske

15.9 M Ft
1 szoba
40 m2
Eladó családi ház
Eladó családi ház

Madaras

9.5 M Ft
3 szoba
105 m2
Eladó családi ház
Eladó családi ház

Nyírkáta

16.5 M Ft
206 m2
Eladó családi ház
Eladó családi ház

Baracs

68 M Ft
3 szoba
125 m2
Eladó családi ház
Eladó családi ház

Baksa

38.9 M Ft
3 szoba
81 m2
Eladó családi ház
Eladó családi ház

Szőlősardó

13.5 M Ft
3 szoba
113 m2