Pesti Házak

Eladó panellakás
Budapest, III. kerület, 5. emelet

+ 12 kép 1/15
63 900 000 Ft63.9 M Ft 1 121 053 Ft/m2
1 + 2 szoba
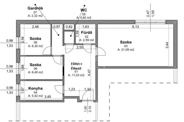
57 m2
5. emelet
építés éve:1979

Részletes adatok

Állapot: Átlagos
Fűtés: Távfűtés
Extrák: Lift
Energetikai besorolás: Nem adta meg a hirdető

Az OTP Bank lakáshitel ajánlataFizetett hirdetés

+36 30 828
Füredi Felícia
referens

Érdekel az OTP Bank kedvezményes lakáshitel ajánlata? *

* A kérdésre „Igen” válasz bejelölése esetén, az „Üzenet küldése” gombra kattintva kijelentem, hogy az OTP Bank Nyrt. Adatkezelési tájékoztatójának tartalmát megismertem és tudomásul vettem.

Eladó panellakás leírása

Eladó világos panellakás Békásmegyeren!

III. kerület kedvelt részén, Békásmegyer Duna felőli oldalán, a Gyűrű utcában kínálunk eladásra egy 57 m²-es, nappali + 2 hálószobás lakást, rendezett, panelprogramos és szigetelt házban.

Az ingatlan kiváló elosztású és napfényes, minden helyiség természetes fényt kap. Jelenleg is lakható, de kis ráfordítással könnyedén még otthonosabbá tehető.
A nappaliból franciaerkély nyílik, ami még tágasabbá és barátságosabbá teszi a teret. A fűtés egyedi mérős távfűtés, így a rezsiköltség jól tervezhető.

Környezet és elhelyezkedés:
A 10 emeletes ház tiszta, gondozott, családias környezetben áll, jó lakóközösséggel.

A környék zöld, fás és parkos, a ház előtt ingyenes parkolási lehetőség biztosított.
Néhány perc sétán belül elérhető bevásárlási lehetőség, iskola, óvoda, gyógyszertár, több buszmegálló, Békásmegyeri HÉV, így minden fontos szolgáltatás karnyújtásnyira található.

Ez az ingatlan kiváló választás lehet családoknak, fiatal pároknak vagy befektetőknek is:
praktikus elrendezés, világos terek, nyugodt, zöld környezet – minden adott egy kényelmes, szerethető otthonhoz!

Jöjjön el nézze meg és tegyen ajánlatot!

INGYENES hitel tanácsadás!
BANKFÜGGETLEN hitelcentrumunk minden elérhető bank és hitelintézet ajánlatát versenyezteti az Ön kedvéért, ráadásul DÍJMENTESEN.

ID:388830 ...TOVÁBBI, TÖBBEZRES INGATLAN KÍNÁLAT: www.gdn-ingatlan.hu - GDN azonosító: 388830

Hirdetés feltöltve: 2025. 10. 24. Utoljára módosítva: 2025. 11. 07.

3 szobás panellakások ára Budapesten

Ebből az összehasonlításból megtudhatod, hogyan viszonyul a lakás ára a környékbeli panellakások átlagos árához. Ez nem azt jelenti, hogy ennyivel olcsóbb vagy drágább, mint amennyit a lakás ér, hanem hogy ennyivel tér el a környékbeli átlagtól.

Ennek a m² ára
III. kerület m² ár
Budapest m² ár
1121 e Ft
1284 e Ft 13%
1158 e Ft 3%
Ennek az ára
III. kerület átlagár
Budapest átlagár
63.9 M Ft m Ft
83.2 m Ft 23%
74.3 m Ft 14%

Az ingatlan elhelyezkedése

Cím: Budapest, III. kerület, 5. emelet

Eladó ingatlanok a környékről

Eladó téglalakás
Eladó téglalakás

VI. kerület

84.9 M Ft
2 szoba
48 m2
Eladó családi ház
Eladó családi ház

XVI. kerület

162.5 M Ft
3 szoba
101 m2
Eladó panellakás
Eladó panellakás

III. kerület

113 M Ft
2 + 1 szoba
62 m2
Eladó családi ház
Eladó családi ház

XVIII. kerület

56 M Ft
2 szoba
70 m2
Eladó téglalakás
Eladó téglalakás

VII. kerület

74 M Ft
2 szoba
62 m2
Eladó panellakás
Eladó panellakás

III. kerület

105 M Ft
3 szoba
73 m2
Eladó panellakás
Eladó panellakás

III. kerület

115.5 M Ft
3 szoba
73 m2
Eladó téglalakás
Eladó téglalakás

VI. kerület

95.9 M Ft
2 szoba
55 m2
Eladó panellakás
Eladó panellakás

III. kerület

74 M Ft
3 szoba
66 m2
Eladó téglalakás
Eladó téglalakás

VI. kerület

77 M Ft
2 szoba
36 m2
Eladó panellakás
Eladó panellakás

III. kerület, Óbuda

110 M Ft
3 szoba
85 m2
Eladó téglalakás
Eladó téglalakás

VII. kerület

79 M Ft
2 szoba
72 m2
Eladó családi ház
Eladó családi ház

XVII. kerület

139 M Ft
5 szoba
150 m2
Eladó téglalakás
Eladó téglalakás

XVIII. kerület

92.9 M Ft
4 szoba
73 m2
Eladó panellakás
Eladó panellakás

III. kerület

105 M Ft
3 szoba
73 m2
Eladó téglalakás
Eladó téglalakás

VII. kerület

90 M Ft
4 szoba
99 m2
Eladó téglalakás
Eladó téglalakás

VII. kerület

71.9 M Ft
1 szoba
34 m2
Eladó panellakás
Eladó panellakás

III. kerület

105 M Ft
3 szoba
73 m2
Eladó panellakás
Eladó panellakás

III. kerület, Óbuda, Ágoston u 16

42.5 M Ft
2 + 1 szoba
66 m2
Eladó panellakás
Eladó panellakás

III. kerület

105 M Ft
3 szoba
73 m2
Eladó panellakás
Eladó panellakás

III. kerület

115.5 M Ft
3 szoba
73 m2
Eladó panellakás
Eladó panellakás

XV. kerület

64.9 M Ft
3 szoba
61 m2
Eladó panellakás
Eladó panellakás

III. kerület, Békásmegyer

77 M Ft
3 szoba
56 m2
Eladó téglalakás
Eladó téglalakás

XIII. kerület

63 M Ft
1 szoba
46 m2

Falusi CSOK ingatlanok

Eladó családi ház
Eladó családi ház

Véménd

13.99 M Ft
2 szoba
63 m2
Eladó családi ház
Eladó családi ház

Ónod, Kossuth út 10

27.499 M Ft
3 + 2 szoba
120 m2
Eladó családi ház
Eladó családi ház

Gégény, Kossuth

15 M Ft
4 szoba
135 m2
Eladó családi ház
Eladó családi ház

Szurdokpüspöki

16 M Ft
1 szoba
45 m2
Eladó családi ház
Eladó családi ház

Mályi

84.9 M Ft
4 szoba
100 m2
Eladó családi ház
Eladó családi ház

Bodajk

67 M Ft
2 szoba
72 m2
Eladó családi ház
Eladó családi ház

Szarvaskend

26.9 M Ft
2 szoba
83 m2
Eladó családi ház
Eladó családi ház

Iváncsa

73.9 M Ft
1 + 3 szoba
97 m2