NapForrás 20 - Buda

Eladó nyaraló
Ráckeve

70 000 000 Ft70 M Ft 1 166 667 Ft/m2
3 szoba
60 m²
építés éve:2025

Részletes adatok

Telekméret: 507 m2
Fűtés: Egyéb
Energetikai besorolás: Nem adta meg a hirdető

Az OTP Bank lakáshitel ajánlataFizetett hirdetés

3629998816
Póta-Für Adrienn
referens

Érdekel az OTP Bank kedvezményes lakáshitel ajánlata? *

* A kérdésre „Igen” válasz bejelölése esetén, az „Üzenet küldése” gombra kattintva kijelentem, hogy az OTP Bank Nyrt. Adatkezelési tájékoztatójának tartalmát megismertem és tudomásul vettem.

Eladó nyaraló leírása

Egyedülálló élmény a Ráckevei Duna-parton! 60 m2-es hasznos alapterületű Önálló újépítésű nyaraló.

Itt minden reggel egy új kaland kezdete, és minden este egy romantikus mesébe csöppenhet bele. A természet szerelmesei és az otthon melege iránt vágyakozók egyaránt megtalálják itt számításaikat.

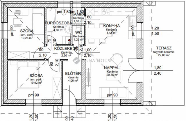
Helyiségek:
-Előtér: 4,06m2
-Közlekedő: 2,90m2
-Szoba: 10,92m2
-Szoba: 10,26m2
-Fürdőszoba: 4,86m2
-Kamra: 1,08m2
-Wc: 1,26m2
.Konyha: 4,44m2
.Nappali: 20,35m2
-Terasz: 22,80m2
-30m2-es kerti sütögető mely jelenleg is a telken áll

Műszaki jellemzők:
-Az 507m2-es telek víz,villany és csatornahálózattal ellátott.
-Tégla építés
-Betonfödém szigetelve
-Terrán cserépfedés
-6 légkamrás színes műanyag nyílászárók 1.0-ás hőszigetelt üvegezéssel, vakolhatótokos elektromos redőnnyel. Külső színes lemezpárkény, belső műkő párkányokkal.
-Víz, csatorna, H-tarifás villanyóra, elektromos felszálló vezetékek a telken lévő közműhálózatra való csatlakozással.
-Hűtő-fűtő klíma 1 db
-Hőszivattyú padlófűtéssel H tarifás villanyórával
-Két ház közti kerítés: 1 sor zsalukő, táblás kerítéselemmel.
-Kerti csap
-A hideg burkolatok 5.000.-Ft/nm ár-ig, a meleg burkolatok 4.000.-Ft/nm ár-ig választható. Ezen felüli költség a vevőt terheli.
-A szaniterek és csaptelepek közép ár kategóriás termékeket jelentenek. Ettől árban felfelé eltérni a különbözet megfizetése esetén lehetséges.
-Vízszerelés Rehau vagy azzal, egyenértékű rendszerrel.
-Homlokzati nyílászárók: 6 légkamrás fehér műanyag nyílászárók 1.0-ás hőszigetelt üvegezéssel, külső-belső műanyag párkánnyal, vakolható tokos redőnnyel.
-Belső válaszfalajtók: Dekor fóliás stand-door mdf szerkezet, szín választható (tele ajtó) 50.000.-Ft-ig/db.

Az ingatlan kérhető klímás fűtéssel, hőszivattyú és padlófűtés nélkül is, az ár így módosul 65.000.000 Ft-ra.

-Az ingatlanhoz külön felár ellenében megvásárolható egy vadonatúj stég is a háztól 50 méterre, melynek összege 7.000.000 Ft.
-A telken jelenleg van egy 15 m2-es összkomfortos téliesített tégla ház mely azonnal birtokba vehető, így Ráckeve élvezhető az építkezés alatt is, melyet a kivitelező saját költségén elbont majd.

Az építtető megbízható kivitelező referencia munkákkal rendelkezik, bátran jöjjenek és nézzék meg személyesen a helyszínt.

Elhelyezkedés:
Álmai otthona karnyújtásnyira a Duna parttól a Somlyó szigeten helyezkedik el. Ráckeve városközpontja 10perces autóútra van.
Ha kérdése van vagy szeretné megtekinteni, keressen bizalommal a hét bármely napján!
Póta-Für Adrienn, ingatlanértékesítő
+36 30 115 1416
potafur.adrienn@dh.hu

Ha még nem találta meg új otthonát, esetleg a vásárláshoz előbb el kell adnia egy ingatlant, keressen a fenti elérhetőségeimen, együtt megtaláljuk a megoldást!

Irodánk pénzügyi szakértője díjmentes és bankfüggetlen hiteltanácsadással segíti a vásárlást, melynek lebonyolításához igény esetén megbízható ügyvédi hátteret biztosítunk.

Referencia szám: HZ060300

Hirdetés feltöltve: 2026. 02. 26.

Nyaralók ára Ráckevén

Ebből az összehasonlításból megtudhatod, hogyan viszonyul a lakás ára a környékbeli nyaralók átlagos árához. Ez nem azt jelenti, hogy ennyivel olcsóbb vagy drágább, mint amennyit a lakás ér, hanem hogy ennyivel tér el a környékbeli átlagtól.

Ennek a m² ára
Ráckeve m² ár
1167 e Ft
748 e Ft -56%
Ennek az ára
Ráckeve átlagár
70 M Ft m Ft
46.9 m Ft -49%

Az ingatlan elhelyezkedése

Cím: Ráckeve

Eladó nyaralók a környékről

Ráckeve
Eladó nyaraló

Ráckeve

29.9 M Ft
2 + 1 szoba
70 m²
Ráckeve
Eladó nyaraló

Ráckeve

47.5 M Ft
3 + 1 szoba
87 m²
Ráckeve
Eladó nyaraló

Ráckeve

14.9 M Ft
1 szoba
30 m²
Ráckeve
Eladó nyaraló

Ráckeve

47.5 M Ft
3 + 1 szoba
87 m²
Nagykáta
Eladó nyaraló

Nagykáta

12 M Ft
2 szoba
56 m²
Ráckeve
Eladó nyaraló

Ráckeve

47.5 M Ft
3 + 1 szoba
87 m²
Délegyháza
Eladó nyaraló

Délegyháza

46 M Ft
3 szoba
35 m²
Ráckeve
Eladó nyaraló

Ráckeve

27 M Ft
3 szoba
73 m²
Tóalmás
Eladó nyaraló

Tóalmás

17.7 M Ft
1 + 3 szoba
56 m²
Ráckeve
Eladó nyaraló

Ráckeve

47.5 M Ft
3 + 1 szoba
87 m²
Ráckeve
Eladó nyaraló

Ráckeve

29.5 M Ft
1 + 1 szoba
36 m²
Ráckeve
Eladó nyaraló

Ráckeve

95 M Ft
8 szoba
310 m²
Ráckeve
Eladó nyaraló

Ráckeve

25 M Ft
2 szoba
51 m²
Ráckeve
Eladó nyaraló

Ráckeve

29.5 M Ft
1 + 1 szoba
36 m²
Szentendre
Eladó nyaraló

Szentendre

149 M Ft
4 szoba
140 m²
Halásztelek
Eladó nyaraló

Halásztelek

35 M Ft
2 szoba
20 m²
Ráckeve
Eladó nyaraló

Ráckeve

18.99 M Ft
2 szoba
60 m²
Ráckeve
Eladó nyaraló

Ráckeve

29.9 M Ft
2 + 1 szoba
70 m²
Páty
Eladó nyaraló

Páty

34.9 M Ft
1 szoba
40 m²
Ráckeve
Eladó nyaraló

Ráckeve

99.9 M Ft
4 szoba
162 m²
Délegyháza, Óbudai telep
Eladó nyaraló

Délegyháza

23 M Ft
1 szoba
35 m²
Ráckeve
Eladó nyaraló

Ráckeve

47.5 M Ft
3 + 1 szoba
87 m²
Ráckeve
Eladó nyaraló

Ráckeve

18.99 M Ft
2 szoba
60 m²
Ráckeve
Eladó nyaraló

Ráckeve

99.9 M Ft
4 szoba
162 m²

Falusi CSOK ingatlanok

Szigetbecse
Eladó családi ház

Szigetbecse

72 M Ft
4 szoba
123 m²
Kunadacs
Eladó családi ház

Kunadacs

80 M Ft
4 szoba
148 m²
Balatonszemes, Ady E. utca 6
Eladó téglalakás

Balatonszemes

108.9 M Ft
2 + 1 szoba
63 m²
Törtel
Eladó családi ház

Törtel

7.5 M Ft
1 + 2 szoba
45 m²
Ceglédbercel
Eladó családi ház

Ceglédbercel

67 M Ft
4 szoba
165 m²
Úrkút
Eladó családi ház

Úrkút

94.9 M Ft
4 szoba
186 m²
Balatonfenyves
Eladó ikerház

Balatonfenyves

55 M Ft
3 szoba
52 m²
Ceglédbercel, Aranyhegy utca
Eladó családi ház

Ceglédbercel

99.9 M Ft
5 szoba
110 m²