Astora Márvány8

Eladó nyaraló
Kulcs

+ 17 kép 1/20
16 500 000 Ft16.5 M Ft 183 333 Ft/m2
2 szoba
90 m²
építés éve:1974

Részletes adatok

Állapot: Átlagos
Telekméret: 898 m2
Fűtés: Elektromos
Komfort: Összkomfortos
Energetikai besorolás: Nem adta meg a hirdető

Az OTP Bank lakáshitel ajánlataFizetett hirdetés

+36 70 615
Pásztor Hajnalka
Szigetszentmiklós OTP Ip

Érdekel az OTP Bank kedvezményes lakáshitel ajánlata? *

* A kérdésre „Igen” válasz bejelölése esetén, az „Üzenet küldése” gombra kattintva kijelentem, hogy az OTP Bank Nyrt. Adatkezelési tájékoztatójának tartalmát megismertem és tudomásul vettem.

Eladó nyaraló leírása

Nyaraló Kulcson, csodás kilátással!

Eladásra kínálok egy nyaralót Kulcson üdülőövezetben, a Dunától rövid sétányi távolságra.
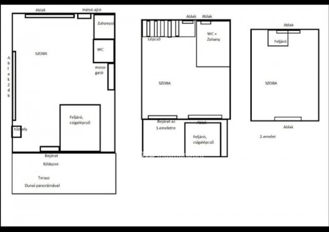
A nyaraló 50 m2 alapterületű, 3 szintes, összesen kb 90 m2-es, mely 898 m2-es telken helyezkedik el. Az épület téliesített, állandó lakhatásra alkalmas szigetelt faház, terasszal.
Az ingatlanban 2 szoba, nappali konyhával, zuhanyzós fürdőszoba, 2 wc található.
Keletre néző ablakaiból gyönyörű örök panorámás kilátás esik a Dunára. Vezetékes víz, villany a házban, emésztő a ház mellett lett kiépítve.
2 autónak alkalmas betonozott beálló a ház előtt található.
Iskola, óvoda, bölcsőde 15 perc séta.
Az M6-os ill. 6-os út közelségének köszönhetően könnyen megközelíthető Dunaújváros, illetve Budapest és környéke is.
A faluban sportpálya, játszótér, orvosi rendelő is van.

Megtekintésért, vagy ha kérdése lenne, forduljon hozzám bizalommal, akár hétvégén is.
Referenciaszám:M298308

Az energetikai tanúsítvány készítése folyamatban van, amint rendelkezésre áll, úgy azzal a hirdetés frissítésre kerül.

Hirdetés feltöltve: 2026. 04. 13. Utoljára módosítva: 2026. 05. 23.

Nyaralók ára Kulcson

Ebből az összehasonlításból megtudhatod, hogyan viszonyul a lakás ára a környékbeli nyaralók átlagos árához. Ez nem azt jelenti, hogy ennyivel olcsóbb vagy drágább, mint amennyit a lakás ér, hanem hogy ennyivel tér el a környékbeli átlagtól.

Ennek a m² ára
Kulcs m² ár
183 e Ft
658 e Ft 72%
Ennek az ára
Kulcs átlagár
16.5 M Ft m Ft
27.1 m Ft 39%

Az ingatlan elhelyezkedése

Cím: Kulcs

Eladó nyaralók a környékről

Csákvár
Eladó nyaraló

Csákvár

9.5 M Ft
2 szoba
29 m²
Enying
Eladó nyaraló

Enying

16.9 M Ft
1 szoba
50 m²
Sukoró
Eladó nyaraló

Sukoró

55 M Ft
2 + 3 szoba
126 m²
Kulcs
Eladó nyaraló

Kulcs

32.7 M Ft
3 szoba
38 m²
Martonvásár
Eladó nyaraló

Martonvásár

20 M Ft
2 szoba
40 m²
Kulcs
Eladó nyaraló

Kulcs

8.5 M Ft
1 szoba
25 m²
Kulcs, Kiskert utca
Eladó nyaraló

Kulcs

13.9 M Ft
2 szoba
40 m²
Kulcs, Hargita utca
Eladó nyaraló

Kulcs

22.9 M Ft
2 szoba
56 m²
Kulcs
Eladó nyaraló

Kulcs

16.5 M Ft
2 szoba
90 m²
Szabadbattyán, Emmaróza
Eladó nyaraló

Szabadbattyán

12 M Ft
2 szoba
30 m²
Pákozd
Eladó nyaraló

Pákozd

14.9 M Ft
2 szoba
48 m²
Kulcs
Eladó nyaraló

Kulcs

13.5 M Ft
1 szoba
20 m²
Kulcs
Eladó nyaraló

Kulcs

32.7 M Ft
3 szoba
38 m²
Szabadbattyán
Eladó nyaraló

Szabadbattyán

24.9 M Ft
1 + 1 szoba
30 m²
Kulcs
Eladó nyaraló

Kulcs

16.5 M Ft
2 szoba
35 m²
Szabadbattyán
Eladó nyaraló

Szabadbattyán

14.9 M Ft
2 szoba
40 m²
Gárdony
Eladó nyaraló

Gárdony

89.5 M Ft
6 szoba
140 m²
Bicske, Galagonyás IV. dűlő út
Eladó nyaraló

Bicske

9.4 M Ft
1 szoba
16 m²
Kulcs
Eladó nyaraló

Kulcs

28 M Ft
2 szoba
60 m²
Csákvár
Eladó nyaraló

Csákvár

20 M Ft
2 szoba
27 m²
Sukoró
Eladó nyaraló

Sukoró

47.8 M Ft
3 + 1 szoba
75 m²
Kulcs
Eladó nyaraló

Kulcs

28 M Ft
2 szoba
60 m²
Kulcs
Eladó nyaraló

Kulcs

32.7 M Ft
3 szoba
38 m²
Kulcs
Eladó nyaraló

Kulcs

8.9 M Ft
1 szoba
10 m²

Falusi CSOK ingatlanok

Balinka, Petőfi S. utca 27
Eladó családi ház

Balinka

12.65 M Ft
1 + 2 szoba
79 m²
Somogyaszaló
Eladó családi ház

Somogyaszaló

29.9 M Ft
3 szoba
104 m²
Nemesnádudvar
Eladó családi ház

Nemesnádudvar

29.9 M Ft
3 szoba
145 m²
Lovasberény
Eladó sorház

Lovasberény

78 M Ft
4 + 1 szoba
124 m²
Balatonszemes
Eladó téglalakás

Balatonszemes

119.9 M Ft
2 szoba
0 m²
Iváncsa
Eladó családi ház

Iváncsa

93.5 M Ft
5 szoba
283 m²
Balatonszemes
Eladó téglalakás

Balatonszemes

123.3 M Ft
2 szoba
0 m²
Jobbágyi
Eladó családi ház

Jobbágyi

399 M Ft
7 szoba
200 m²