River Life

Eladó mezogazdasagi ingatlan
Bugyi

+ 11 kép 1/14
235 000 000 Ft235 M Ft 1 021 739 Ft/m2
5 szoba
230 m2
építés éve:2011

Részletes adatok

Állapot: Átlagos
Telekméret: 45000 m2
Fűtés: Elektromos
Közmű: Víz, Gáz, Villany
Energetikai besorolás: Nem adta meg a hirdető

Az OTP Bank lakáshitel ajánlataFizetett hirdetés

+36 30 421
Toókné Ambrózi Andrea
referens

Érdekel az OTP Bank kedvezményes lakáshitel ajánlata? *

* A kérdésre „Igen” válasz bejelölése esetén, az „Üzenet küldése” gombra kattintva kijelentem, hogy az OTP Bank Nyrt. Adatkezelési tájékoztatójának tartalmát megismertem és tudomásul vettem.

Eladó mezogazdasagi ingatlan leírása

ÖNÁLLÓ TANYA*****4,5 HEKTÁROS AKÁC ERDŐVEL*****3 GENERÁCIÓNAK IS *****HITELEZHETŐ!!!!

Eladásra kínálok Pest vármegyében, Budapesttől 20 percre egy 2011-ben újonnan épült tanyát 4,5 hektáros területen, 25 éves akác erdővel, családi házzal, gondnoki épülettel, lovas és állattartó épületekkel.

A Taksony - Bugyi közti főútvonalról egy kb.2 km-es erdőkkel övezett döngölt,sima földúton jutunk álmaink tanyájára. Az elvonulás szigete, távol és mégis közel, elszeparálva, mégis védetten, a szomszédos tanyák biztonságos közelségében.
A terület bekerített, külső,belső riasztókkal védett, az erdő mellett sok gyümölcsfa, nagy veteményeskert, bio gazdálkodás található,számos rendezett, tiszta óllal, fatárolóval.

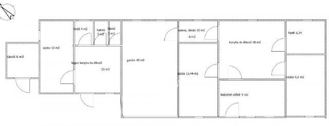
Az ingatlan épületei:
1. FŐÉPÜLET
1. Lakás: 1 szoba, fürdőszoba, konyha étkezővel, tároló,kamra, padlófűtéssel.(50 m2)
2. Lakás, főépület: garázs elektromos kapuval,2 szoba, diófa konyhabútor elszívóval, elektromos indukciós tűzhellyel, sütővel, étkezővel, tároló, kádas fürdőszoba.Elektromos redőnyök, diófa ajtók, mindenhol padlófűtés.(100m2)

2 .ÉPÜLET
1.Lakás: 2 szoba, fürdőszoba, konyha étkezővel,tárolóval
2. Helyiség: tároló, hűtőszoba, saját felhasználásra állatfeldolgozó konyha rozsdamentes felszereléssel
3. Garázs: kb. 80 m2 ablakokkal,garázsajtóval

Egyéb építmények:
6 disznóól, 1 lótartásra szolgáló ól, 1 nagy tyúkól, 1 juhoknak akol fatárolók
1 villanyóra ház, szerszámtároló, gyönyörű épített Makovecz stílusú hatalmas szaletli

Gáz a telekhatáron. A fűtésről a közel 5 hektáros akácerdő gondoskodik.Ennek értéke 60-80 millió forint. Az ingatlan tehermentes, 1/1 tulajdonban.

Minden olyan, mint amilyet megálmodik az ember, ha egy igazi nagybetűs tanyára vágyik!!!! Modern, esztétikus, tiszta, rendezett, az állatok kommunikálnak, köszönnek, szaladnak a gazdi után, fantasztikus a milliő!! Elvarázsol!!!

Az OTP Bankcsoport teljeskörü hitelügyintézéssel és ügyvédi háttérrel segíti a leendő vevőt a vásárlás megkönnyítésére.
Kérdéseivel forduljon hozzám bizalommal.
Referenciaszám: M319375

Hirdetés feltöltve: 2025. 12. 20. Utoljára módosítva: 2026. 01. 13.

Az ingatlan elhelyezkedése

Cím: Bugyi

Eladó ingatlanok a környékről

Eladó mezogazdasagi ingatlan
Eladó mezogazdasagi ingatlan

Isaszeg

2.1 M Ft
3353 m²
Eladó mezogazdasagi ingatlan
Eladó mezogazdasagi ingatlan

Bugyi

235 M Ft
5 szoba
230 m2
Eladó mezogazdasagi ingatlan
Eladó mezogazdasagi ingatlan

Budakeszi

4.5 M Ft
Eladó mezogazdasagi ingatlan
Eladó mezogazdasagi ingatlan

Páty

18.8 M Ft
68 m2
Eladó mezogazdasagi ingatlan
Eladó mezogazdasagi ingatlan

Törökbálint

677.548 M Ft
197035 m²
Eladó telek
Eladó telek

Taksony

29 M Ft
620 m²
Eladó mezogazdasagi ingatlan
Eladó mezogazdasagi ingatlan

Kocsér

143.28 M Ft
5 szoba
339 m2
Eladó mezogazdasagi ingatlan
Eladó mezogazdasagi ingatlan

Bugyi

240 M Ft
3 + 1 szoba
342 m2
Eladó mezogazdasagi ingatlan
Eladó mezogazdasagi ingatlan

Budakeszi

3.06 M Ft
1002 m²
1002 m2
Eladó családi ház
Eladó családi ház

Szigetszentmiklós

53.9 M Ft
3 szoba
63 m2
Eladó ikerház
Eladó ikerház

Taksony

129.9 M Ft
5 szoba
130 m2
Eladó mezogazdasagi ingatlan
Eladó mezogazdasagi ingatlan

Csomád

14.9 M Ft
14206 m²
14206 m2
Eladó mezogazdasagi ingatlan
Eladó mezogazdasagi ingatlan

Bugyi

39.9 M Ft
1 szoba
54 m2
Eladó családi ház
Eladó családi ház

Cegléd

41.9 M Ft
2 szoba
50 m2
Eladó mezogazdasagi ingatlan
Eladó mezogazdasagi ingatlan

Bugyi

39.9 M Ft
1 szoba
54 m2
Eladó mezogazdasagi ingatlan
Eladó mezogazdasagi ingatlan

Albertirsa

39.99 M Ft
6 szoba
160 m2
Eladó téglalakás
Eladó téglalakás

Vecsés, Nándor utca

75.9 M Ft
3 szoba
76 m2
Eladó családi ház
Eladó családi ház

Csörög

26.5 M Ft
4 szoba
90 m2
Eladó telek
Eladó telek

Tököl

5.8 M Ft
825 m²
825 m2
Eladó üzlethelyiség
Eladó üzlethelyiség

Vecsés

144.9 M Ft
139 m2
Eladó ikerház
Eladó ikerház

Taksony

114.9 M Ft
5 szoba
130 m2
Eladó családi ház
Eladó családi ház

Galgahévíz

79.9 M Ft
4 szoba
188 m2
Eladó családi ház
Eladó családi ház

Budakeszi, Villám Miklós utca

289 M Ft
8 szoba
290 m2
Eladó ikerház
Eladó ikerház

Herceghalom

149.9 M Ft
5 szoba
114 m2

Falusi CSOK ingatlanok

Eladó családi ház
Eladó családi ház

Gersekarát

21.9 M Ft
3 szoba
80 m2
Eladó családi ház
Eladó családi ház

Szentbékkálla, Szentbékkálla

63.9 M Ft
2 szoba
143 m2
Eladó családi ház
Eladó családi ház

Orci

119.9 M Ft
6 szoba
200 m2
Eladó családi ház
Eladó családi ház

Somogygeszti

10.9 M Ft
2 szoba
115 m2
Eladó családi ház
Eladó családi ház

Vaszar

13.9 M Ft
2 szoba
67 m2
Eladó téglalakás
Eladó téglalakás

Herend

63 M Ft
3 szoba
69 m2
Eladó családi ház
Eladó családi ház

Sumony

19 M Ft
4 szoba
120 m2
Eladó családi ház
Eladó családi ház

Bélapátfalva

29 M Ft
2 szoba
55 m2