Astora Olive Club House

Eladó ipari ingatlan
Szentes

+ 17 kép 1/20
60 000 000 Ft60 M Ft 171 429 Ft/m2
350 m2
építés éve:1902

Részletes adatok

Állapot: Átlagos
Telekméret: 1171 m2
Fűtés: Gázkazán
Energetikai besorolás: Nem adta meg a hirdető

Az OTP Bank lakáshitel ajánlataFizetett hirdetés

+36 70 677
Jószai Olívia
Szentes OTP Ingatlanpont Iroda Petőfi utca 12.

Érdekel az OTP Bank kedvezményes lakáshitel ajánlata? *

* A kérdésre „Igen” válasz bejelölése esetén, az „Üzenet küldése” gombra kattintva kijelentem, hogy az OTP Bank Nyrt. Adatkezelési tájékoztatójának tartalmát megismertem és tudomásul vettem.

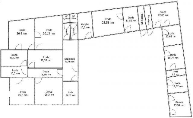
Eladó ipari ingatlan leírása

*** CSAK AZ OTP INGATLANPONT KÍNÁLATÁBAN *** ELADÓ Csongrád-Csanád vármegyében Szentesen egy frekventált elhelyezkedésű irodaház. Az 1171 nm-es telken elhelyezkedő 350 nm-es tégla épületben 15 irodahelyiség, konyha, 2 mellékhelyiség található. A 152 nm-es udvaron két autó számára van nyílt kocsibeálló és további 1 autónak garázs. A fűtést gázkazán biztosítja radiátoros hőleadással. Az ingatlan kiválóan alkalmas vállalkozás működtetésére, irodák bérbeadására, vagy átalakítható lakóházzá. Több lakás kialakítására ad lehetőséget. Amennyiben az OTP Ingatlanpont kínálatából választ, számíthat szakmai támogatásunkra a teljes vételi folyamat során az adásvételi szerződés megkötésétől a hitel-ügyintézésen át az ingatlan átadásáig. Az OTP Ingatlanpont kedvezményes pénzügyi konstrukciókkal áll ügyfelei rendelkezésére, és VIP-szolgáltatást nyújt az OTP-hiteltermékek , valamint CSOK-ügyintézésben. Kedvező hitelajánlatokkal (BABAVÁRÓ hitel, piaci hitel, és szabadfelhasználású hitel) várjuk jelentkezését. Számos konstrukció közül választhatnak.VÁLASSZUK KI EGYÜTT AZ ÖNNEK LEGMEGFELELŐBB AJÁNLATOT! BANKI SORBAN ÁLLÁS NÉLKÜL! ***

Referencia szám: M296842-ZE

Hirdetés feltöltve: 2025. 11. 08. Utoljára módosítva: 2025. 11. 27.

Ipari ingatlanok ára Szentesen

Ebből az összehasonlításból megtudhatod, hogyan viszonyul a lakás ára a környékbeli ipari ingatlanok átlagos árához. Ez nem azt jelenti, hogy ennyivel olcsóbb vagy drágább, mint amennyit a lakás ér, hanem hogy ennyivel tér el a környékbeli átlagtól.

Ennek a m² ára
Szentes m² ár
171 e Ft
269 e Ft 36%
Ennek az ára
Szentes átlagár
60 M Ft m Ft
157.5 m Ft 62%

Az ingatlan elhelyezkedése

Cím: Szentes

Eladó ingatlanok a környékről

Eladó ipari ingatlan
Eladó ipari ingatlan

Szeged

258.459 M Ft
201606 m²
250 m2
Eladó ipari ingatlan
Eladó ipari ingatlan

Makó

3440 M Ft
29561 m²
7600 m2
Eladó téglalakás
Eladó téglalakás

Szeged

12 M Ft
1 szoba
21 m2
Eladó családi ház
Eladó családi ház

Szeged

280 M Ft
4 + 1 szoba
240 m2
Eladó ipari ingatlan
Eladó ipari ingatlan

Szentes

150 M Ft
1220 m2
Eladó családi ház
Eladó családi ház

Szeged

130 M Ft
3 szoba
160 m2
Eladó ipari ingatlan
Eladó ipari ingatlan

Hódmezővásárhely

115 M Ft
4 + 6 szoba
630 m2
Eladó téglalakás
Eladó téglalakás

Szeged

71.2 M Ft
2 szoba
61 m2
Eladó ipari ingatlan
Eladó ipari ingatlan

Hódmezővásárhely

118 M Ft
1388 m²
600 m2
Eladó családi ház
Eladó családi ház

Szeged

34.9 M Ft
1 szoba
42 m2
Eladó ipari ingatlan
Eladó ipari ingatlan

Szeged

11821.85 M Ft
272171 m²
Eladó panellakás
Eladó panellakás

Szeged

60.99 M Ft
Eladó ipari ingatlan
Eladó ipari ingatlan

Szentes

147.3 M Ft
7856 m2
Eladó téglalakás
Eladó téglalakás

Szeged

79.9 M Ft
3 + 2 szoba
123 m2
Eladó panellakás
Eladó panellakás

Szeged

69 M Ft
3 szoba
77 m2
Eladó családi ház
Eladó családi ház

Szentes

24 M Ft
2 szoba
65 m2
Eladó ipari ingatlan
Eladó ipari ingatlan

Pusztamérges

69 M Ft
400 m2
Eladó ipari ingatlan
Eladó ipari ingatlan

Szentes

139 M Ft
8547 m²
60 m2
Eladó családi ház
Eladó családi ház

Hódmezővásárhely

99 M Ft
7 szoba
190 m2
Eladó ipari ingatlan
Eladó ipari ingatlan

Hódmezővásárhely

130 M Ft
4150 m²
1800 m2
Eladó ipari ingatlan
Eladó ipari ingatlan

Szeged

130 M Ft
1435 m²
280 m2
Eladó ipari ingatlan
Eladó ipari ingatlan

Csongrád

499 M Ft
2000 m2
Eladó családi ház
Eladó családi ház

Szeged

199 M Ft
7 szoba
223 m2
Eladó családi ház
Eladó családi ház

Szeged

59.9 M Ft
3 szoba
110 m2

Falusi CSOK ingatlanok

Eladó családi ház
Eladó családi ház

Beremend, 7827 Beremend, Petőfi Sándor utca 10

11.95 M Ft
1 + 1 szoba
124 m2
Eladó családi ház
Eladó családi ház

Geresdlak

44.9 M Ft
4 + 1 szoba
200 m2
Eladó családi ház
Eladó családi ház

Vilonya

71.9 M Ft
5 szoba
105 m2
Eladó családi ház
Eladó családi ház

Onga, 3562 Onga, József Attila utca 26

17.75 M Ft
1 + 1 szoba
174 m2
Eladó családi ház
Eladó családi ház

Ságvár

46.9 M Ft
2 szoba
70 m2
Eladó családi ház
Eladó családi ház

Elek

18 M Ft
4 szoba
180 m2
Eladó családi ház
Eladó családi ház

Törtel

10 M Ft
2 szoba
43 m2
Eladó családi ház
Eladó családi ház

Kaposgyarmat

695 M Ft
6 szoba
610 m2