NapForrás 20 - Buda

Eladó ipari ingatlan
Kecskemét

+ 12 kép 1/15
185 000 000 Ft185 M Ft 1 321 429 Ft/m2
140 m2

Részletes adatok

Állapot: Átlagos
Fűtés: Egyéb
Energetikai besorolás: Nem adta meg a hirdető

Az OTP Bank lakáshitel ajánlataFizetett hirdetés

+36 70 634
Bagó Diána
HOUSE36 Ingatlanbázis Kft.

Érdekel az OTP Bank kedvezményes lakáshitel ajánlata? *

* A kérdésre „Igen” válasz bejelölése esetén, az „Üzenet küldése” gombra kattintva kijelentem, hogy az OTP Bank Nyrt. Adatkezelési tájékoztatójának tartalmát megismertem és tudomásul vettem.

Eladó ipari ingatlan leírása

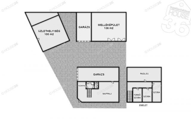
Hunyadivárosban eladó egy 844 m2-es telken lévő nappali + 2 szobás családi ház a hozzá tartozó melléképülettel és üzlethelyiséggel.

Egyéb jellemzők:

- magas minőségű burkolatok
- egyedi cseresznyefa beltéri ajtók
- műanyag nyílászárók + redőny + szúnyogháló
- cirkó fűtés ( padló + radiátor)
- 38 as Porotherm tégla + 13 cm szigetelés
- elektromos kapu
- elektromos garázskapu
- fürdőszobákban Hüppe zuhanykabin, Laufen wc , Wellis masszázs kád
- klíma
- térburkolt udvar
- különálló 100 m2-es üzlethelyiség
- melléképület 136 m2 ( Padlófűtés)
- 3-6 állásos garázs
-A tulajdonos kéréséreaz ingatlan bemutatása egy személyes konzultáció után történik, ahol részletes tájékoztatást kaphat az ingatlan paramétereiről és egyébkényelmi szolgáltatásairól!Figyelem az adatlap megbízónktól kapott adatok alapján készült, pontosságáért felelősséget nem tudunk vállalni!
Az iroda legfrissebb, aktuális kínálatát a HOUSE36 saját weboldalán találja.

Hirdetés feltöltve: 2025. 11. 30. Utoljára módosítva: 2025. 11. 30.

Ipari ingatlanok ára Kecskeméten

Ebből az összehasonlításból megtudhatod, hogyan viszonyul a lakás ára a környékbeli ipari ingatlanok átlagos árához. Ez nem azt jelenti, hogy ennyivel olcsóbb vagy drágább, mint amennyit a lakás ér, hanem hogy ennyivel tér el a környékbeli átlagtól.

Ennek a m² ára
Kecskemét m² ár
1321 e Ft
364 e Ft -263%
Ennek az ára
Kecskemét átlagár
185 M Ft m Ft
282.9 m Ft 35%

Az ingatlan elhelyezkedése

Cím: Kecskemét

Eladó ipari ingatlanok a környékről

Eladó ipari ingatlan
Eladó ipari ingatlan

Kecskemét

399 M Ft
1200 m2
Eladó ipari ingatlan
Eladó ipari ingatlan

Kecskemét

150 M Ft
3159 m2
Eladó ipari ingatlan
Eladó ipari ingatlan

Kecskemét

140 M Ft
40000 m²
2300 m2
Eladó ipari ingatlan
Eladó ipari ingatlan

Tiszakécske

53.9 M Ft
200 m2
Eladó ipari ingatlan
Eladó ipari ingatlan

Ballószög, Beton út mellett utca

16.8 M Ft
Eladó ipari ingatlan
Eladó ipari ingatlan

Kecskemét

1493 M Ft
38800 m2
Eladó ipari ingatlan
Eladó ipari ingatlan

Tiszakécske, Szentkirályi út út

22 M Ft
Eladó ipari ingatlan
Eladó ipari ingatlan

Kecskemét

130 M Ft
35381 m2
Eladó ipari ingatlan
Eladó ipari ingatlan

Kecskemét

75 M Ft
1400 m²
720 m2
Eladó ipari ingatlan
Eladó ipari ingatlan

Kecskemét

420 M Ft
700 m2
Eladó ipari ingatlan
Eladó ipari ingatlan

Szalkszentmárton

150 M Ft
785 m²
250 m2
Eladó ipari ingatlan
Eladó ipari ingatlan

Kecskemét, Szent István-város, Klebelsberg Kuno utca

104.9 M Ft
29996 m2
Eladó ipari ingatlan
Eladó ipari ingatlan

Kecskemét

160 M Ft
30000 m2
Eladó ipari ingatlan
Eladó ipari ingatlan

Tiszakécske

152 M Ft
1000 m2
Eladó ipari ingatlan
Eladó ipari ingatlan

Kecskemét

1100 M Ft
6500 m2
Eladó ipari ingatlan
Eladó ipari ingatlan

Kecskemét

500 M Ft
6000 m²
2000 m2
Eladó ipari ingatlan
Eladó ipari ingatlan

Kecskemét

500 M Ft
6000 m²
2000 m2
Eladó ipari ingatlan
Eladó ipari ingatlan

Kecskemét

300 M Ft
3219 m2
Eladó ipari ingatlan
Eladó ipari ingatlan

Kecskemét

2800 M Ft
28000 m2
Eladó ipari ingatlan
Eladó ipari ingatlan

Kecskemét

75 M Ft
1400 m²
720 m2
Eladó ipari ingatlan
Eladó ipari ingatlan

Kecskemét

140 M Ft
40000 m²
2300 m2
Eladó ipari ingatlan
Eladó ipari ingatlan

Kecskemét

105 M Ft
62625 m2
Eladó ipari ingatlan
Eladó ipari ingatlan

Kecskemét

1493 M Ft
38800 m2
Eladó ipari ingatlan
Eladó ipari ingatlan

Kecskemét

22.9 M Ft
2669 m2

Falusi CSOK ingatlanok

Eladó családi ház
Eladó családi ház

Geresdlak

44.9 M Ft
4 + 1 szoba
200 m2
Eladó családi ház
Eladó családi ház

Vasvár

64.9 M Ft
3 szoba
91 m2
Eladó családi ház
Eladó családi ház

Gáborján

5.5 M Ft
2 szoba
68 m2
Eladó családi ház
Eladó családi ház

Márianosztra

85 M Ft
6 szoba
198 m2
Eladó családi ház
Eladó családi ház

Vitnyéd, Petőfi Sándor utca 3

16.71 M Ft
1 + 1 szoba
99 m2
Eladó családi ház
Eladó családi ház

Örkény

41.5 M Ft
2 szoba
89 m2
Eladó családi ház
Eladó családi ház

Iváncsa

73.9 M Ft
1 + 3 szoba
97 m2
Eladó családi ház
Eladó családi ház

Szigetújfalu

120 M Ft
291 m2