Eladó ipari ingatlan
Kecskemét

+ 1 kép 1/4
500 000 000 Ft500 M Ft 925 926 Ft/m2
540 m2

Részletes adatok

Állapot: Átlagos
Fűtés: Egyéb
Energetikai besorolás: Nem adta meg a hirdető

Az OTP Bank lakáshitel ajánlataFizetett hirdetés

+36 70 421
Halász Norbert
HOUSE36 Ingatlanbázis Kft.

Érdekel az OTP Bank kedvezményes lakáshitel ajánlata? *

* A kérdésre „Igen” válasz bejelölése esetén, az „Üzenet küldése” gombra kattintva kijelentem, hogy az OTP Bank Nyrt. Adatkezelési tájékoztatójának tartalmát megismertem és tudomásul vettem.

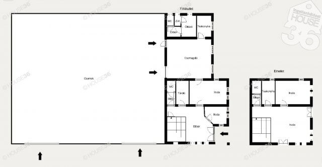
Eladó ipari ingatlan leírása

Kecskeméten 540 m2-es ipari használatú épület 1457 m2-es telken eladó!

Jellemzők:

540 m2 felépítmény
2010-es építés
kiépített informatikai, tűzjelző, telefonközpontés riasztó hálózat (optikai szálas internet kiépítve)
összközmű
tűzálló festékkel festett csarnokváz, Tűzi-víz csapok kiépítve, kiépített tűzoltósági távfelügyelet
2 db videó kaputelefon
elektromos személy illetve toló kapu
automata öntöző rendszer
parkosított udvar
műanyag nyílászárók, UVálló védő fóliával ellátva
2 tea konyha
kiépített öltöző, fürdővel
bemutató/csomagoló terem
4 iroda
Hörmann és Tormax kapuk a csarnokon
csarnokba további öltöző létesítési lehetőség
18 cm vastag ipari beton a csarnokban
központi szünetmentes áramforrás rendszer kiépítve (készülék nélkül)
elektromos rejtett redőny előkészítve
klimatizált irodák
térköves udvar
lehajtható zászló rudak az udvarban
elektromos áram bővítési lehetőség
6 parkoló
Teherautóval könnyen megközelíthető ​

Figyelem az adatlap megbízóinktól kapott adatok
alapján készült,pontosságáért felelősséget
nem tudunk vállalni!


A HOUSE36 kínálatában található összes ingatlannal
kapcsolatban tudok felvilágosítást nyújtani!
Hívjon bizalommal!
Szolgáltatásaink Kereső ügyfeleink számára
INGYENESEK!

Az iroda legfrissebb, aktuális kínálatát a HOUSE36 saját weboldalán találja!

Hirdetés feltöltve: 2025. 10. 24. Utoljára módosítva: 2025. 10. 24.

Ipari ingatlanok ára Kecskeméten

Ebből az összehasonlításból megtudhatod, hogyan viszonyul a lakás ára a környékbeli ipari ingatlanok átlagos árához. Ez nem azt jelenti, hogy ennyivel olcsóbb vagy drágább, mint amennyit a lakás ér, hanem hogy ennyivel tér el a környékbeli átlagtól.

Ennek a m² ára
Kecskemét m² ár
926 e Ft
318 e Ft -191%
Ennek az ára
Kecskemét átlagár
500 M Ft m Ft
289.8 m Ft -73%

Az ingatlan elhelyezkedése

Cím: Kecskemét

Eladó ipari ingatlanok a környékről

Eladó ipari ingatlan
Eladó ipari ingatlan

Kecskemét

420 M Ft
700 m2
Eladó ipari ingatlan
Eladó ipari ingatlan

Tiszakécske

152 M Ft
1000 m2
Eladó ipari ingatlan
Eladó ipari ingatlan

Kecskemét, Szent István-város, Klebelsberg Kuno utca

104.9 M Ft
29996 m2
Eladó ipari ingatlan
Eladó ipari ingatlan

Kecskemét

2346 M Ft
13000 m²
6700 m2
Eladó ipari ingatlan
Eladó ipari ingatlan

Kecskemét

249.99 M Ft
3000 m²
950 m2
Eladó ipari ingatlan
Eladó ipari ingatlan

Tiszakécske, Dózsa telep utca

150 M Ft
Eladó ipari ingatlan
Eladó ipari ingatlan

Kecskemét

140 M Ft
40000 m²
2300 m2
Eladó ipari ingatlan
Eladó ipari ingatlan

Pálmonostora

70 M Ft
1300 m2
Eladó ipari ingatlan
Eladó ipari ingatlan

Kecskemét

22.9 M Ft
2669 m2
Eladó ipari ingatlan
Eladó ipari ingatlan

Kecskemét

1493 M Ft
38800 m2
Eladó ipari ingatlan
Eladó ipari ingatlan

Kecskemét

180 M Ft
1147 m2
Eladó ipari ingatlan
Eladó ipari ingatlan

Kecskemét

105 M Ft
62625 m2
Eladó ipari ingatlan
Eladó ipari ingatlan

Kecskemét

169 M Ft
834 m2
Eladó ipari ingatlan
Eladó ipari ingatlan

Kecskemét

140 M Ft
40000 m²
2300 m2
Eladó ipari ingatlan
Eladó ipari ingatlan

Kecskemét

75 M Ft
1400 m²
720 m2
Eladó ipari ingatlan
Eladó ipari ingatlan

Kecskemét

399 M Ft
1200 m2
Eladó ipari ingatlan
Eladó ipari ingatlan

Szalkszentmárton

150 M Ft
785 m²
250 m2
Eladó ipari ingatlan
Eladó ipari ingatlan

Kecskemét

2800 M Ft
28000 m2
Eladó ipari ingatlan
Eladó ipari ingatlan

Foktő

98 M Ft
936 m2
Eladó ipari ingatlan
Eladó ipari ingatlan

Kecskemét

249.99 M Ft
3000 m²
950 m2
Eladó ipari ingatlan
Eladó ipari ingatlan

Kiskunfélegyháza

260 M Ft
1000 m2
Eladó ipari ingatlan
Eladó ipari ingatlan

Tiszakécske

53.9 M Ft
200 m2
Eladó ipari ingatlan
Eladó ipari ingatlan

Kecskemét

75 M Ft
1400 m²
720 m2
Eladó ipari ingatlan
Eladó ipari ingatlan

Kecskemét

249.99 M Ft
3000 m²
950 m2

Falusi CSOK ingatlanok

Eladó családi ház
Eladó családi ház

Szentmártonkáta

43.9 M Ft
6 szoba
137 m2
Eladó családi ház
Eladó családi ház

Tápiószőlős

9.9 M Ft
2 szoba
57 m2
Eladó családi ház
Eladó családi ház

Újlengyel

110 M Ft
4 szoba
121 m2
Eladó családi ház
Eladó családi ház

Jászalsószentgyörgy

39.9 M Ft
2 szoba
74 m2
Eladó családi ház
Eladó családi ház

Nagybaracska

28.2 M Ft
3 szoba
100 m2
Eladó családi ház
Eladó családi ház

Szigetbecse

35.9 M Ft
3 + 2 szoba
107 m2
Eladó családi ház
Eladó családi ház

Sarud

17 M Ft
3 szoba
94 m2
Eladó családi ház
Eladó családi ház

Alattyán

8.5 M Ft
1 + 1 szoba
70 m2