Seven Pearl

Eladó ipari ingatlan
Kecskemét

+ 1 kép 1/4
500 000 000 Ft500 M Ft 925 926 Ft/m2
540 m2

Részletes adatok

Állapot: Átlagos
Fűtés: Egyéb
Energetikai besorolás: Nem adta meg a hirdető

Az OTP Bank lakáshitel ajánlataFizetett hirdetés

+36 70 649
Borosné Hajnalka
HOUSE36 Ingatlanbázis Kft.

Érdekel az OTP Bank kedvezményes lakáshitel ajánlata? *

* A kérdésre „Igen” válasz bejelölése esetén, az „Üzenet küldése” gombra kattintva kijelentem, hogy az OTP Bank Nyrt. Adatkezelési tájékoztatójának tartalmát megismertem és tudomásul vettem.

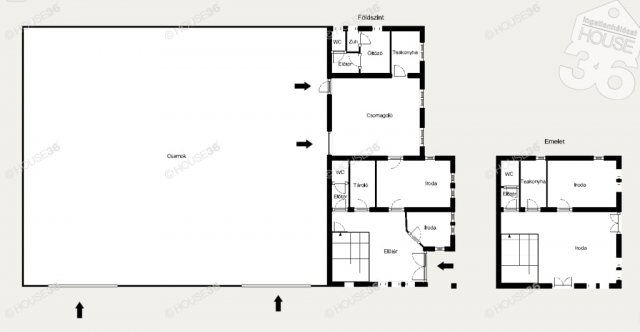
Eladó ipari ingatlan leírása

Kecskeméten 540 m2-es ipari használatú épület 1457 m2-es telken eladó!

Jellemzők:

540 m2 felépítmény
2010-es építés
kiépített informatikai, tűzjelző, telefonközpontés riasztó hálózat (optikai szálas internet kiépítve)
összközmű
tűzálló festékkel festett csarnokváz, Tűzi-víz csapok kiépítve, kiépített tűzoltósági távfelügyelet
2 db videó kaputelefon
elektromos személy illetve toló kapu
automata öntöző rendszer
parkosított udvar
műanyag nyílászárók, UVálló védő fóliával ellátva
2 tea konyha
kiépített öltöző, fürdővel
bemutató/csomagoló terem
4 iroda
Hörmann és Tormax kapuk a csarnokon
csarnokba további öltöző létesítési lehetőség
18 cm vastag ipari beton a csarnokban
központi szünetmentes áramforrás rendszer kiépítve (készülék nélkül)
elektromos rejtett redőny előkészítve
klimatizált irodák
térköves udvar
lehajtható zászló rudak az udvarban
elektromos áram bővítési lehetőség
6 parkoló
Teherautóval könnyen megközelíthető ​

Figyelem az adatlap megbízóinktól kapott adatok
alapján készült,pontosságáért felelősséget
nem tudunk vállalni!


A HOUSE36 kínálatában található összes ingatlannal
kapcsolatban tudok felvilágosítást nyújtani!
Hívjon bizalommal!
Szolgáltatásaink Kereső ügyfeleink számára
INGYENESEK!

Az iroda legfrissebb, aktuális kínálatát a HOUSE36 saját weboldalán találja!

Hirdetés feltöltve: 2025. 10. 23. Utoljára módosítva: 2025. 11. 02.

Ipari ingatlanok ára Kecskeméten

Ebből az összehasonlításból megtudhatod, hogyan viszonyul a lakás ára a környékbeli ipari ingatlanok átlagos árához. Ez nem azt jelenti, hogy ennyivel olcsóbb vagy drágább, mint amennyit a lakás ér, hanem hogy ennyivel tér el a környékbeli átlagtól.

Ennek a m² ára
Kecskemét m² ár
926 e Ft
374 e Ft -147%
Ennek az ára
Kecskemét átlagár
500 M Ft m Ft
285.9 m Ft -75%

Az ingatlan elhelyezkedése

Cím: Kecskemét

Eladó ipari ingatlanok a környékről

Eladó ipari ingatlan
Eladó ipari ingatlan

Szalkszentmárton

150 M Ft
785 m²
250 m2
Eladó ipari ingatlan
Eladó ipari ingatlan

Kecskemét

22.9 M Ft
2669 m2
Eladó ipari ingatlan
Eladó ipari ingatlan

Kisszállás

129 M Ft
2800 m2
Eladó ipari ingatlan
Eladó ipari ingatlan

Ballószög, Beton út mellett utca

16.8 M Ft
Eladó ipari ingatlan
Eladó ipari ingatlan

Tiszakécske, Szentkirályi út út

22 M Ft
Eladó ipari ingatlan
Eladó ipari ingatlan

Kecskemét

420 M Ft
700 m2
Eladó ipari ingatlan
Eladó ipari ingatlan

Kecskemét

140 M Ft
40000 m²
2300 m2
Eladó ipari ingatlan
Eladó ipari ingatlan

Kecskemét

2800 M Ft
28000 m2
Eladó ipari ingatlan
Eladó ipari ingatlan

Tiszakécske

152 M Ft
1000 m2
Eladó ipari ingatlan
Eladó ipari ingatlan

Kecskemét

75 M Ft
1400 m²
720 m2
Eladó ipari ingatlan
Eladó ipari ingatlan

Kecskemét

140 M Ft
40000 m²
2300 m2
Eladó ipari ingatlan
Eladó ipari ingatlan

Kecskemét

1746 M Ft
13000 m²
6700 m2
Eladó ipari ingatlan
Eladó ipari ingatlan

Kecskemét

249.99 M Ft
3000 m²
950 m2
Eladó ipari ingatlan
Eladó ipari ingatlan

Kecskemét

1100 M Ft
6500 m2
Eladó ipari ingatlan
Eladó ipari ingatlan

Pálmonostora

70 M Ft
1300 m2
Eladó ipari ingatlan
Eladó ipari ingatlan

Kiskunfélegyháza

260 M Ft
1000 m2
Eladó ipari ingatlan
Eladó ipari ingatlan

Bácsszőlős

230.084 M Ft
12 szoba
794 m2
Eladó ipari ingatlan
Eladó ipari ingatlan

Kecskemét

300 M Ft
3219 m2
Eladó ipari ingatlan
Eladó ipari ingatlan

Kecskemét

500 M Ft
6000 m²
2000 m2
Eladó ipari ingatlan
Eladó ipari ingatlan

Kecskemét

180 M Ft
1147 m2
Eladó ipari ingatlan
Eladó ipari ingatlan

Kecskemét

1493 M Ft
38800 m2
Eladó ipari ingatlan
Eladó ipari ingatlan

Kecskemét

1493 M Ft
38800 m2
Eladó ipari ingatlan
Eladó ipari ingatlan

Kecskemét

249.99 M Ft
3000 m²
950 m2
Eladó ipari ingatlan
Eladó ipari ingatlan

Kecskemét

1493 M Ft
38800 m2

Falusi CSOK ingatlanok

Eladó családi ház
Eladó családi ház

Tokod

89 M Ft
6 szoba
187 m2
Eladó családi ház
Eladó családi ház

Törtel

25.9 M Ft
5 szoba
95 m2
Eladó családi ház
Eladó családi ház

Hegyfalu

14.9 M Ft
2 szoba
70 m2
Eladó családi ház
Eladó családi ház

Galgahévíz

188 M Ft
4 szoba
125 m2
Eladó családi ház
Eladó családi ház

Sárosd

21.9 M Ft
3 szoba
86 m2
Eladó családi ház
Eladó családi ház

Ónod, Kossuth út 10

27.499 M Ft
3 + 2 szoba
120 m2
Eladó családi ház
Eladó családi ház

Ceglédbercel, Iskola utca

89.99 M Ft
5 szoba
110 m2
Eladó családi ház
Eladó családi ház

Fedémes

23 M Ft
2 szoba
74 m2