Pesti Házak

Eladó ipari ingatlan
Dány

+ 13 kép 1/16
45 990 000 Ft45.99 M Ft 270 529 Ft/m2
170 m2
építés éve:1990

Részletes adatok

Állapot: Felújított
Telekméret: 348 m2
Fűtés: Gázkazán
Parkolás: Kocsibeálló
Közmű: Víz, Gáz, Villany, Csatorna
Energetikai besorolás: Nem adta meg a hirdető

Az OTP Bank lakáshitel ajánlataFizetett hirdetés

+36 70 412
Kertész Rebeka
Intor Ingatlan Kft.

Érdekel az OTP Bank kedvezményes lakáshitel ajánlata? *

* A kérdésre „Igen” válasz bejelölése esetén, az „Üzenet küldése” gombra kattintva kijelentem, hogy az OTP Bank Nyrt. Adatkezelési tájékoztatójának tartalmát megismertem és tudomásul vettem.

Eladó ipari ingatlan leírása

Eladásra kínálok Dány főútján egy remek befektetési lehetőséggel rendelkező ingatlant!

Az ingatlan eddig étteremként üzemelt aminek nagy hírneve volt és lenne is..

Jelenleg 170 négyzetméter alapterülettel rendelkezik, amelyben található konyha, mellékhelyiségek, élelmiszer feldolgozók, üzlettér és raktár is.

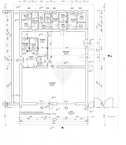
FONTOS! A képek között feltöltésre került az ingatan tovább hasznosításáról szóló terv is. Ez annyit jelent, hogy a jelenlegi födémre egy különálló lakóingatlan került tervezésre és engedélyeztetésre. Ehhez a komplett tervdokumentáció rendelkezésre áll.

Az étterem az összes engedéllyel rendelkezik, így azokat kiváltani már nem szükséges. Azonnal birtokba vehető és üzemeltethető.

Ne hagyja ki ezt a kivételes lehetőséget!

Intor Ingatlan – Otthont biztonságban!

Irodánk az értékesítés első lépésétől az utolsóig az Ön rendelkezésére áll. Amennyiben valamelyik ingatlanunkat jelenlegi ingatlana értékesítése után kívánja megvásárolni, vagy ha egy megbízható irodával szeretne együttműködni, amely teljes körű ügyintézést biztosít megfizethető áron, forduljon hozzánk bizalommal!

Hirdetés feltöltve: 2024. 09. 03. Utoljára módosítva: 2025. 11. 05.

Az ingatlan elhelyezkedése

Cím: Dány

Eladó ingatlanok a környékről

Eladó ipari ingatlan
Eladó ipari ingatlan

Monorierdő

135 M Ft
2250 m²
606 m2
Eladó ipari ingatlan
Eladó ipari ingatlan

Monorierdő

135 M Ft
2250 m²
606 m2
Eladó ikerház
Eladó ikerház

Göd

109.9 M Ft
5 szoba
121 m2
Eladó családi ház
Eladó családi ház

Pécel

28.9 M Ft
3 szoba
61 m2
Eladó téglalakás
Eladó téglalakás

Nagykőrös

50 M Ft
3 szoba
80 m2
Eladó ipari ingatlan
Eladó ipari ingatlan

Vecsés

527 M Ft
13183 m2
Eladó panellakás
Eladó panellakás

Cegléd, Belváros, Kossuth Ferenc utca

32.5 M Ft
1 szoba
34 m2
Eladó családi ház
Eladó családi ház

Áporka

129.9 M Ft
3 szoba
121 m2
Eladó ipari ingatlan
Eladó ipari ingatlan

Monor

390 M Ft
12000 m²
120 m2
Eladó ipari ingatlan
Eladó ipari ingatlan

Vác

779 M Ft
113817 m²
113817 m2
Eladó családi ház
Eladó családi ház

Nyáregyháza

67 M Ft
3 szoba
74 m2
Eladó ikerház
Eladó ikerház

Tököl

80 M Ft
4 szoba
70 m2
Eladó ikerház
Eladó ikerház

Pécel

134.9 M Ft
6 szoba
200 m2
Eladó ipari ingatlan
Eladó ipari ingatlan

Vác

380 M Ft
60138 m²
60138 m2
Eladó ipari ingatlan
Eladó ipari ingatlan

Dunavarsány

250 M Ft
9 szoba
1100 m2
Eladó ipari ingatlan
Eladó ipari ingatlan

Pusztazámor, Remeteség utca

59.999 M Ft
9998 m²
9998 m2
Eladó családi ház
Eladó családi ház

Szigetszentmiklós

229 M Ft
6 szoba
189 m2
Eladó családi ház
Eladó családi ház

Erdőkertes

99.8 M Ft
5 szoba
115 m2
Eladó családi ház
Eladó családi ház

Szentmártonkáta

15.9 M Ft
3 szoba
74 m2
Eladó ipari ingatlan
Eladó ipari ingatlan

Vecsés

297 M Ft
6600 m2
Eladó ipari ingatlan
Eladó ipari ingatlan

Budaörs

300 M Ft
300 m2
Eladó családi ház
Eladó családi ház

Kiskunlacháza

95.9 M Ft
4 szoba
130 m2
Eladó ikerház
Eladó ikerház

Göd

109.9 M Ft
5 szoba
121 m2
Eladó családi ház
Eladó családi ház

Gödöllő

129.99 M Ft
3 szoba
210 m2

Falusi CSOK ingatlanok

Eladó családi ház
Eladó családi ház

Tápiószőlős

17 M Ft
2 szoba
60 m2
Eladó családi ház
Eladó családi ház

Zalaháshágy

115 M Ft
4 szoba
430 m2
Eladó családi ház
Eladó családi ház

Balatonfenyves

430 M Ft
4 szoba
274 m2
Eladó családi ház
Eladó családi ház

Ásványráró

94.9 M Ft
6 szoba
180 m2
Eladó családi ház
Eladó családi ház

Kemence, Fő utca

25 M Ft
3 szoba
91 m2
Eladó családi ház
Eladó családi ház

Ugod

31.5 M Ft
3 szoba
140 m2
Eladó családi ház
Eladó családi ház

Akasztó

13.9 M Ft
3 szoba
103 m2
Eladó családi ház
Eladó családi ház

Nemeskolta

14 M Ft
2 szoba
75 m2