Eladó ikerház
Veresegyház

+ 9 kép 1/12
99 900 000 Ft99.9 M Ft 780 469 Ft/m2
4 szoba
128 m2
építés éve:2026

Részletes adatok

Telekméret: 430 m2
Fűtés: Egyéb
Parkolás: Garázs
Energetikai besorolás: Nem adta meg a hirdető

Az OTP Bank lakáshitel ajánlataFizetett hirdetés

+36 70 365
Iván Veronika
referens

Érdekel az OTP Bank kedvezményes lakáshitel ajánlata? *

* A kérdésre „Igen” válasz bejelölése esetén, az „Üzenet küldése” gombra kattintva kijelentem, hogy az OTP Bank Nyrt. Adatkezelési tájékoztatójának tartalmát megismertem és tudomásul vettem.

Eladó ikerház leírása

ÚJ ÉPÍTÉSŰ IKERHÁZ VERESGYHÁZON!
Költözzön be tavasszal csodás új otthonába!

Családbarát környezet, saját kert, modern technológia – minden adott egy igazi OTTHONHOZ!

Földszintes ikerház nettó 98 nm hasznos lakótér 38 nm-es terasszal és 16,5 nm garázzsal eladó!
Világos, napfényes otthon
Az ingatlan tervezésekor kiemelt figyelmet kapott a természetes fény: a nagy méretű nyílászáróknak és a nyugati tájolásnak köszönhetően a ház egész nap napfényben fürdik.
Minden hálószobából közvetlen kijárat nyílik a kertbe, így a család minden tagja élvezheti a privát, zöld környezetet.

Különálló ikerház, kiváló elrendezés és tervezés jellemzi.
Az ikerház másik fele a telek hátsó részén található ( már elkelt így megismerheti leendő szomszédját)
Az épületek nem érnek össze: teljesen külön tetőszerkezettel, önálló bejárattal és egy autóbeállónyi távolsággal helyezkednek el.
Ez biztosítja a privát szférát és a barátságos, de nem zavaró szomszédi viszonyt.

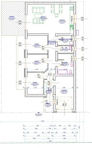
Helyiségek listája

Nappali – 23,17 m²
Konyha + étkező – 14,55 m²
Szoba 1 – 10,47 m²
Szoba 2 – 9,93 m²
Szoba 3 – 10,04 m²
Fürdőszoba – 4,85 m²
WC – 3,24 m²
Előtér – 4,03 m²
Közlekedő – 10,12 m²
Gépészeti helyiség – 4,32 m²
Garázs – 16,50 m²
Terasz – 21,98 m²
Tároló/ tornác – 4,09 m²

Műszaki tartalom

Nyílászárók: Aluplast 8000, 6 légkamrás, 3 rétegű üvegezés, igény esetén redőny és szúnyogháló.

Fűtés-hűtés: Midea hőszivattyú, teljes felületen padlófűtés + oldalfali klímák.

Hőszigetelés: 15 cm grafitos homlokzati szigetelés, 15 cm lépésálló padlószigetelés.

Villany hálózat 3x20A
H energia 1x25 A
Energiatakarékos, korszerű, alacsony fenntartású otthon.

Elérhető kedvezmények és hitelek
-CSOK
-Illetékkedvezmény
-3%-os Otthon Start hitel
-5% Áfa visszatérítés

Céges építkezés – biztonságos, átlátható folyamat, referencia házakkal!

Várható átadás 2026. Április - Május

Ez az ingatlan tökéletes választás családoknak, akik nyugodt, barátságos környezetben keresnek új, modern, energiatakarékos otthont, jó közlekedéssel a főváros felé.
Hívj ne maradj le.
I.V. ...TOVÁBBI, TÖBBEZRES INGATLAN KÍNÁLAT: www.gdn-ingatlan.hu - GDN azonosító: 387803

Hirdetés feltöltve: 2025. 09. 26. Utoljára módosítva: 2025. 09. 27.

4 szobás ikerházak ára Veresegyházon

Ebből az összehasonlításból megtudhatod, hogyan viszonyul a lakás ára a környékbeli ikerházak átlagos árához. Ez nem azt jelenti, hogy ennyivel olcsóbb vagy drágább, mint amennyit a lakás ér, hanem hogy ennyivel tér el a környékbeli átlagtól.

Ennek a m² ára
Veresegyház m² ár
780 e Ft
830 e Ft 6%
Ennek az ára
Veresegyház átlagár
99.9 M Ft m Ft
93.3 m Ft -7%

Az ingatlan elhelyezkedése

Cím: Veresegyház

Eladó ikerházak a környékről

Eladó ikerház
Eladó ikerház

Veresegyház

145 M Ft
4 szoba
120 m2
Eladó ikerház
Eladó ikerház

Veresegyház

99.999 M Ft
5 szoba
138 m2
Eladó ikerház
Eladó ikerház

Szentendre, Szentendre

398 M Ft
5 szoba
267 m2
Eladó ikerház
Eladó ikerház

Veresegyház

145.8 M Ft
5 szoba
153 m2
Eladó ikerház
Eladó ikerház

Veresegyház

99.7 M Ft
6 szoba
210 m2
Eladó ikerház
Eladó ikerház

Vác

175.356 M Ft
5 szoba
165 m2
Eladó ikerház
Eladó ikerház

Veresegyház

70 M Ft
3 szoba
120 m2
Eladó ikerház
Eladó ikerház

Vác

175.356 M Ft
5 szoba
165 m2
Eladó ikerház
Eladó ikerház

Solymár

150 M Ft
4 + 2 szoba
252 m2
Eladó ikerház
Eladó ikerház

Veresegyház

144.9 M Ft
5 szoba
141 m2
Eladó ikerház
Eladó ikerház

Veresegyház

99.999 M Ft
5 szoba
138 m2
Eladó ikerház
Eladó ikerház

Pécel

149.9 M Ft
5 szoba
306 m2
Eladó ikerház
Eladó ikerház

Szentendre

179 M Ft
5 + 1 szoba
147 m2
Eladó ikerház
Eladó ikerház

Veresegyház

149 M Ft
5 szoba
150 m2
Eladó ikerház
Eladó ikerház

Tahitótfalu

88.9 M Ft
4 szoba
110 m2
Eladó ikerház
Eladó ikerház

Veresegyház

114.9 M Ft
4 szoba
126 m2
Eladó ikerház
Eladó ikerház

Üröm

249.9 M Ft
4 szoba
154 m2
Eladó ikerház
Eladó ikerház

Veresegyház

99.999 M Ft
5 szoba
138 m2
Eladó ikerház
Eladó ikerház

Rád

100 M Ft
4 szoba
152 m2
Eladó ikerház
Eladó ikerház

Veresegyház

99.7 M Ft
6 szoba
210 m2
Eladó ikerház
Eladó ikerház

Dunakeszi

149 M Ft
1 + 4 szoba
127 m2
Eladó ikerház
Eladó ikerház

Pécel, Pécel - kertváros

127 M Ft
4 szoba
125 m2
Eladó ikerház
Eladó ikerház

Dunaharaszti

124.999 M Ft
4 szoba
105 m2
Eladó ikerház
Eladó ikerház

Szentendre

359 M Ft
5 szoba
289 m2

Falusi CSOK ingatlanok

Eladó családi ház
Eladó családi ház

Szirmabesenyő

58 M Ft
5 szoba
127 m2
Eladó családi ház
Eladó családi ház

Újhartyán

83.99 M Ft
2 szoba
80 m2
Eladó családi ház
Eladó családi ház

Erdőbénye

69.5 M Ft
4 szoba
148 m2
Eladó családi ház
Eladó családi ház

Szentmártonkáta

35.4 M Ft
2 + 2 szoba
107 m2
Eladó családi ház
Eladó családi ház

Vaskút

24.9 M Ft
4 szoba
150 m2
Eladó családi ház
Eladó családi ház

Kállósemjén

18.5 M Ft
3 szoba
78 m2
Eladó családi ház
Eladó családi ház

Somogygeszti

10.9 M Ft
2 szoba
115 m2
Eladó családi ház
Eladó családi ház

Csokonyavisonta

18 M Ft
4 szoba
116 m2