Eladó ikerház
Veresegyház

+ 9 kép 1/12
146 800 000 Ft146.8 M Ft 1 244 068 Ft/m2
5 szoba
118 m2
építés éve:2025

Részletes adatok

Telekméret: 570 m2
Fűtés: Egyéb
Energetikai besorolás: Nem adta meg a hirdető

Az OTP Bank lakáshitel ajánlataFizetett hirdetés

+36 1 690
Plachy Zsuzsa
Duna House - Kulcs-Pont Ingatlan Kft. - Budapest

Érdekel az OTP Bank kedvezményes lakáshitel ajánlata? *

* A kérdésre „Igen” válasz bejelölése esetén, az „Üzenet küldése” gombra kattintva kijelentem, hogy az OTP Bank Nyrt. Adatkezelési tájékoztatójának tartalmát megismertem és tudomásul vettem.

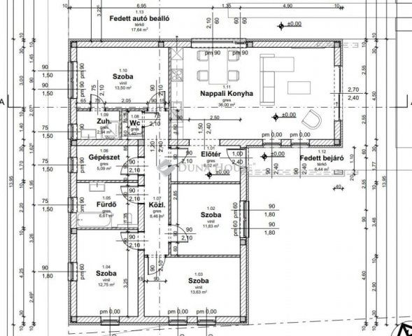
Eladó ikerház leírása

Veresegyház, Hegyek városrészben 118,23 m2 hasznos alapterületű, 4 szoba + nappalis ikerházfél, amely 30-60 napon belül költözhető

Az ingatlanról:
- Nem érnek össze a házak! A fedett gépkocsibeálló találkozik csupán, így jól elszeparálható!
- 4 szoba (11,83; 13,63; 12,75, 13,50) a szülői hálóhoz saját zuhanyzós fürdőszoba tartozik!
- Nappali, konyha egyben 36 m2
- Fürdőszoba (kádas) közlekedő, gépészeti helyiség, külön WC,

Műszaki tartalom:
- Schüco 3 rétegű nyílászárók és hatalmas csúsztatható teraszajtó ,elektromos alumínium redőny aranytölgy színben.
- Porotherm 30 x-therm rapid klímatégla + 10cm grafitos szigetelés.
- 10kw-os hőszivattyű SINCLAIR YUKON ALL IN ONE, padlófűtéssel, kedvezményes KW/H díjelszámolással + 190l hmv kombi tartály .
- Hővisszanyerős szellőzőrendszer a nappaliban.
- Klíma kiépítés minden szobában
- Prémium alumínium ereszcsatornák.
- Terrán Zenit Max Elegant tetőcserép
- Esővíz szikkasztó
- Beton födémmel és 280cm-es belmagassággal!!
- Padló szigetelése 12cm, lábazati szigetelés 10cm, tetőszigetelés 25cm..
- Nyílászárók 240cm magasságúak.
- Riasztórendszer kiépítését is tartalmazza a vételár.
- 3x16 Amper nappali áram kiépítve
- H kedvezményezett óra kiépítve
- Telek 590 négyzetméter/Ház
Megtekintési szándékával kapcsolatban keressen a hét bármely napján. Ha nem tudom felvenni a telefont, visszahívom!
A Duna House teljes kínálatával kapcsolatban fordulhat hozzám. Teljeskörű hitelügyintézés, Energetikai Tanúsítvány, Értékbecslés egy helyen!

„A hirdetésben szereplő FIX 3%-os lakáshitel részét képező támogatásokat Magyarország Kormánya nyújtja.”
Amennyiben az ingatlan megfelelne az elvárásainak de nem rendelkezik a teljes vételárral? Ebben az esetben a CREDIPASS munkatársai kötelezettség- és díjmentes tanácsadással állnak Ügyfeleink rendelkezésére.
Használja ki a jelenleg még érvényben lévő kedvező kamatozású hiteleket, CSOK-ot, illetékkedvezményt!
Hétvégén is várom megtisztelő hívását, abban az esetben is ha csak hitelre lenne szüksége,
Várom hívását, ha még el kell adnia ahhoz, hogy vásárolni tudjon!

Várom megtisztelő hívását: Plachy Zsuzsa 30-8695401

Referencia szám: HZ094769

Hirdetés feltöltve: 2025. 09. 25. Utoljára módosítva: 2025. 10. 02.

5 szobás ikerházak ára Veresegyházon

Ebből az összehasonlításból megtudhatod, hogyan viszonyul a lakás ára a környékbeli ikerházak átlagos árához. Ez nem azt jelenti, hogy ennyivel olcsóbb vagy drágább, mint amennyit a lakás ér, hanem hogy ennyivel tér el a környékbeli átlagtól.

Ennek a m² ára
Veresegyház m² ár
1244 e Ft
985 e Ft -26%
Ennek az ára
Veresegyház átlagár
146.8 M Ft m Ft
138.5 m Ft -6%

Az ingatlan elhelyezkedése

Cím: Veresegyház

Eladó ikerházak a környékről

Eladó ikerház
Eladó ikerház

Veresegyház

99.999 M Ft
5 szoba
138 m2
Eladó ikerház
Eladó ikerház

Veresegyház

104.9 M Ft
4 szoba
101 m2
Eladó ikerház
Eladó ikerház

Rád

100 M Ft
4 szoba
152 m2
Eladó ikerház
Eladó ikerház

Üröm

249.9 M Ft
4 szoba
154 m2
Eladó ikerház
Eladó ikerház

Pomáz

129.5 M Ft
4 szoba
100 m2
Eladó ikerház
Eladó ikerház

Vác

149.9 M Ft
5 szoba
202 m2
Eladó ikerház
Eladó ikerház

Veresegyház

99.999 M Ft
5 szoba
138 m2
Eladó ikerház
Eladó ikerház

Solymár

150 M Ft
4 + 2 szoba
252 m2
Eladó ikerház
Eladó ikerház

Veresegyház

149 M Ft
5 szoba
150 m2
Eladó ikerház
Eladó ikerház

Veresegyház

145 M Ft
4 szoba
120 m2
Eladó ikerház
Eladó ikerház

Veresegyház

99.7 M Ft
6 szoba
210 m2
Eladó ikerház
Eladó ikerház

Veresegyház

99.999 M Ft
5 szoba
138 m2
Eladó ikerház
Eladó ikerház

Pécel

149.9 M Ft
5 szoba
306 m2
Eladó ikerház
Eladó ikerház

Veresegyház

145.8 M Ft
5 szoba
153 m2
Eladó ikerház
Eladó ikerház

Kiskunlacháza

89.1 M Ft
4 szoba
99 m2
Eladó ikerház
Eladó ikerház

Tahitótfalu

88.9 M Ft
4 szoba
110 m2
Eladó ikerház
Eladó ikerház

Veresegyház

114.9 M Ft
4 szoba
126 m2
Eladó ikerház
Eladó ikerház

Veresegyház

109.9 M Ft
5 szoba
110 m2
Eladó ikerház
Eladó ikerház

Szentendre

359 M Ft
5 szoba
289 m2
Eladó ikerház
Eladó ikerház

Pilisjászfalu

70.563 M Ft
4 szoba
61 m2
Eladó ikerház
Eladó ikerház

Dunakeszi

149 M Ft
1 + 4 szoba
127 m2
Eladó ikerház
Eladó ikerház

Pécel, Pécel - kertváros

127 M Ft
4 szoba
125 m2
Eladó ikerház
Eladó ikerház

Veresegyház

114.9 M Ft
5 szoba
110 m2
Eladó ikerház
Eladó ikerház

Veresegyház

249 M Ft
5 szoba
170 m2

Falusi CSOK ingatlanok

Eladó családi ház
Eladó családi ház

Mezőzombor

19.99 M Ft
3 szoba
91 m2
Eladó családi ház
Eladó családi ház

Aszaló

16.49 M Ft
3 szoba
112 m2
Eladó családi ház
Eladó családi ház

Kisgyalán

33.3 M Ft
3 + 1 szoba
121 m2
Eladó családi ház
Eladó családi ház

Fonyód

495 M Ft
5 szoba
149 m2
Eladó családi ház
Eladó családi ház

Zsámbok

33 M Ft
2 szoba
80 m2
Eladó családi ház
Eladó családi ház

Magyargencs

21.9 M Ft
2 szoba
60 m2
Eladó családi ház
Eladó családi ház

Tápiószőlős

34 M Ft
1 + 2 szoba
85 m2
Eladó családi ház
Eladó családi ház

Mezőfalva

39 M Ft
3 szoba
77 m2