City Pearl

Eladó ikerház
Vecsés

125 000 000 Ft125 M Ft 1 068 376 Ft/m2
4 szoba
117 m2
építés éve:2025

Részletes adatok

Telekméret: 307 m2
Fűtés: Egyéb
Energetikai besorolás: B

Az OTP Bank lakáshitel ajánlataFizetett hirdetés

+36 1 690
Banda Péter
referens

Érdekel az OTP Bank kedvezményes lakáshitel ajánlata? *

* A kérdésre „Igen” válasz bejelölése esetén, az „Üzenet küldése” gombra kattintva kijelentem, hogy az OTP Bank Nyrt. Adatkezelési tájékoztatójának tartalmát megismertem és tudomásul vettem.

Eladó ikerház leírása

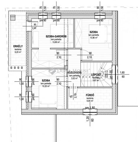
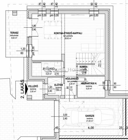
Vecsés legmodernebb fiatalos, családias részénVecsésen modern környezetben eladó új építésű családi házak.A kivitelező sok éves múlttal és rengeteg elégedett ügyféllel rendelkezik, referenciák akár itt a lakóparkban is megtekinthetőek.1-es ház127 négyzetméter hasznos lakótérrel rendelkezik, mely egy 307 négyzetméteres telken fekszik. A földszinten a nappaliból egy 8 négyzetméteres teraszon keresztül juthatunk ki a saját privát kertünkbe, továbbá az emeleten egy 8,19 négyzetméteres tetőterasz is tartozik hozzá.Nappali+4 hálószoba+ gardrób, 21nm garázs, szülőiháló.22 méter saját utcafront!2-es ház117,03 négyzetméter hasznos lakótérrel rendelkezik, mely egy 307 négyzetméteres telken fekszik. A földszinten a nappaliból egy 8,62 négyzetméteres teraszon keresztül juthatunk ki a saját privát kertünkbe, továbbá az emeleten egy 6,20 négyzetméteres erkély is tartozik hozzá.Nappali+3hálószoba+gardrób, 21nm garázs, szülőiháló.3-as ház117,03 négyzetméter hasznos lakótérrel rendelkezik, mely egy 307 négyzetméteres telken fekszik. A földszinten a nappaliból egy 8,62 négyzetméteres teraszon keresztül juthatunk ki a saját privát kertünkbe, továbbá az emeleten egy 6,20 négyzetméteres erkély is tartozik hozzá.Nappali+3hálószoba+gardrób, 21nm garázs, szülői háló.Műszaki adatok:-30as Prototherm tégla falazat-15cm-es homlokzati szigetelés-18-cm-es szigetelés az aljzat felől-8cm-es szigetelés a födém felől-3 rétegű műanyag nyílászárók kívülről antracit belülről fehér színűek-elektromos garázskapu antracit színnel-Hőszivattyús fűtés/hűtés (fan coil)-2 fürdőszoba-mosókonyha-riasztó és kaputelefon kiállás-térkövezett autóbeállóBurkolatok/beltéri ajtók/szaniterek még választhatóak.A lakópark teljesen új modern környezet, játszótérrel, fákkal. Közlekedést tekintve autóval a Gyorsforgalmi út, Üllői út, Gyömrői út az M0ás és a 4-es út 3perc alatt megközelíthető.Tömegközlekedés 3perc sétára Volánbusz Kőbánya Kispest vasútállomásig közlekedik, 10perc sétára Vecsési vonatállomás, melyről a Nyugati pályaudvarig közlekednek a vonatok.Felkeltette érdeklődését keressen bizalommal a hét bármely napján!Átadás: 2026.IV. negyedév

Hirdetés feltöltve: 2026. 01. 28.

4 szobás ikerházak ára Vecsésen

Ebből az összehasonlításból megtudhatod, hogyan viszonyul a lakás ára a környékbeli ikerházak átlagos árához. Ez nem azt jelenti, hogy ennyivel olcsóbb vagy drágább, mint amennyit a lakás ér, hanem hogy ennyivel tér el a környékbeli átlagtól.

Ennek a m² ára
Vecsés m² ár
1068 e Ft
943 e Ft -13%
Ennek az ára
Vecsés átlagár
125 M Ft m Ft
133.3 m Ft 6%

Az ingatlan elhelyezkedése

Cím: Vecsés

Eladó ikerházak a környékről

Eladó ikerház
Eladó ikerház

Diósd

213.46 M Ft
5 szoba
186 m2
Eladó ikerház
Eladó ikerház

Vácrátót

94.9 M Ft
2 + 3 szoba
108 m2
Eladó ikerház
Eladó ikerház

Vác

175.356 M Ft
5 szoba
165 m2
Eladó ikerház
Eladó ikerház

Vecsés

67 M Ft
3 szoba
81 m2
Eladó ikerház
Eladó ikerház

Vecsés

149.9 M Ft
5 szoba
163 m2
Eladó ikerház
Eladó ikerház

Vecsés

140 M Ft
5 szoba
160 m2
Eladó ikerház
Eladó ikerház

Vecsés

69.9 M Ft
4 szoba
96 m2
Eladó ikerház
Eladó ikerház

Vecsés

149.9 M Ft
5 szoba
181 m2
Eladó ikerház
Eladó ikerház

Vecsés

140 M Ft
5 szoba
160 m2
Eladó ikerház
Eladó ikerház

Mogyoród

129 M Ft
5 szoba
123 m2
Eladó ikerház
Eladó ikerház

Vecsés

99.99 M Ft
5 szoba
123 m2
Eladó ikerház
Eladó ikerház

Pusztazámor

55 M Ft
10 szoba
470 m2
Eladó ikerház
Eladó ikerház

Vác

96.7 M Ft
4 + 1 szoba
126 m2
Eladó ikerház
Eladó ikerház

Szentendre

179 M Ft
5 + 1 szoba
147 m2
Eladó ikerház
Eladó ikerház

Vecsés

149.9 M Ft
5 szoba
163 m2
Eladó ikerház
Eladó ikerház

Vecsés

124.99 M Ft
4 szoba
139 m2
Eladó ikerház
Eladó ikerház

Pomáz

129.5 M Ft
4 szoba
100 m2
Eladó ikerház
Eladó ikerház

Vecsés

140 M Ft
5 szoba
160 m2
Eladó ikerház
Eladó ikerház

Vecsés

140 M Ft
5 szoba
160 m2
Eladó ikerház
Eladó ikerház

Vecsés

69.9 M Ft
4 szoba
96 m2
Eladó ikerház
Eladó ikerház

Pécel, Pécel - kertváros

127 M Ft
4 szoba
125 m2
Eladó ikerház
Eladó ikerház

Mogyoród

129 M Ft
5 szoba
123 m2
Eladó ikerház
Eladó ikerház

Dunakeszi

149 M Ft
1 + 4 szoba
127 m2
Eladó ikerház
Eladó ikerház

Vác

175.356 M Ft
5 szoba
165 m2

Falusi CSOK ingatlanok

Eladó családi ház
Eladó családi ház

Egerág, Pozsonyi utca

26.9 M Ft
3 szoba
96 m2
Eladó családi ház
Eladó családi ház

Darnózseli

79.9 M Ft
4 szoba
104 m2
Eladó családi ház
Eladó családi ház

Tésenfa, Kossuth utca 23/a

5.55 M Ft
1 + 1 szoba
109 m2
Eladó családi ház
Eladó családi ház

Becsehely

18.5 M Ft
2 szoba
99 m2
Eladó családi ház
Eladó családi ház

Fülöpszállás

299 M Ft
14 + 5 szoba
680 m2
Eladó családi ház
Eladó családi ház

Baté

21.8 M Ft
2 szoba
60 m2
Eladó ikerház
Eladó ikerház

Söpte

79.9 M Ft
4 szoba
80 m2
Eladó családi ház
Eladó családi ház

Sály, Kossuth Lajos 128

30.8 M Ft
6 szoba
160 m2